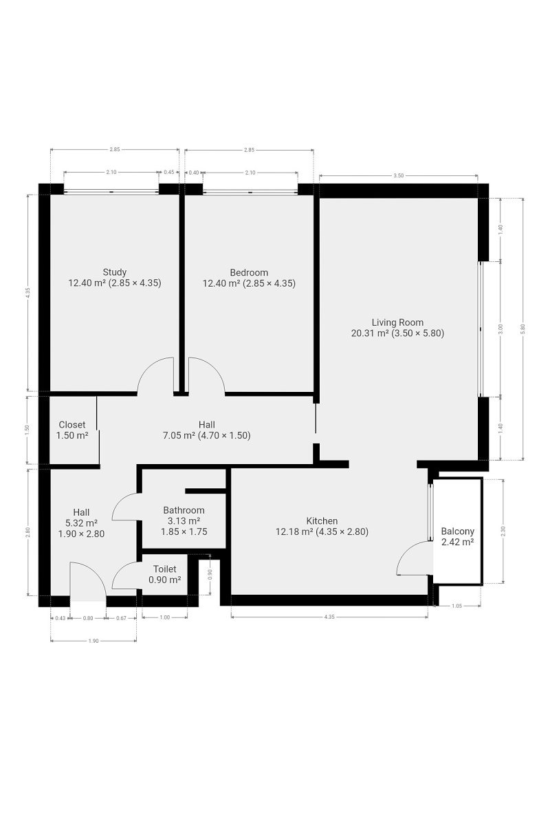
Nabízíme k podnájmu světlý, velmi příjemný byt o dispozici 3+1, který se nachází ve 2.patře. Byt je situován v klidné a vyhledávané lokalitě Nových Butovic, konkrétně v ulici Volutová.
Byt je částečně vybavený a připravený k nastěhování. Kuchyň je zařízena spotřebiči – k dispozici je lednice, myčka nádobí, elektrická trouba, elektrická varná deska, digestoř a mikrovlnka, všechny spotřebiče jsou ve vysokém standartu. Kuchyň je velmi prostorná a tak nabízí dostatek prostoru pro vaření i skladování potravin.
Obývací pokoj je částečně vybaven a je klimatizován z tohoto pokoje lze vstoupit na balkon. Druhý pokoj, který lze využít jako ložnici či pracovnu, je rovněž částečně zařízen – najdete zde šatní skříň a police pro uskladnění věcí. V ložnici je manželská postel a prostorná šatní skříň. Koupelna je kompletně vybavena – prostorných sprchovým koutem a koupelnovou skříňkou, umístěnou nad umyvadlem, součástí je i pračka. Toaleta se nachází odděleně. Na chodbě bytu se nachází další praktický úložný prostor, který ocení každý nájemce.
Byt je velmi světlý a je klimatizován. Je umístěn v klidné lokalitě, která je ideální pro ty, kteří si chtějí po práci odpočinout od ruchu velkoměsta. 3 minuty chůzí je metro B Hůrka, v okolí bytu je veškerá vybavenost, včetně možnosti nákupu potravin a dalšího zboží. 5 minut chůzi se nachází poliklinika.
Byt je k dispozici ihned.
Energetická třída: G (průkaz nedodán).
Cena:
25 500 Kč / (za měsíc)
Poznámka:
vratná jistota Kč, náklady na bydlení 5.000Kč, poplatek za podnájem
Uživatel serveru RealityMIX.iprima.cz (dále jen „Server“) dostupného na internetové adrese (URL) https://realitymix.iprima.cz, který provozuje společnost DALTEN media s.r.o., se sídlem Na Harfě 916/9a, Praha 9, 190 00, IČO: 271 35 306 (dále jen „Správce“) jako provozovateli tohoto Serveru uděluje svůj výslovný souhlas v souladu s ustanovením § 5 zákona č. 101/2000 Sb. O ochraně osobních údajů a o změně některých zákonů, v platném znění (dále jen „zákon o ochraně osobních údajů“), se zpracováním uživatelem poskytnutých osobních údajů a dalších dat.
Uživatel poskytuje Správci osobní údaje v rozsahu: jméno, příjmení, e-mailová adresa, telefonický kontakt a další data, a to z důvodu projeveného zájmu o nemovitost, kde prostřednictvím služby Serveru Správce osloví Uživatel inzerenta uvedeného v detailu
nemovitosti - Ideální nájemce (IČ 29300631) se zájmem o jeho služby.
Uživatel tyto osobní údaje poskytuje dobrovolně a bere na vědomí, že součástí služeb Správce, které Správce Uživateli poskytuje, je vyhledání všech Uživateli vyhovujících (dle parametrů - cena, typ nemovitosti, lokalita atd.) nemovitostí. Správce za tímto účelem provozuje aplikace Hlídací pes a newsletter. Tyto služby je možné z každého zaslaného emailu odhlásit. Souhlas se zpracováním osobních údajů Uživatel poskytuje Správci na dobu neurčitou s tím, že svůj udělený souhlas může Uživatel kdykoliv na drese správce info@realitymix.cz odvolat. Správce garantuje Uživateli i další práva uvedené v ustanovení §11 a §21 zákoba č. 101/200 Sb. Ve znění pozdějších předpisů.
Více informací o zpracování údajů získáte zde (realitymix.cz/zasady-ochrany-osobnich-udaju)