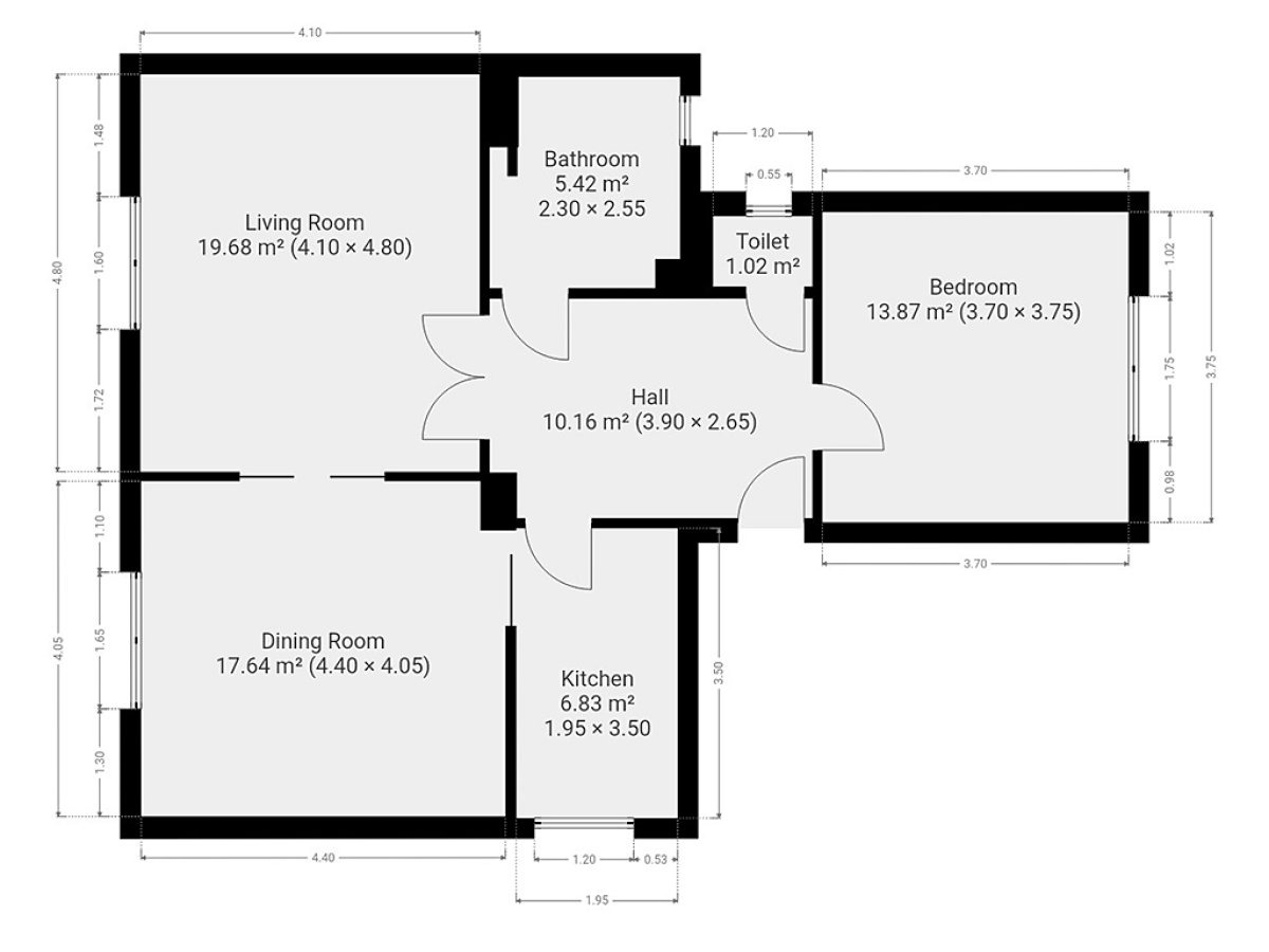
Nabízíme k dlouhodobému podnájmu světlý a moderní byt 3+1 o rozloze 75 m², který se nachází v 1. patře udržovaného rodinného domu v klidné a příjemné lokalitě Prahy 11 – Chodov. K bytu je možné využití zahrady o velikosti 388 m² s parkovací stání na oploceném pozemku, které zajišťuje komfort i bezpečí.
Byt je nabízen plně vybavený, což výrazně usnadní nastěhování i samotné bydlení. Moderní kuchyňská linka je vybavena lednicí s mrazákem, elektrickou troubou, myčkou, digestoří a dostatkem úložného prostoru. Na kuchyň navazuje prostorná místnost vhodná pro jídelní kout, a další obytný pokoj poskytuje dostatek místa pro sedací soupravu a vybavení podle vlastních představ. K dispozici je ještě další samostatný pokoj, který může sloužit jako ložnice. Koupelna je vybavena sprchovým koutem a umyvadlem, toaleta je oddělená. Celkově byt působí útulně, čistě a svěže, ideální pro ty, kdo hledají klidné bydlení s výbornou dostupností a možností relaxace na zahradě.
V okolí domu je kompletní občanská vybavenost – supermarket Albert, lékařská péče, školy a školky, dětská a sportovní hřiště, pošta, restaurace. Pro volný čas a relax je ideální blízký Hostivařský lesopark. Výbornou dopravní dostupnost zajišťuje nedaleká stanice metra C - Chodov a také autobusová doprava.
Byt je k nastěhování ihned.
Energetická třída: G (průkaz nedodán).
Cena:
27 900 Kč / (za měsíc)
Poznámka:
vratná jistota, náklady na bydlení 7.000 Kč, poplatek za podnájem
Dispozice/podlahová plocha:
3+1/75 m²
Číslo zakázky:
REALITYMIX-6928
Podrobné informace
Dispozice bytu:3+1
Číslo podlaží v domě:2
Počet podlaží objektu:2
Celková podlahová plocha:75 m²
Druh objektu:cihlová
Stav objektu:velmi dobrý
Vlastnictví:osobní
Vybaveno:ano
Umístění objektu:klidná část obce
Doprava:silnice, MHD, autobus
Občanská vybavenost:Škola, Školka, Zdravotnická zařízení, Pošta, Supermarket, Kompletní síť obchodů a služeb
Uživatel serveru RealityMIX.iprima.cz (dále jen „Server“) dostupného na internetové adrese (URL) https://realitymix.iprima.cz, který provozuje společnost DALTEN media s.r.o., se sídlem Na Harfě 916/9a, Praha 9, 190 00, IČO: 271 35 306 (dále jen „Správce“) jako provozovateli tohoto Serveru uděluje svůj výslovný souhlas v souladu s ustanovením § 5 zákona č. 101/2000 Sb. O ochraně osobních údajů a o změně některých zákonů, v platném znění (dále jen „zákon o ochraně osobních údajů“), se zpracováním uživatelem poskytnutých osobních údajů a dalších dat.
Uživatel poskytuje Správci osobní údaje v rozsahu: jméno, příjmení, e-mailová adresa, telefonický kontakt a další data, a to z důvodu projeveného zájmu o nemovitost, kde prostřednictvím služby Serveru Správce osloví Uživatel inzerenta uvedeného v detailu
nemovitosti - Ideální nájemce (IČ 29300631) se zájmem o jeho služby.
Uživatel tyto osobní údaje poskytuje dobrovolně a bere na vědomí, že součástí služeb Správce, které Správce Uživateli poskytuje, je vyhledání všech Uživateli vyhovujících (dle parametrů - cena, typ nemovitosti, lokalita atd.) nemovitostí. Správce za tímto účelem provozuje aplikace Hlídací pes a newsletter. Tyto služby je možné z každého zaslaného emailu odhlásit. Souhlas se zpracováním osobních údajů Uživatel poskytuje Správci na dobu neurčitou s tím, že svůj udělený souhlas může Uživatel kdykoliv na drese správce info@realitymix.cz odvolat. Správce garantuje Uživateli i další práva uvedené v ustanovení §11 a §21 zákoba č. 101/200 Sb. Ve znění pozdějších předpisů.
Více informací o zpracování údajů získáte zde (realitymix.cz/zasady-ochrany-osobnich-udaju)