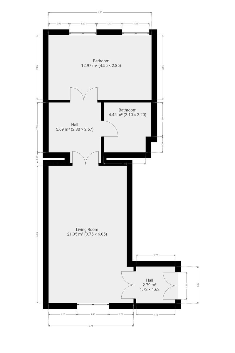
K dlouhodobému podnájmu nabízíme světlý a prakticky řešený byt 2+kk o velikosti 50 m² v oblíbené části Prahy 3 – Žižkov, v ulici Krásova. Byt se nachází ve 3. patře udržovaného zděného domu s výtahem.
Byt prošel rekonstrukcí a působí velmi čistým, moderním dojmem. Dispozice je ideální pro jednotlivce nebo pár, kteří hledají pohodlné bydlení s dostatkem prostoru i soukromí, v docházkové vzdálenosti centra.
Dominantou bytu je obývací pokoj s kuchyňským koutem, který je vybaven lednicí s mrazákem, myčkou, elektrickou troubou, varnou deskou a digestoří. Obývací část je nezařízená, což umožňuje novým podnájemníkům vytvořit si interiér přesně podle svých představ.
Samostatná ložnice nabízí postel s roštem, noční stolky, zrcadlo, knihovnu, konferenční stolek a lampu. V chodbě je k dispozici šatní skříň, v předsíni botník. Koupelna disponuje vanou, umyvadlem, zrcadlem, pračkou a toaletou.
Vytápění bytu a ohřev vody zajišťuje vlastní plynový kotel. Parkování je možné na ulici v rámci modrých zón.
Lokalita patří dlouhodobě k nejvyhledávanějším v širším centru Prahy. V docházkové vzdálenosti najdete stanici tramvaje Viktoria Žižkov s rychlým spojením na metro i do centra města. Pěšky se dostanete také na Hlavní nádraží.
V okolí se nachází široká občanská vybavenost – supermarkety Lidl, Albert a Billa, nákupní centrum OC Flora, farmářské trhy na náměstí Jiřího z Poděbrad, kavárny, restaurace i kulturní podniky. Milovníci zeleně ocení blízkost parků Parukářka, Vítkov a Riegrovy sady. V pěší vzdálenosti je také Sportovní centrum Olšanka či Tenisové centrum Olšanská.
Byt je volný k nastěhování ihned.
Prohlídky jsou možné po domluvě. V případě zájmu nám napište krátkou zprávu o sobě a rádi se vám ozveme s termínem prohlídky.
Cena:
23 900 Kč / (za měsíc)
Poznámka:
vratná jistota, náklady na bydlení 4 408 Kč, poplatek za podnájem
Dispozice/podlahová plocha:
2+kk/50 m²
Číslo zakázky:
REALITYMIX-7384
Podrobné informace
Dispozice bytu:2+kk
Číslo podlaží v domě:4
Počet podlaží objektu:5
Celková podlahová plocha:50 m²
Druh objektu:cihlová
Stav objektu:velmi dobrý
Vlastnictví:osobní
Umístění objektu:klidná část obce
Doprava:vlak, dálnice, silnice, MHD, autobus
Občanská vybavenost:Škola, Školka, Zdravotnická zařízení, Pošta, Supermarket, Kompletní síť obchodů a služeb
Uživatel serveru RealityMIX.iprima.cz (dále jen „Server“) dostupného na internetové adrese (URL) https://realitymix.iprima.cz, který provozuje společnost DALTEN media s.r.o., se sídlem Na Harfě 916/9a, Praha 9, 190 00, IČO: 271 35 306 (dále jen „Správce“) jako provozovateli tohoto Serveru uděluje svůj výslovný souhlas v souladu s ustanovením § 5 zákona č. 101/2000 Sb. O ochraně osobních údajů a o změně některých zákonů, v platném znění (dále jen „zákon o ochraně osobních údajů“), se zpracováním uživatelem poskytnutých osobních údajů a dalších dat.
Uživatel poskytuje Správci osobní údaje v rozsahu: jméno, příjmení, e-mailová adresa, telefonický kontakt a další data, a to z důvodu projeveného zájmu o nemovitost, kde prostřednictvím služby Serveru Správce osloví Uživatel inzerenta uvedeného v detailu
nemovitosti - Ideální nájemce (IČ 29300631) se zájmem o jeho služby.
Uživatel tyto osobní údaje poskytuje dobrovolně a bere na vědomí, že součástí služeb Správce, které Správce Uživateli poskytuje, je vyhledání všech Uživateli vyhovujících (dle parametrů - cena, typ nemovitosti, lokalita atd.) nemovitostí. Správce za tímto účelem provozuje aplikace Hlídací pes a newsletter. Tyto služby je možné z každého zaslaného emailu odhlásit. Souhlas se zpracováním osobních údajů Uživatel poskytuje Správci na dobu neurčitou s tím, že svůj udělený souhlas může Uživatel kdykoliv na drese správce info@realitymix.cz odvolat. Správce garantuje Uživateli i další práva uvedené v ustanovení §11 a §21 zákoba č. 101/200 Sb. Ve znění pozdějších předpisů.
Více informací o zpracování údajů získáte zde (realitymix.cz/zasady-ochrany-osobnich-udaju)