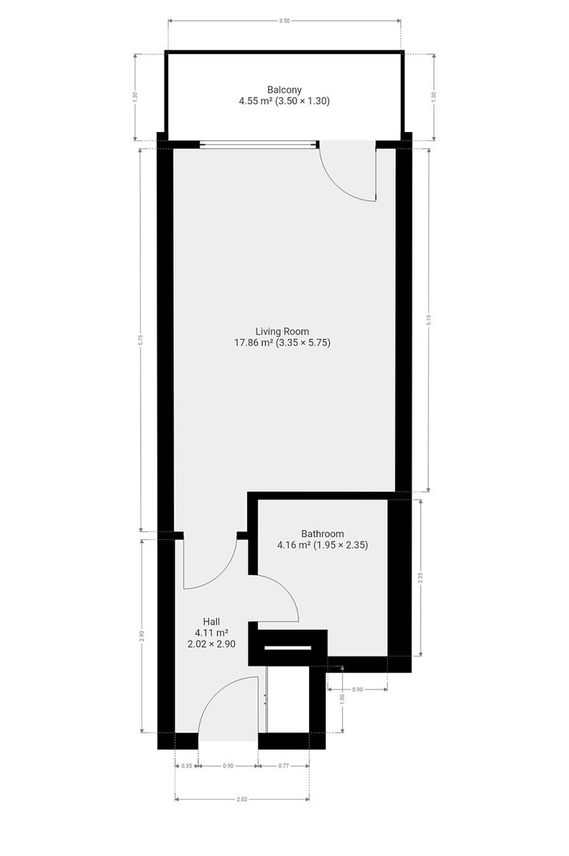
K dlouhodobému podnájmu Vám nabízíme slunný, útulný byt o dispozici 1+kk s balkonem, garážovým parkovacím stáním a sklepní kójí ve velmi klidné, přesto dobře dopravně dostupné lokalitě pražského Zličína.
Byt se nachází ve zvýšeném přízemí cihlového domu. Skládá se ze vstupní chodby vybavené vestavnou šatní skříní, koupelny společné s toaletou zařízené zařízené pračkou, sprchovým koutem a umyvadlem.
Obývací pokoj společný s kuchyňským koutem je zařízen obývací stěnou. Lze z něho vejít na prostorný balkon. O zajištění bezpečnosti se postarají elektrické předokenní rolety, které oddělují balkón od obývacího pokoje.
Kuchyně je zařízena všemi spotřebiči - lednice, varná deska, digestoř, trouba a vestavná mikrovlnná trouba.
Byt se nachází v klidné lokalitě, ulice Sazovická na Zličíně. Jen pár kroku od domu je autobusová zastávka "Nový Zličín". Na metro B to máte jednu zastávku autobusem nebo 5 minut klidnou procházkou. Stejně tak do OC Metropole Zličín.
K bytu náleží garážové parkovací stání a sklepní kóje.
Zálohové platby už obsahují zálohy na elektřinu a pojištění domácnosti.
Byt je k dispozici od 1.3.2026.
Cena:
16 500 Kč / (za měsíc)
Poznámka:
vratná jistota, náklady na bydlení 3.500,-Kč poplatek za podnájem
Dispozice/podlahová plocha:
1+kk/30 m²
Číslo zakázky:
REALITYMIX-6053
Podrobné informace
Bezbariérový byt:ano
Dispozice bytu:1+kk
Číslo podlaží v domě:3
Počet podlaží objektu:9
Celková podlahová plocha:30 m²
Druh objektu:cihlová
Stav objektu:velmi dobrý
Vlastnictví:osobní
Umístění objektu:klidná část obce
Doprava:vlak, dálnice, silnice, MHD, autobus
Občanská vybavenost:Škola, Školka, Zdravotnická zařízení, Pošta, Supermarket, Kompletní síť obchodů a služeb
Uživatel serveru RealityMIX.iprima.cz (dále jen „Server“) dostupného na internetové adrese (URL) https://realitymix.iprima.cz, který provozuje společnost DALTEN media s.r.o., se sídlem Na Harfě 916/9a, Praha 9, 190 00, IČO: 271 35 306 (dále jen „Správce“) jako provozovateli tohoto Serveru uděluje svůj výslovný souhlas v souladu s ustanovením § 5 zákona č. 101/2000 Sb. O ochraně osobních údajů a o změně některých zákonů, v platném znění (dále jen „zákon o ochraně osobních údajů“), se zpracováním uživatelem poskytnutých osobních údajů a dalších dat.
Uživatel poskytuje Správci osobní údaje v rozsahu: jméno, příjmení, e-mailová adresa, telefonický kontakt a další data, a to z důvodu projeveného zájmu o nemovitost, kde prostřednictvím služby Serveru Správce osloví Uživatel inzerenta uvedeného v detailu
nemovitosti - Ideální nájemce (IČ 29300631) se zájmem o jeho služby.
Uživatel tyto osobní údaje poskytuje dobrovolně a bere na vědomí, že součástí služeb Správce, které Správce Uživateli poskytuje, je vyhledání všech Uživateli vyhovujících (dle parametrů - cena, typ nemovitosti, lokalita atd.) nemovitostí. Správce za tímto účelem provozuje aplikace Hlídací pes a newsletter. Tyto služby je možné z každého zaslaného emailu odhlásit. Souhlas se zpracováním osobních údajů Uživatel poskytuje Správci na dobu neurčitou s tím, že svůj udělený souhlas může Uživatel kdykoliv na drese správce info@realitymix.cz odvolat. Správce garantuje Uživateli i další práva uvedené v ustanovení §11 a §21 zákoba č. 101/200 Sb. Ve znění pozdějších předpisů.
Více informací o zpracování údajů získáte zde (realitymix.cz/zasady-ochrany-osobnich-udaju)