K dlouhodobému podnájmu Vám nabízíme krásný, útulný byt v lukrativní lokalitě, v samotním srdci Pražského Smíchova.
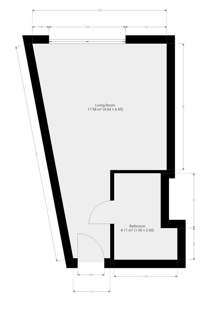
Byt se nachází ve druhém patře novostavby, rezidence My Mozart. Skládá se ze vstupní chodby, koupelny společné s toaletou se sprchovým koutem, pračkou a umyvadlem a obývací části s kuchyňským koutem.
Oproti fotografiím bude byt nezařízený. Zůstane pouze vyklápěcí postel v obývacím pokoji.
Kuchyně je vybavena myčkou, troubou, elektrickou dvouploténkou a digestoří. Dále je zde vestavná lednice. V chodbě se nachází vestavná šatní skříň.
K bytu náleží dva samostatné sklepy, vlastní garážové parkovací stání a je možné využívat společnou střešní terasu.
Jak již bylo zmíněno, byt se nachází v samotném srdci Smíchova, jen pár kroku od OC Nový Smíchov. V bezprostředním okolí domu tak máte k dispozici kompletní síť obchodů, služeb a zábavy.
Zálohové platby již obsahují zálohy na elektřinu a pojištění domácnosti.
Byt je k dispozici pro nastěhování od 1.7.2026.
Cena:
19 400 Kč / (za měsíc)
Poznámka:
vratná jistota, náklady na bydlení 4.500,-Kč, poplatek za podnájem
Dispozice/podlahová plocha:
1+kk/21 m²
Číslo zakázky:
REALITYMIX-7653
Podrobné informace
Dispozice bytu:1+kk
Číslo podlaží v domě:2
Počet podlaží objektu:5
Celková podlahová plocha:21 m²
Druh objektu:cihlová
Stav objektu:novostavba
Vlastnictví:osobní
Doprava:vlak, dálnice, silnice, MHD, autobus
Občanská vybavenost:Škola, Školka, Zdravotnická zařízení, Pošta, Supermarket, Kompletní síť obchodů a služeb
Uživatel serveru RealityMIX.iprima.cz (dále jen „Server“) dostupného na internetové adrese (URL) https://realitymix.iprima.cz, který provozuje společnost DALTEN media s.r.o., se sídlem Na Harfě 916/9a, Praha 9, 190 00, IČO: 271 35 306 (dále jen „Správce“) jako provozovateli tohoto Serveru uděluje svůj výslovný souhlas v souladu s ustanovením § 5 zákona č. 101/2000 Sb. O ochraně osobních údajů a o změně některých zákonů, v platném znění (dále jen „zákon o ochraně osobních údajů“), se zpracováním uživatelem poskytnutých osobních údajů a dalších dat.
Uživatel poskytuje Správci osobní údaje v rozsahu: jméno, příjmení, e-mailová adresa, telefonický kontakt a další data, a to z důvodu projeveného zájmu o nemovitost, kde prostřednictvím služby Serveru Správce osloví Uživatel inzerenta uvedeného v detailu
nemovitosti - Ideální nájemce (IČ 29300631) se zájmem o jeho služby.
Uživatel tyto osobní údaje poskytuje dobrovolně a bere na vědomí, že součástí služeb Správce, které Správce Uživateli poskytuje, je vyhledání všech Uživateli vyhovujících (dle parametrů - cena, typ nemovitosti, lokalita atd.) nemovitostí. Správce za tímto účelem provozuje aplikace Hlídací pes a newsletter. Tyto služby je možné z každého zaslaného emailu odhlásit. Souhlas se zpracováním osobních údajů Uživatel poskytuje Správci na dobu neurčitou s tím, že svůj udělený souhlas může Uživatel kdykoliv na drese správce info@realitymix.cz odvolat. Správce garantuje Uživateli i další práva uvedené v ustanovení §11 a §21 zákoba č. 101/200 Sb. Ve znění pozdějších předpisů.
Více informací o zpracování údajů získáte zde (realitymix.cz/zasady-ochrany-osobnich-udaju)