Havlíčkova, Praha 1, Nové Město
39 900 000 KčHavlíčkova, Praha 1, Nové Město
| Cena: | 39 900 000 Kč |
| Poznámka: | včetně provize a právního servisu |
| Datum k nastěhování: | 01.09.2026 |
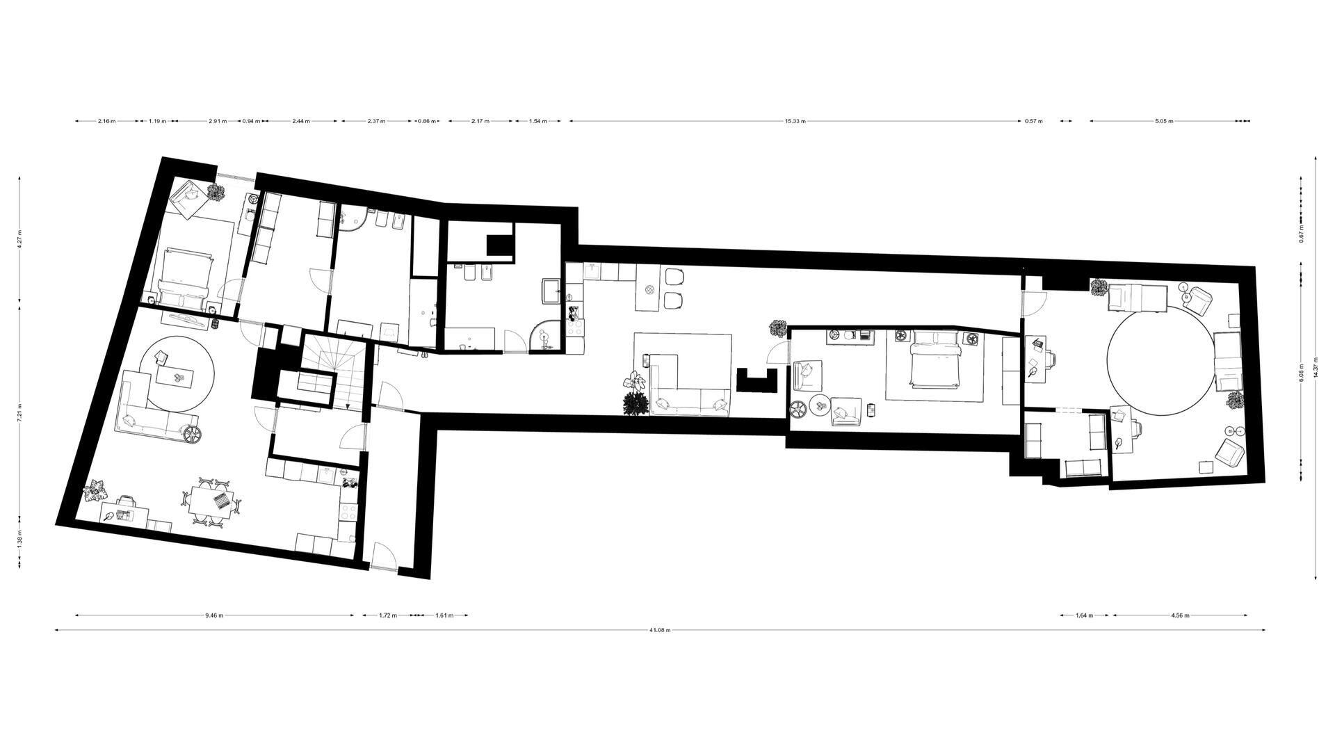
| Dispozice/podlahová plocha: | Atypický/295 m² |
| Číslo zakázky: | REALITYMIX-N00647 |
V tomto článku shrneme nejdůležitější věci, které byste si měli promyslet, pokud se chystáte prodat svou nemovitost a chcete, abyste s kupujícím nemusel následně řešit vzniklé problémy.
Jako prodávající nesete rizika spojená nejen se samotným obchodem, ale i se stavem nemovitosti v době prodeje a pro minimalizaci rizik, je dobré se zamyslet nad uvedenými oblastmi.
Realitní makléř má své nezastupitelné místo v realitním obchodu. Realitním makléřem nemyslím nevzdělané jelito, které absolvovalo dvoudenní školení a ví, jak se nahraje inzerát na inzertní portál.
Realitním makléřem, který se Vám skutečně vyplatí, je zkušený profesionál, který je schopen Vám dobře poradit jak prodat za co nejvíc a s nejmenším rizikem a hlavně je Vás schopen obratně provést celým realitním obchodem.