Prodej dvougeneračního rodinného domu, Praha - Kyje
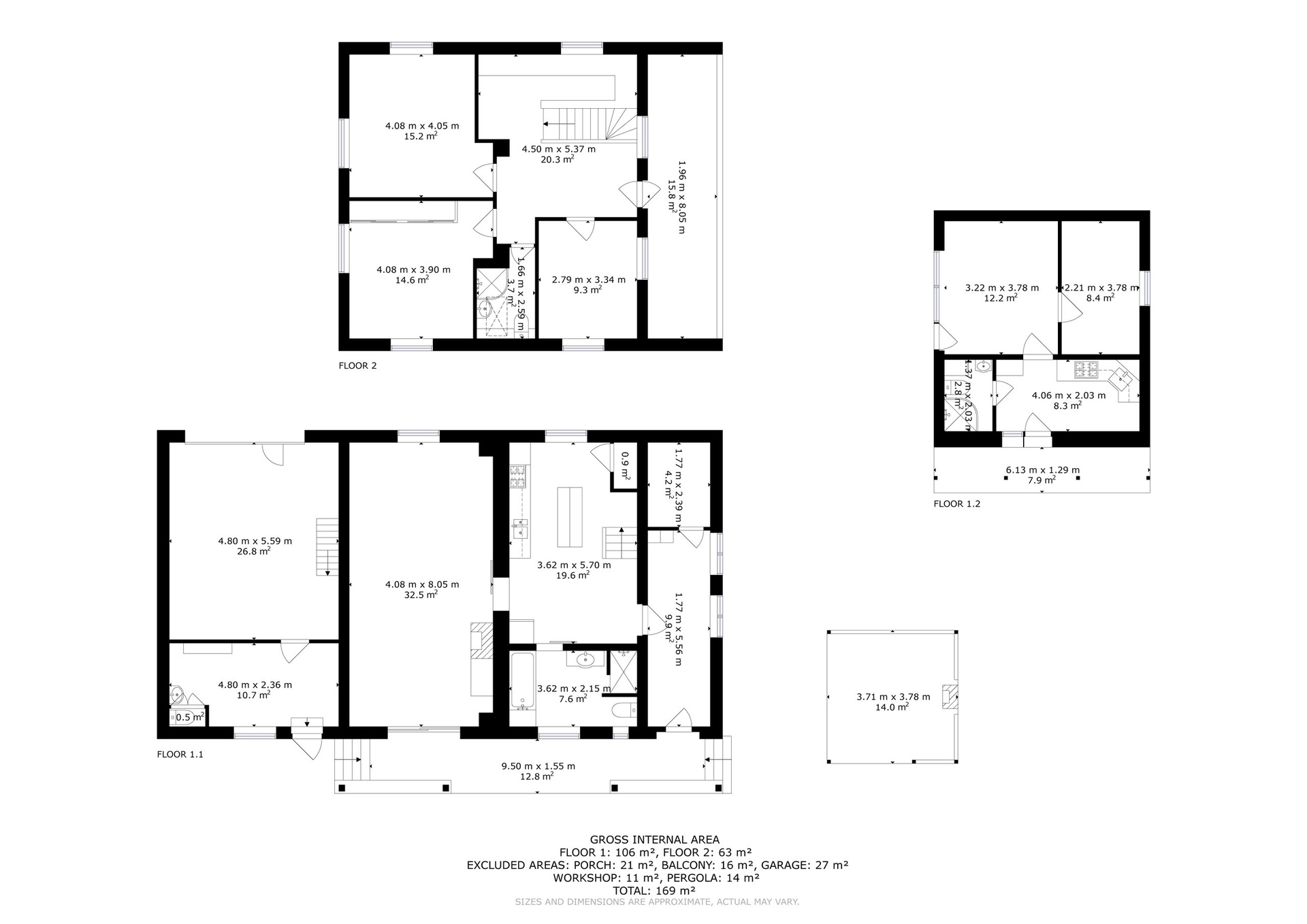
Nabízíme k prodeji výjimečný dvoupodlažní rodinný dům o dispozici 4+1 s vedlejším domkem o dispozici 2+kk, situovaný v klidné a vyhledávané části Prahy – Kyje, na adrese Borská, Praha - Kyje. Nemovitost se nachází na rohovém pozemku o celkové výměře 758 m2, který zajišťuje nadstandardní míru soukromí, a je ideální volbou pro náročné klienty hledající komfortní rodinné bydlení s přidanou hodnotou.
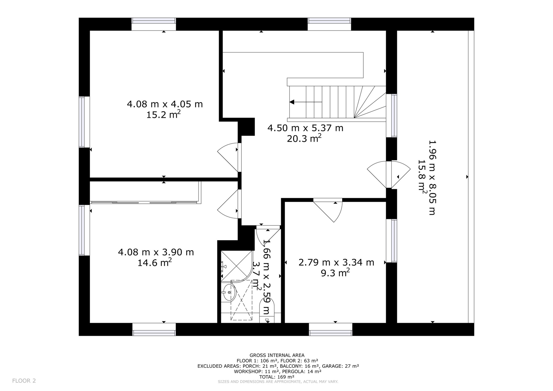
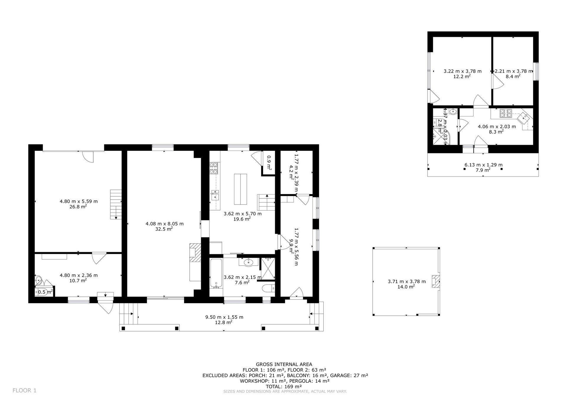
Hlavní dům
Dům je podsklepený, dispozičně velmi dobře řešený a nabízí dostatek prostoru, světla i funkčního zázemí.
dispozice 4+1
dvě nadzemní podlaží
prostorný obývací prostor s kuchyňským koutem
3 x ložnice
otevřená pracovna v patře
2 x koupelna ( 1 x s vanou, sprchovým koutem a WC v přízemí a 1x se sprchovým koutem a WC v patře
předsíň
velká garáž s montážní jámou
dílna
sklepní prostory poskytující dostatek úložného i technického zázemí
Nemovitost prošla v posledních letech modernizací: nová okna s bezpečnostními skly, izolace stropů, nové radiátory a rozvody topení, moderní kuchyně, skleněné schodiště do patra, vinylové podlahové krytiny atd.
Vedlejší dům na zahradě
Součástí pozemku je také samostatný menší domek o dispozici 2+kk s vlastní koupelnou se sprchovým koutem. Domek je zateplen a vytápěn tepelným čerpadlem. Tento objekt je ideální pro vícegenerační bydlení, hosty, kancelář, ateliér nebo jako investiční jednotka k pronájmu.
Zahrada a exteriér
Nemovitost je obklopena udržovanou zahradou, která poskytuje příjemné soukromí a prostor pro relaxaci i rodinné aktivity.
Na pozemku se nachází pergola pro letní posezení a také dostatek místa pro parkování dalších vozidel, což výrazně zvyšuje komfort každodenního užívání.
Díky rohovému pozemku je dům oddělen od okolní zástavby a nabízí klidné a nerušené bydlení, nachází se v obytné zóně.
Shrnutí hlavních benefitů
rodinný dům 4+1 + pracovna
samostatný dům 2+kk na pozemku
rohový pozemek ( o celkové výměře 758 m2, zastavěná plocha 209 m2) zajišťující soukromí
udržovaná zahrada
velká garáž s montážní jámou + parkování dalších vozů
dílna a sklep
prestižní a klidná lokalita Praha – Kyje
Nemovitost se nachází v klidné rezidenční části Prahy 9 – Kyje, která je dlouhodobě vyhledávaná pro své rodinné prostředí, dostatek zeleně a zároveň výbornou dostupnost do centra města.
Doprava a dostupnost
Stanice metra B – Rajská zahrada je vzdálena přibližně 10 minut chůze od domu, což zajišťuje rychlé a pohodlné spojení do centra Prahy
Autobusová zastávky MHD cca 7 minut pěšky
Železniční stanice Praha-Rajská zahrada s přímým spojením na Hlavní nádraží (cca 10–12 minut jízdy)
Výborné napojení na Pražský okruh a hlavní dopravní tahy
Obchodní možnosti
Základní obchody a služby v docházkové vzdálenosti
Westfield Černý Most:
cca 5 minut autem
cca 10–15 minut MHD
Jedno z největších nákupních a zábavních center v Praze s bohatou nabídkou obchodů, restaurací, kaváren i kina.
Hornbach 3 minuty autem.
Školy a zdravotní péče
Mateřské a základní školy v místě i blízkém okolí
Lékaři, polikliniky a lékárny dostupné v rámci Prahy 9
Zeleň a volný čas
Kyjský rybník a okolní parky v krátké docházkové vzdálenosti
Lesní cesty, cyklostezky a klidné rezidenční ulice ideální pro sport i relaxaci
Lokalita nabízí harmonické spojení přírody a městského komfortu
Pro bližší informace nebo prohlídku kontaktujte makléře.
V tomto článku shrneme nejdůležitější věci, které byste si měli promyslet, pokud se chystáte prodat svou nemovitost a chcete, abyste s kupujícím nemusel následně řešit vzniklé problémy.
Jako prodávající nesete rizika spojená nejen se samotným obchodem, ale i se stavem nemovitosti v době prodeje a pro minimalizaci rizik, je dobré se zamyslet nad uvedenými oblastmi.
Realitní makléř má své nezastupitelné místo v realitním obchodu. Realitním makléřem nemyslím nevzdělané jelito, které absolvovalo dvoudenní školení a ví, jak se nahraje inzerát na inzertní portál.
Realitním makléřem, který se Vám skutečně vyplatí, je zkušený profesionál, který je schopen Vám dobře poradit jak prodat za co nejvíc a s nejmenším rizikem a hlavně je Vás schopen obratně provést celým realitním obchodem.
Uživatel serveru RealityMIX.iprima.cz (dále jen „Server“) dostupného na internetové adrese (URL) https://realitymix.iprima.cz, který provozuje společnost DALTEN media s.r.o., se sídlem Na Harfě 916/9a, Praha 9, 190 00, IČO: 271 35 306 (dále jen „Správce“) jako provozovateli tohoto Serveru uděluje svůj výslovný souhlas v souladu s ustanovením § 5 zákona č. 101/2000 Sb. O ochraně osobních údajů a o změně některých zákonů, v platném znění (dále jen „zákon o ochraně osobních údajů“), se zpracováním uživatelem poskytnutých osobních údajů a dalších dat.
Uživatel poskytuje Správci osobní údaje v rozsahu: jméno, příjmení, e-mailová adresa, telefonický kontakt a další data, a to z důvodu projeveného zájmu o nemovitost, kde prostřednictvím služby Serveru Správce osloví Uživatel inzerenta uvedeného v detailu
nemovitosti - ABA REAL s.r.o. (IČ 24810282) se zájmem o jeho služby.
Uživatel tyto osobní údaje poskytuje dobrovolně a bere na vědomí, že součástí služeb Správce, které Správce Uživateli poskytuje, je vyhledání všech Uživateli vyhovujících (dle parametrů - cena, typ nemovitosti, lokalita atd.) nemovitostí. Správce za tímto účelem provozuje aplikace Hlídací pes a newsletter. Tyto služby je možné z každého zaslaného emailu odhlásit. Souhlas se zpracováním osobních údajů Uživatel poskytuje Správci na dobu neurčitou s tím, že svůj udělený souhlas může Uživatel kdykoliv na drese správce info@realitymix.cz odvolat. Správce garantuje Uživateli i další práva uvedené v ustanovení §11 a §21 zákoba č. 101/200 Sb. Ve znění pozdějších předpisů.
Více informací o zpracování údajů získáte zde (realitymix.cz/zasady-ochrany-osobnich-udaju)