Představujeme Vám exkluzivní byt 3+kk, umístěný v jedenáctém patře panelové budovy s referenčním číslem na ulici Běhounkova, v oblíbené části Prahy Stodůlky.
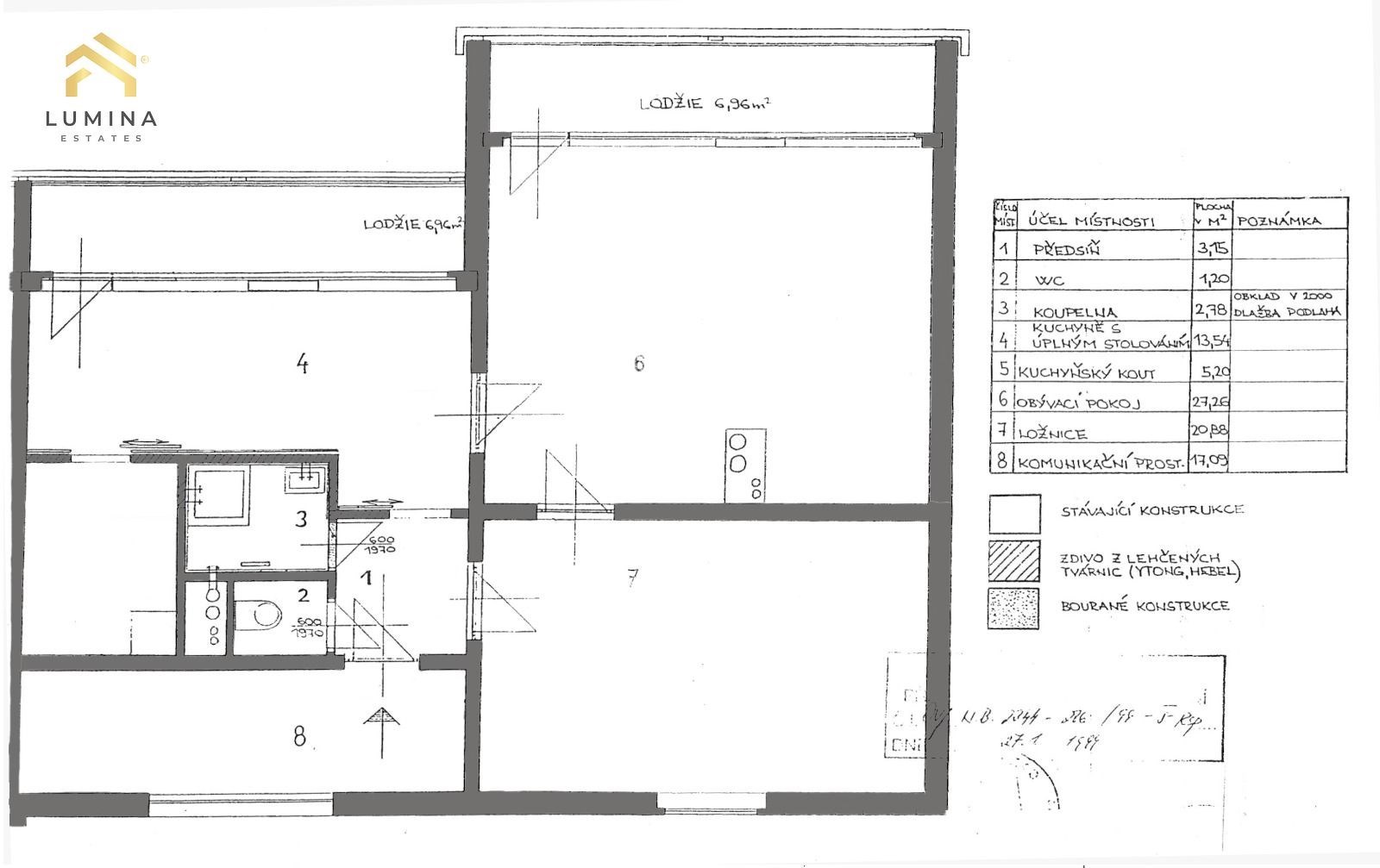
Tento byt, o celkové užitné ploše 91 m², zahrnuje životní prostor 76 m² a je doplněný o dva balkony o velikosti 14,92 m, které jsou opatřeny sítěmi proti holubům, s krásným výhledem na Prahu. Chodba vedoucí od výtahu je pod bezpečnostními dveřmi uzavřena pro dva byty, tzv. komunikační prostor o výměře 17 m2 a komoru náležící k bytové jednotce o výměře 5 m².
V přízemí domu se nachází recepce a zajišťuje pohodlný a bezpečný chod celého objektu spojeno s ochranou. Dům prošel kompletní revitalizací – nové vstupy, schránky, okna, zateplená fasáda, modernizované výtahy a zateplení střechy. Budova se nachází v lokalitě s veřejným vodovodem a kanalizací a vytápění je zajištěno centrálně. Disponuje 4 výtahy: dva osobní a dva jsou nákladové.
S umístěním v jedenáctém patře si budete moci vychutnávat panoramatický výhled na jihovýchod, což přináší bytu mnoho denního světla a útulnou atmosféru. Byt je ve stavu označeném jako velmi dobrý, což znamená, že je ihned připraven k nastěhování a dalšímu využívání. V bytě je již instalovaná moderní kuchyň s elektrickým sporákem. Tato nabídka je zajímavá pro ty, kteří hledají komfort městského bydlení spolu s výborným dopravním spojením a infrastrukturou.
Možnost financování hypotékou a přítomností recepce v budově, tento byt splňuje potřeby moderního bydlení. Navíc, stát se majitelem tohoto bytu je velmi jednoduché, jelikož je k dispozici s osobním vlastnictvím. Celková kupní cena je stanovena na 10 550 000 Kč.
Byt se nachází v části města s dobrou dostupností městské hromadné dopravy, což zajišťuje snadný přístup do různých částí Prahy. Parkování je možné přímo na ulici. Dostupnost 5 min.metro Hůrka, 10 min. Centrální park a Prokopské údolí. Tato lokalita nabízí vše potřebné pro pohodlné bydlení od obchodů, přes školy, zdravotnická zařízení, až po zelené parky a relaxační zóny.
Nechejte se očarovat tímto nádherným domovem, který čeká, až mu dáte osobní dotek a stane se vaším vysněným bydlením. Pro více informací nebo pro domluvení prohlídky tohoto bytu neváhejte kontaktovat makléřku Zuzku.
Cena:
10 550 000 Kč
Datum k nastěhování:
16.02.2026
Dispozice/podlahová plocha:
3+kk/101 m²
Číslo zakázky:
REALITYMIX-972249
Podrobné informace
Dispozice bytu:3+kk
Číslo podlaží v domě:12
Počet podlaží objektu:12
Celková podlahová plocha:101 m²
Druh objektu:panelová
Stav objektu:dobrý
Vlastnictví:osobní
Balkon:14 m²
Lodžie:15 m²
Sklep:5 m²
Doprava:MHD
Elektřina:Elektro - 230 V
Voda:Zdroj pro celý objekt, Voda - dálkový vodovod
V tomto článku shrneme nejdůležitější věci, které byste si měli promyslet, pokud se chystáte prodat svou nemovitost a chcete, abyste s kupujícím nemusel následně řešit vzniklé problémy.
Jako prodávající nesete rizika spojená nejen se samotným obchodem, ale i se stavem nemovitosti v době prodeje a pro minimalizaci rizik, je dobré se zamyslet nad uvedenými oblastmi.
Realitní makléř má své nezastupitelné místo v realitním obchodu. Realitním makléřem nemyslím nevzdělané jelito, které absolvovalo dvoudenní školení a ví, jak se nahraje inzerát na inzertní portál.
Realitním makléřem, který se Vám skutečně vyplatí, je zkušený profesionál, který je schopen Vám dobře poradit jak prodat za co nejvíc a s nejmenším rizikem a hlavně je Vás schopen obratně provést celým realitním obchodem.
Uživatel serveru RealityMIX.iprima.cz (dále jen „Server“) dostupného na internetové adrese (URL) https://realitymix.iprima.cz, který provozuje společnost DALTEN media s.r.o., se sídlem Na Harfě 916/9a, Praha 9, 190 00, IČO: 271 35 306 (dále jen „Správce“) jako provozovateli tohoto Serveru uděluje svůj výslovný souhlas v souladu s ustanovením § 5 zákona č. 101/2000 Sb. O ochraně osobních údajů a o změně některých zákonů, v platném znění (dále jen „zákon o ochraně osobních údajů“), se zpracováním uživatelem poskytnutých osobních údajů a dalších dat.
Uživatel poskytuje Správci osobní údaje v rozsahu: jméno, příjmení, e-mailová adresa, telefonický kontakt a další data, a to z důvodu projeveného zájmu o nemovitost, kde prostřednictvím služby Serveru Správce osloví Uživatel inzerenta uvedeného v detailu
nemovitosti - LUMINA ESTATES (IČ 23686880) se zájmem o jeho služby.
Uživatel tyto osobní údaje poskytuje dobrovolně a bere na vědomí, že součástí služeb Správce, které Správce Uživateli poskytuje, je vyhledání všech Uživateli vyhovujících (dle parametrů - cena, typ nemovitosti, lokalita atd.) nemovitostí. Správce za tímto účelem provozuje aplikace Hlídací pes a newsletter. Tyto služby je možné z každého zaslaného emailu odhlásit. Souhlas se zpracováním osobních údajů Uživatel poskytuje Správci na dobu neurčitou s tím, že svůj udělený souhlas může Uživatel kdykoliv na drese správce info@realitymix.cz odvolat. Správce garantuje Uživateli i další práva uvedené v ustanovení §11 a §21 zákoba č. 101/200 Sb. Ve znění pozdějších předpisů.
Více informací o zpracování údajů získáte zde (realitymix.cz/zasady-ochrany-osobnich-udaju)