Prodávám prostorný byt 3+kk o výměře 64 m² umístěný ve druhé podlaží osmipodlažní cihlové novostavby. Byt je částečně vybaven a nabízí promyšlené uspořádání, které skvěle využije každou jeho část. Dispozice bytu poskytuje pohodlné bydlení pro jednotlivce nebo menší rodinu a k dispozici je také praktický sklep o rozloze 2 m².
Velkým lákadlem této nemovitosti je prostorná terasa o rozloze 34 m², ideální pro relaxaci i společenské chvíle venku. Nemovitost disponuje také parkováním a garáží, což značně usnadňuje řešení parkovacích otázek.
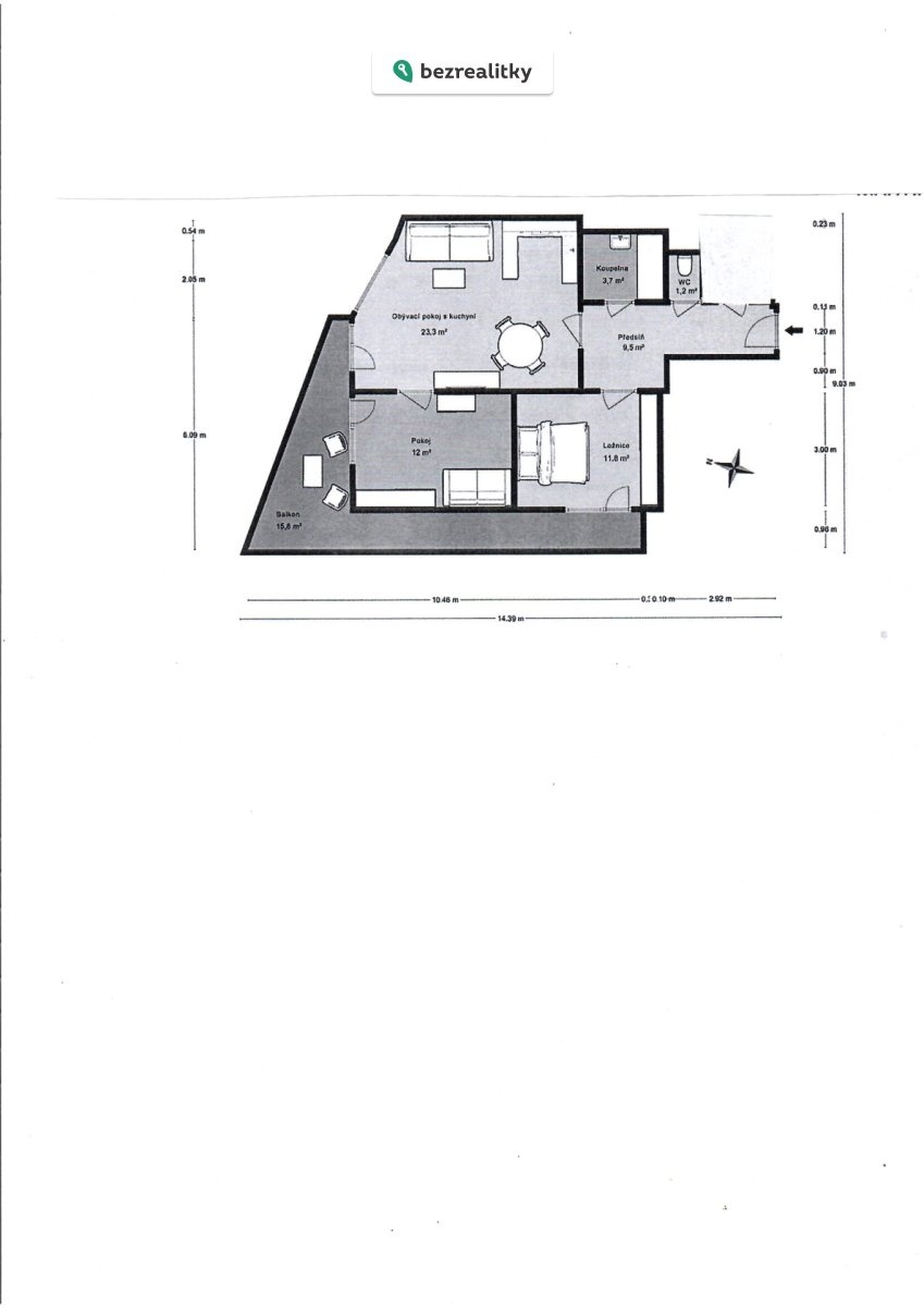
Nabízím k prodeji byt v osobním vlastnictví, nacházející se v Praze 5 – Zličín, ulice Sazovická. Celková výměra bytu činí 130,7 m², z toho mají terasy velikost 33,9 m² , vlastní zahrádka má velikost 32,4 m² a užitná plocha bytu je 64,4 m² dle prohlášení vlastníka. Byt se nachází v moderním bytovém domě v 1 NP s výtahem a podzemním parkováním. V domě z roku 2009 je celkem 132 bytových jednotek. Výbor SVJ funguje velmi dobře. V domě i v garážích je kamerový systém pro ochranu majetku.
Dispozice bytu je prakticky řešena a nabízí pohodlné bydlení. Podlahy v obytných místnostech jsou plovoucí, v koupelně je položena dlažba. Okna jsou plastová, stejně jako francouzská okna, která se nachází v obývacím pokoji i ložnici. Díky tomu je vstup na prostornou terasu napojen na zahrádku, což umožňuje propojení interiéru s venkovním prostorem.
Dispozice bytu:
Předsíň 9,6 m2, koupelna 3,7 m2, obývací pokoj+kk 23,4 m2, 2x pokoj po 12,10 m2, WC 1,2 m2, terasa 1...17,5 m2, terasa 2...16,4m 2, zahrádka 32,4 m2, sklep 2,3 m2.
Byt je částečně zařízen nábytkem z IKEA. Kuchyň je vybavena kuchyňskou linkou, myčkou nádobí a elektrospotřebiči. V pokoji je velká skříň PAX a dvoulůžko. V koupelně vana a pračka. WC samostatné.
Vytápění bytu je řešeno ústředním dálkovým topením, ohřev teplé vody je zajištěn centrálně dálkově.
Součástí bytu je také sklepní kóje, která poskytuje praktický úložný prostor. Velkou výhodou je parkovací stání v suterénu domu, do kterého je zajištěn pohodlný vjezd.
Lokalita Praha – Zličín patří mezi velmi dobře dostupné a vyhledávané části města. V blízkosti se nachází kompletní občanská vybavenost, obchodní centrum Metropole Zličín, školy, školky, lékaři i služby. Výborná je dopravní dostupnost – metro B Zličín, autobusové spoje i rychlé napojení na Pražský okruh a dálnici D5.
Poplatky: FO: 1 288Kč, Voda: TV 2 726, SV 1300 Kč, Teplo: 1021 Kč, El 2 000 Kč
Byt je vhodný jak pro vlastní bydlení, tak i jako investiční příležitost díky své poloze, dispozici a parkovacímu stání. V současné době je nemovitost pronajata spolehlivým nájemcům s měsíčním výnosem 24400 Kč. Nájemní smlouva na byt je platná do konce r. 2026 a je tedy ji možno převzít. Nájemní smlouvu na GS je možno nechat prodloužit nebo vypovědět.
Pro bližší informace či sjednání prohlídky mě prosím kontaktujte prostřednictvím komunikační platformy. Tato nemovitost je určena výhradně přímým zájemcům o koupi. Na inzerát můžete také reagovat přímo na webu Bezrealitky.
V tomto článku shrneme nejdůležitější věci, které byste si měli promyslet, pokud se chystáte prodat svou nemovitost a chcete, abyste s kupujícím nemusel následně řešit vzniklé problémy.
Jako prodávající nesete rizika spojená nejen se samotným obchodem, ale i se stavem nemovitosti v době prodeje a pro minimalizaci rizik, je dobré se zamyslet nad uvedenými oblastmi.
Realitní makléř má své nezastupitelné místo v realitním obchodu. Realitním makléřem nemyslím nevzdělané jelito, které absolvovalo dvoudenní školení a ví, jak se nahraje inzerát na inzertní portál.
Realitním makléřem, který se Vám skutečně vyplatí, je zkušený profesionál, který je schopen Vám dobře poradit jak prodat za co nejvíc a s nejmenším rizikem a hlavně je Vás schopen obratně provést celým realitním obchodem.
* Umístění na mapě je na základě GPS informací dodaných realitní kanceláří.
* Pozice na mapě je pouze orientační.
Souhlas se zpracováním osobních údajů
Uživatel serveru RealityMIX.iprima.cz (dále jen „Server“) dostupného na internetové adrese (URL) https://realitymix.iprima.cz, který provozuje společnost DALTEN media s.r.o., se sídlem Na Harfě 916/9a, Praha 9, 190 00, IČO: 271 35 306 (dále jen „Správce“) jako provozovateli tohoto Serveru uděluje svůj výslovný souhlas v souladu s ustanovením § 5 zákona č. 101/2000 Sb. O ochraně osobních údajů a o změně některých zákonů, v platném znění (dále jen „zákon o ochraně osobních údajů“), se zpracováním uživatelem poskytnutých osobních údajů a dalších dat.
Uživatel poskytuje Správci osobní údaje v rozsahu: jméno, příjmení, e-mailová adresa, telefonický kontakt a další data, a to z důvodu projeveného zájmu o nemovitost, kde prostřednictvím služby Serveru Správce osloví Uživatel inzerenta uvedeného v detailu
nemovitosti - Bezrealitky s.r.o. (IČ 08063168) se zájmem o jeho služby.
Uživatel tyto osobní údaje poskytuje dobrovolně a bere na vědomí, že součástí služeb Správce, které Správce Uživateli poskytuje, je vyhledání všech Uživateli vyhovujících (dle parametrů - cena, typ nemovitosti, lokalita atd.) nemovitostí. Správce za tímto účelem provozuje aplikace Hlídací pes a newsletter. Tyto služby je možné z každého zaslaného emailu odhlásit. Souhlas se zpracováním osobních údajů Uživatel poskytuje Správci na dobu neurčitou s tím, že svůj udělený souhlas může Uživatel kdykoliv na drese správce info@realitymix.cz odvolat. Správce garantuje Uživateli i další práva uvedené v ustanovení §11 a §21 zákoba č. 101/200 Sb. Ve znění pozdějších předpisů.
Více informací o zpracování údajů získáte zde (realitymix.cz/zasady-ochrany-osobnich-udaju)