Toužíte po bydlení v klidné lokalitě se zelení doslova za rohem, ale zároveň s výbornou dostupností a kompletní občanskou vybaveností? Tento byt 2+kk nabídne vše zmiňované. Skvělá volba pro vlastní bydlení i jako investice.
**Hlavní přednosti bytu:**
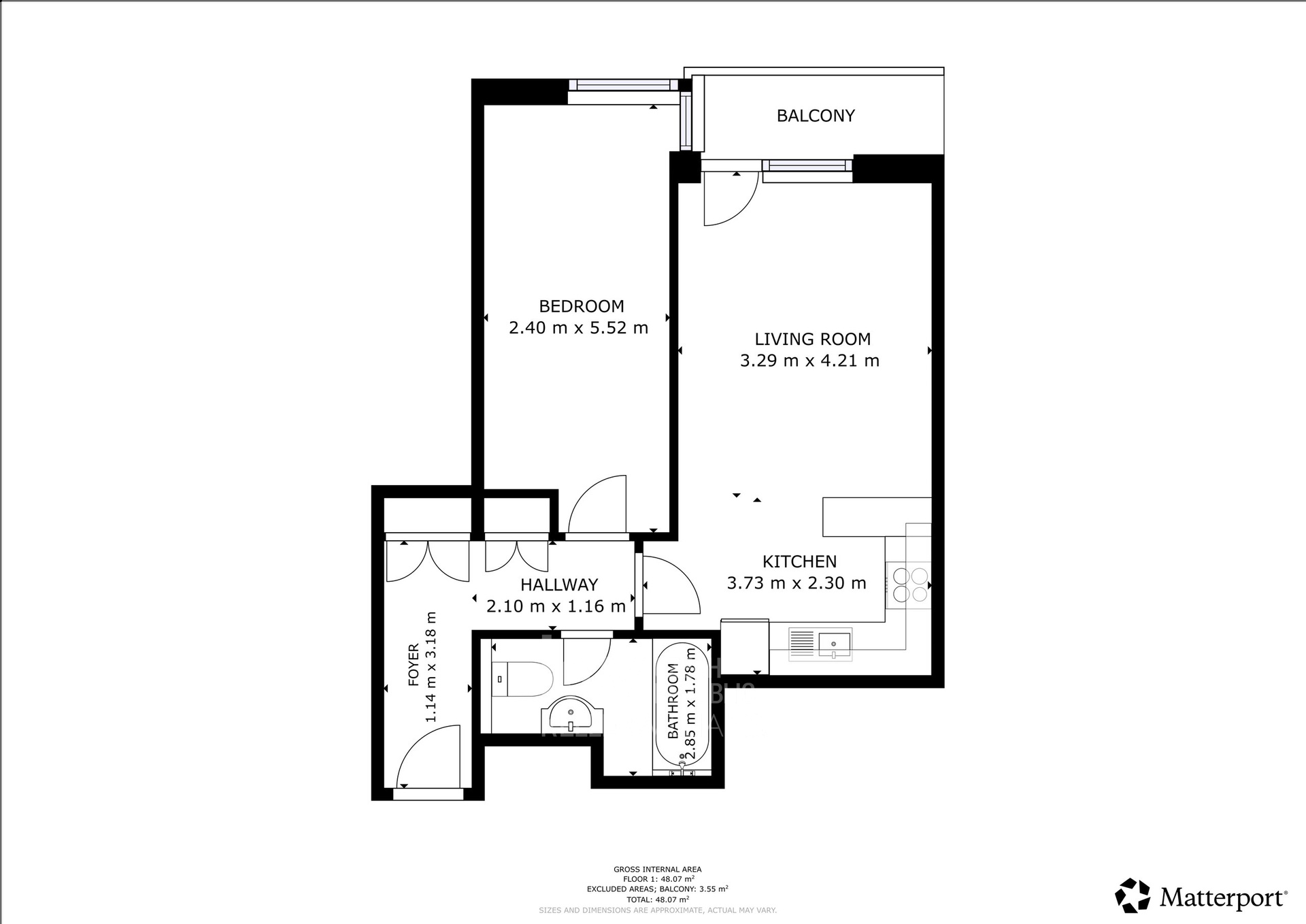
Plocha: 47,2 m²
Balkon: 3,2 m²
Kuchyňská linka po rekonstrukci
Vestavěné skříně / úložné prostory
Parkování: u domu, aktuálně bez zón placeného stání
Byt se nachází v 1. patře a už na první dojem potěší tím, jak chytře využívá prostor. Díky jižní orientaci je v interiéru příjemné denní světlo a hlavně – z oken i z balkonu se díváte do zeleně, takže byt působí klidně a vzdušně.
Po vstupu do bytu oceníte vestavěné skříně, které v 2+kk dělají obrovský rozdíl – byt je díky nim přehledný a „bez věcí po bytě“. Srdcem bytu je obývací pokoj s kuchyňským koutem a vstupem na balkon. Kuchyňská linka je po rekonstrukci a je řešená moderně a čistě, takže byt působí svěže hned při vstupu do místnosti.
Do samostatné ložnice se kromě postele pohodlně vejde i pracovní kout nebo šatní stěna, což je pro dnešní způsob bydlení velké plus. Celkově je dispozice postavená tak, aby byl byt snadno obyvatelný a zároveň dobře pronajímatelný.
Byt se nachází v klidné rezidenční části Prahy 8 (Troja/Bohnice), v zástavbě obklopené zelení a s výbornou občanskou vybaveností v okolí – v docházkové vzdálenosti je OC Krakov (nákupy, služby, lékárna, fitko, apod.). MHD je pohodlně dostupná (autobusové zastávky v krátké docházce) s rychlým spojením na metro C (Kobylisy / Nádraží Holešovice) a do centra. Velkou výhodou lokality je množství zeleně a možnosti volného času – v okolí jsou parky a přírodní trasy (např. Čimický háj), a zároveň dobrá dostupnost do Troji (ZOO a Botanická zahrada). Lokalita je praktická jak pro vlastní bydlení, tak i jako investice díky kompletní infrastruktuře a stabilní poptávce po pronájmech.
Uvedené výměry jsou orientační. V případě více zájemců bude nemovitost prodána nejlepší nabídce a majitel si vyhrazuje právo vybrat kupujícího na základě jim zvolených kritérií. Veškeré zveřejněné údaje obsažené v tomto inzerátu mají pouze informativní charakter a nejsou nabídkou ve smyslu § 1731 nebo § 1732 občanského zákoníku, ani se nejedná o veřejný příslib dle § 1733 občanského zákoníku.
Cena:
6 990 000 Kč
Dispozice/podlahová plocha:
2+kk/52 m²
Číslo zakázky:
REALITYMIX-29504
Podrobné informace
Dispozice bytu:2+kk
Číslo podlaží v domě:2
Počet podlaží objektu:1
Celková podlahová plocha:52 m²
Druh objektu:cihlová
Stav objektu:velmi dobrý
Vlastnictví:osobní
Balkon:3 m²
Sklep:2 m²
Vybaveno:ano
Doprava:dálnice, silnice, MHD, autobus
Elektřina:Elektro - 230 V
Voda:Voda - dálkový vodovod
Telekomunikace:Telefon, Internet
Plyn:Plynovod
Topení:Ústřední - dálkové
Odpad:Kanalizace
Ostatní rozvody:Kabelová televize, Kabelové rozvody
V tomto článku shrneme nejdůležitější věci, které byste si měli promyslet, pokud se chystáte prodat svou nemovitost a chcete, abyste s kupujícím nemusel následně řešit vzniklé problémy.
Jako prodávající nesete rizika spojená nejen se samotným obchodem, ale i se stavem nemovitosti v době prodeje a pro minimalizaci rizik, je dobré se zamyslet nad uvedenými oblastmi.
Realitní makléř má své nezastupitelné místo v realitním obchodu. Realitním makléřem nemyslím nevzdělané jelito, které absolvovalo dvoudenní školení a ví, jak se nahraje inzerát na inzertní portál.
Realitním makléřem, který se Vám skutečně vyplatí, je zkušený profesionál, který je schopen Vám dobře poradit jak prodat za co nejvíc a s nejmenším rizikem a hlavně je Vás schopen obratně provést celým realitním obchodem.
Uživatel serveru RealityMIX.iprima.cz (dále jen „Server“) dostupného na internetové adrese (URL) https://realitymix.iprima.cz, který provozuje společnost DALTEN media s.r.o., se sídlem Na Harfě 916/9a, Praha 9, 190 00, IČO: 271 35 306 (dále jen „Správce“) jako provozovateli tohoto Serveru uděluje svůj výslovný souhlas v souladu s ustanovením § 5 zákona č. 101/2000 Sb. O ochraně osobních údajů a o změně některých zákonů, v platném znění (dále jen „zákon o ochraně osobních údajů“), se zpracováním uživatelem poskytnutých osobních údajů a dalších dat.
Uživatel poskytuje Správci osobní údaje v rozsahu: jméno, příjmení, e-mailová adresa, telefonický kontakt a další data, a to z důvodu projeveného zájmu o nemovitost, kde prostřednictvím služby Serveru Správce osloví Uživatel inzerenta uvedeného v detailu
nemovitosti - Keller Williams Czech Republic (IČ 07796340) se zájmem o jeho služby. Tato společnost je součástí seskupení/sítě/franšízového modelu realitních kanceláří, jejich seznam můžete zobrazit kliknutím na tento odkaz.
Keller Williams Czech Republic (IČ 07796340) , Nemovito by Keller Williams (IČ 10826971) , Keller Williams Czech Republic (IČ 07796340) , Keller Williams - centrála (IČ 06521924)
Uživatel tyto osobní údaje poskytuje dobrovolně a bere na vědomí, že součástí služeb Správce, které Správce Uživateli poskytuje, je vyhledání všech Uživateli vyhovujících (dle parametrů - cena, typ nemovitosti, lokalita atd.) nemovitostí. Správce za tímto účelem provozuje aplikace Hlídací pes a newsletter. Tyto služby je možné z každého zaslaného emailu odhlásit. Souhlas se zpracováním osobních údajů Uživatel poskytuje Správci na dobu neurčitou s tím, že svůj udělený souhlas může Uživatel kdykoliv na drese správce info@realitymix.cz odvolat. Správce garantuje Uživateli i další práva uvedené v ustanovení §11 a §21 zákoba č. 101/200 Sb. Ve znění pozdějších předpisů.
Více informací o zpracování údajů získáte zde (realitymix.cz/zasady-ochrany-osobnich-udaju)