Dvě ložnice, jedna kuchyně, jeden balkon, nekonečné možnosti – Trenčínská, Záběhlice
Nabízíme Vám k prodeji byt 2+1 s balkonem a sklepem ve zděném domě v Trenčínské ulici, Praha 4 – Záběhlice. Byt je v původním stavu a je ideální pro ty, kteří hledají prostor k vlastní rekonstrukci bez příplatku za „cizí vkus“.
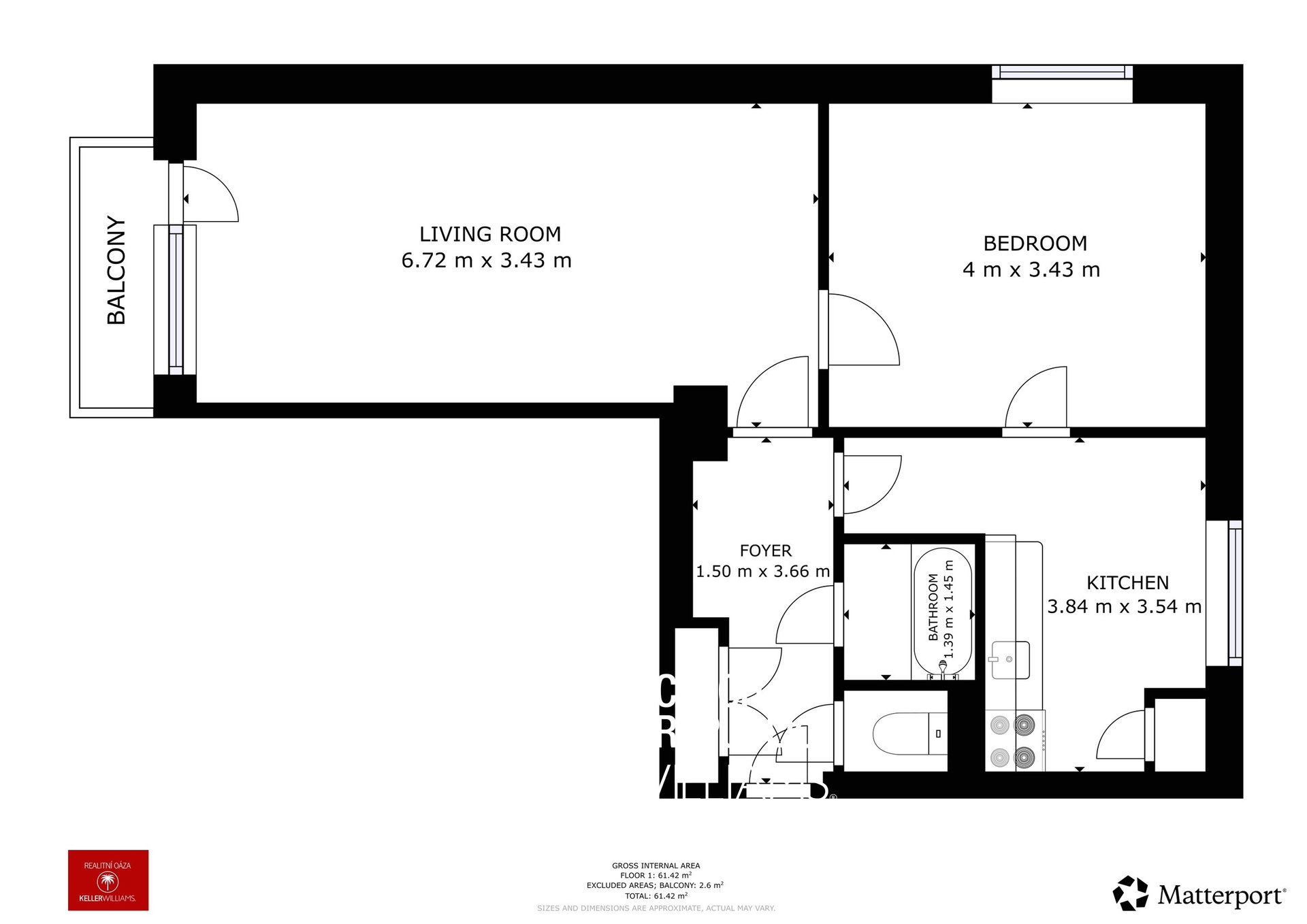
Dispozice a orientace
• dispozice 2+1/B
• umístění ve 2. nadzemním podlaží
• obývací pokoj a balkon na jih – hodně denního světla, výhled směrem k cyklostezce
• ložnice a kuchyně na sever – klidnější a chladnější část bytu vhodná na spaní a vaření
• k bytu patří sklepní kóje v podzemním podlaží domu
• možnost využít společnou kočárkárnu
Interiér je před rekonstrukcí, takže rozvržení, materiály i styl budou čistě na Vás – ideální jak pro vlastní bydlení, tak jako investiční byt s možností zvýšení hodnoty po úpravách.
Dům a bezprostřední okolí
• zděný dům o čtyřech nadzemních a jednom podzemním podlaží
• klidná, zavedená rezidenční lokalita s dostatkem zeleně
• před domem i v okolních ulicích možnost parkování na ulici
Přímo naproti domu se nachází mateřská škola, takže pro rodiny s malými dětmi je ranní logistika otázkou pár minut.
Občanská vybavenost a služby
V docházkové nebo krátké dojezdové vzdálenosti najdete:
• školku přímo naproti domu, základní školu nedaleko
• potraviny a supermarkety v okolí (menší obchody v pěší vzdálenosti, větší nákupy v blízkých nákupních zónách na Spořilově / Praze 4)
• běžné služby – lékárna, restaurace, drobné provozovny, pošta v širším okolí
Doprava
• několik minut chůze na zastávky MHD (autobusy), se kterými se pohodlně dostanete na metro C (např. Kačerov, Roztyly)
• dobrá dostupnost autem – rychlé napojení na hlavní tahy Prahy 4 a dálniční směr (Jižní spojka, D1)
Volný čas a zeleň
• přímo u domu vede cyklostezka, která umožňuje pohodlné vyjížďky na kole i bruslích
• v okolí je dostatek zelených ploch a parků, Záběhlice / Spořilov jsou dlouhodobě oblíbené pro klidné bydlení a dobré zázemí
Pokud hledáte byt, kde si můžete interiér navrhnout podle svých představ, rád Vám vše ukážu osobně a probereme možnosti rekonstrukce i využití prostoru.
Pro zájemce o financování máme připravené hypoteční úvěry za nejvýhodnějších podmínek, případě financování bez prokazování příjmů.
V případě více zájemců bude nemovitost prodána nejlepší nabídce a majitel si vyhrazuje právo vybrat kupujícího na základě jim zvolených kritérií. Veškeré zveřejněné údaje obsažené v tomto inzerátu mají pouze informativní charakter a nejsou nabídkou ve smyslu § 1731 nebo § 1732 občanského zákoníku, ani se nejedná o veřejný příslib dle § 1733 občanského zákoníku.
V tomto článku shrneme nejdůležitější věci, které byste si měli promyslet, pokud se chystáte prodat svou nemovitost a chcete, abyste s kupujícím nemusel následně řešit vzniklé problémy.
Jako prodávající nesete rizika spojená nejen se samotným obchodem, ale i se stavem nemovitosti v době prodeje a pro minimalizaci rizik, je dobré se zamyslet nad uvedenými oblastmi.
Realitní makléř má své nezastupitelné místo v realitním obchodu. Realitním makléřem nemyslím nevzdělané jelito, které absolvovalo dvoudenní školení a ví, jak se nahraje inzerát na inzertní portál.
Realitním makléřem, který se Vám skutečně vyplatí, je zkušený profesionál, který je schopen Vám dobře poradit jak prodat za co nejvíc a s nejmenším rizikem a hlavně je Vás schopen obratně provést celým realitním obchodem.
Uživatel serveru RealityMIX.iprima.cz (dále jen „Server“) dostupného na internetové adrese (URL) https://realitymix.iprima.cz, který provozuje společnost DALTEN media s.r.o., se sídlem Na Harfě 916/9a, Praha 9, 190 00, IČO: 271 35 306 (dále jen „Správce“) jako provozovateli tohoto Serveru uděluje svůj výslovný souhlas v souladu s ustanovením § 5 zákona č. 101/2000 Sb. O ochraně osobních údajů a o změně některých zákonů, v platném znění (dále jen „zákon o ochraně osobních údajů“), se zpracováním uživatelem poskytnutých osobních údajů a dalších dat.
Uživatel poskytuje Správci osobní údaje v rozsahu: jméno, příjmení, e-mailová adresa, telefonický kontakt a další data, a to z důvodu projeveného zájmu o nemovitost, kde prostřednictvím služby Serveru Správce osloví Uživatel inzerenta uvedeného v detailu
nemovitosti - Keller Williams Czech Republic (IČ 07796340) se zájmem o jeho služby. Tato společnost je součástí seskupení/sítě/franšízového modelu realitních kanceláří, jejich seznam můžete zobrazit kliknutím na tento odkaz.
Keller Williams Czech Republic (IČ 07796340) , Nemovito by Keller Williams (IČ 10826971) , Keller Williams Czech Republic (IČ 07796340) , Keller Williams - centrála (IČ 06521924)
Uživatel tyto osobní údaje poskytuje dobrovolně a bere na vědomí, že součástí služeb Správce, které Správce Uživateli poskytuje, je vyhledání všech Uživateli vyhovujících (dle parametrů - cena, typ nemovitosti, lokalita atd.) nemovitostí. Správce za tímto účelem provozuje aplikace Hlídací pes a newsletter. Tyto služby je možné z každého zaslaného emailu odhlásit. Souhlas se zpracováním osobních údajů Uživatel poskytuje Správci na dobu neurčitou s tím, že svůj udělený souhlas může Uživatel kdykoliv na drese správce info@realitymix.cz odvolat. Správce garantuje Uživateli i další práva uvedené v ustanovení §11 a §21 zákoba č. 101/200 Sb. Ve znění pozdějších předpisů.
Více informací o zpracování údajů získáte zde (realitymix.cz/zasady-ochrany-osobnich-udaju)