Prémiový pronájem – nový byt 2+kk 69,6 m² s balkonem, Světova 16, Praha 8 - Libeň
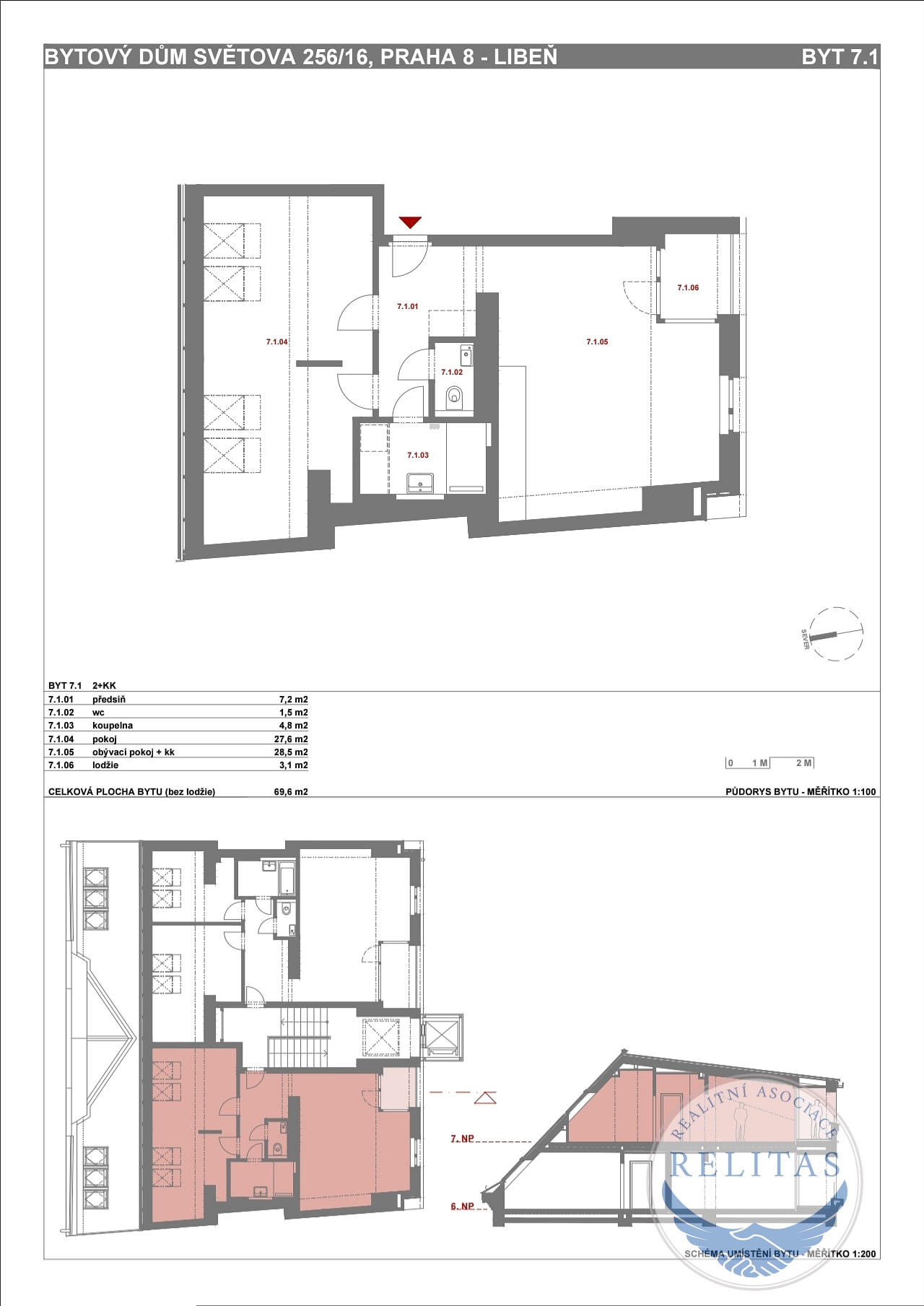
K pronájmu nabízíme zcela nový, dosud neužívaný byt 3+kk o ploše 69,6 m² s balkonem 3,1 m², situovaný v kompletně zrekonstruovaném bytovém domě ve vlastnictví majitele na adrese Světova 16.
Byt vznikl v rámci náročné rekonstrukce domu, která zahrnovala výstavbu nového výtahu, nové technické rozvody i vznik nových bytových jednotek v kvalitě současné novostavby.
Interiér a standard:
Byt je navržen s důrazem na komfort, světlo a nadčasovou estetiku. Díky jižní orientaci nabízí přirozeně světlý interiér po celý den.
Dispozice zahrnuje:
• prostorný obývací pokoj s kuchyňským koutem
• samostatnou ložnici
• elegantní koupelnu se sprchovým koutem
• samostatné WC
• vstupní chodbu
• balkon
Použité materiály a technické řešení odpovídají prémiovému standardu:
• podlahové vytápění v celém bytě
• klimatizace
• kvalitní podlahy v dekoru dřeva
• designová koupelna a sanita
• moderní kuchyňská linka se spotřebiči
• interiérové dveře se skrytými panty
• bezpečnostní vstupní dveře
Celek působí čistě, elegantně a funkčně – bez kompromisů.
Dům a lokalita:
Reprezentativní bytový dům po kompletní rekonstrukci kombinuje moderní komfort s městským charakterem Libně.
Lokalita nabízí:
• rychlé spojení do centra Prahy
• metro B Palmovka, tramvajové linky
• kompletní občanskou vybavenost
• blízkost zeleně, parků a cyklostezek
Pro koho je byt určen:
Byt je ideální pro náročného jednotlivce nebo pár, kteří hledají:
• nový byt bez kompromisů
• vysoký standard bydlení
• klid, světlo a kvalitu
• dlouhodobý pronájem
Cena:
28 000 Kč / (za měsíc)
Datum k nastěhování:
16.02.2026
Dispozice/podlahová plocha:
3+kk/73 m²
Číslo zakázky:
REALITYMIX-6382756
Podrobné informace
Dispozice bytu:3+kk
Číslo podlaží v domě:7
Počet podlaží objektu:7
Celková podlahová plocha:73 m²
Druh objektu:cihlová
Stav objektu:novostavba
Vlastnictví:osobní
Výška stropu:2 m
Balkon:3 m²
Umístění objektu:klidná část obce
Doprava:MHD
Plyn:Plynovod
Topení:Lokální - plynové
Energetická náročnost budovy:D - Méně úsporná
Energetický ukazatel podle vyhlášky:č. 78/2013 Sb.
Uživatel serveru RealityMIX.iprima.cz (dále jen „Server“) dostupného na internetové adrese (URL) https://realitymix.iprima.cz, který provozuje společnost DALTEN media s.r.o., se sídlem Na Harfě 916/9a, Praha 9, 190 00, IČO: 271 35 306 (dále jen „Správce“) jako provozovateli tohoto Serveru uděluje svůj výslovný souhlas v souladu s ustanovením § 5 zákona č. 101/2000 Sb. O ochraně osobních údajů a o změně některých zákonů, v platném znění (dále jen „zákon o ochraně osobních údajů“), se zpracováním uživatelem poskytnutých osobních údajů a dalších dat.
Uživatel poskytuje Správci osobní údaje v rozsahu: jméno, příjmení, e-mailová adresa, telefonický kontakt a další data, a to z důvodu projeveného zájmu o nemovitost, kde prostřednictvím služby Serveru Správce osloví Uživatel inzerenta uvedeného v detailu
nemovitosti - RELITAS - realitní asociace s.r.o. (IČ 08053707) se zájmem o jeho služby.
Uživatel tyto osobní údaje poskytuje dobrovolně a bere na vědomí, že součástí služeb Správce, které Správce Uživateli poskytuje, je vyhledání všech Uživateli vyhovujících (dle parametrů - cena, typ nemovitosti, lokalita atd.) nemovitostí. Správce za tímto účelem provozuje aplikace Hlídací pes a newsletter. Tyto služby je možné z každého zaslaného emailu odhlásit. Souhlas se zpracováním osobních údajů Uživatel poskytuje Správci na dobu neurčitou s tím, že svůj udělený souhlas může Uživatel kdykoliv na drese správce info@realitymix.cz odvolat. Správce garantuje Uživateli i další práva uvedené v ustanovení §11 a §21 zákoba č. 101/200 Sb. Ve znění pozdějších předpisů.
Více informací o zpracování údajů získáte zde (realitymix.cz/zasady-ochrany-osobnich-udaju)