Praha / Prosek, byt 2+KK (moderní / po rekonstrukci)
Bytová jednotka se nachází ve třetím nadzemním podlaží v zatepleném panelovém domě na adrese Ctěnická 695/13, Praha 9 / Prosek.
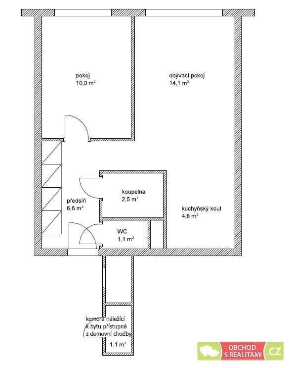
Byt 2+KK má zděné jádro a výměru 38 m2 + 1m2, komora na patře hned u vchodu do bytu, dispoziční plánek přikládáme. S bytem je možno využívat balkon na patře společný pro 3 jednotky. Byt zůstane vybaven nábytkem a spotřebiči dle přiložené fotodokumentace (tedy i myčkou nádobí či kombinovanou chladničkou, pečící troubou, indukční varnou deskou vše značky BOSCH). V koupelně k dispozici pračka. V předsíni velká vestavěná moderní skříň. Byt je vybaven bezpečnostními dveřmi zn. NEXT a je nově vymalován. Podlahovou krytinou v celém bytě je vinyl. Okna jsou orientována na jih, výhled do klidného vnitrobloku, pod okny nejezdí auta.
V domě možnost připojení k internetu Vodafone (UPC).
V blízkosti mateřská školka, dům dětí a mládeže nebo supermarket BILLA v nedalekém obchodním centru. Jen 3 minuty chůze je vstup do metra trasy C Prosek, 4 minuty zastávka BUSu směr metro Vysočanská nebo Palmovka.
Nájemné za bytovou jednotku je 16.900 Kč / měsíc, záloha na služby 3.555 Kč / měsíc+ převod elektrické energie na nájemce (cca. 1000 Kč) Jistota (kauce) 25.000 Kč, odměna realitní kanceláře jedno měsíční nájemné. Prosíme zájemce bez zvířat.
Cena:
16 900 Kč / (za měsíc)
Datum k nastěhování:
14.04.2026
Dispozice/podlahová plocha:
2+kk/38 m²
Číslo zakázky:
REALITYMIX-977388
Podrobné informace
Dispozice bytu:2+kk
Číslo podlaží v domě:3
Počet podlaží objektu:8
Celková podlahová plocha:38 m²
Druh objektu:panelová
Stav objektu:velmi dobrý
Vlastnictví:osobní
Druh bytu:V panelovém domě
Lodžie:ano
Sklep:1 m²
Vybaveno:ano
Elektřina:Elektro - 230 V
Voda:Zdroj pro celý objekt, Voda - dálkový vodovod
Uživatel serveru RealityMIX.iprima.cz (dále jen „Server“) dostupného na internetové adrese (URL) https://realitymix.iprima.cz, který provozuje společnost DALTEN media s.r.o., se sídlem Na Harfě 916/9a, Praha 9, 190 00, IČO: 271 35 306 (dále jen „Správce“) jako provozovateli tohoto Serveru uděluje svůj výslovný souhlas v souladu s ustanovením § 5 zákona č. 101/2000 Sb. O ochraně osobních údajů a o změně některých zákonů, v platném znění (dále jen „zákon o ochraně osobních údajů“), se zpracováním uživatelem poskytnutých osobních údajů a dalších dat.
Uživatel poskytuje Správci osobní údaje v rozsahu: jméno, příjmení, e-mailová adresa, telefonický kontakt a další data, a to z důvodu projeveného zájmu o nemovitost, kde prostřednictvím služby Serveru Správce osloví Uživatel inzerenta uvedeného v detailu
nemovitosti - Obchod s realitami.cz (IČ 23253932) se zájmem o jeho služby.
Uživatel tyto osobní údaje poskytuje dobrovolně a bere na vědomí, že součástí služeb Správce, které Správce Uživateli poskytuje, je vyhledání všech Uživateli vyhovujících (dle parametrů - cena, typ nemovitosti, lokalita atd.) nemovitostí. Správce za tímto účelem provozuje aplikace Hlídací pes a newsletter. Tyto služby je možné z každého zaslaného emailu odhlásit. Souhlas se zpracováním osobních údajů Uživatel poskytuje Správci na dobu neurčitou s tím, že svůj udělený souhlas může Uživatel kdykoliv na drese správce info@realitymix.cz odvolat. Správce garantuje Uživateli i další práva uvedené v ustanovení §11 a §21 zákoba č. 101/200 Sb. Ve znění pozdějších předpisů.
Více informací o zpracování údajů získáte zde (realitymix.cz/zasady-ochrany-osobnich-udaju)