Garsoniéra 32m2 se sklepem a terasou 27m2, Praha 5 - Stodůlky
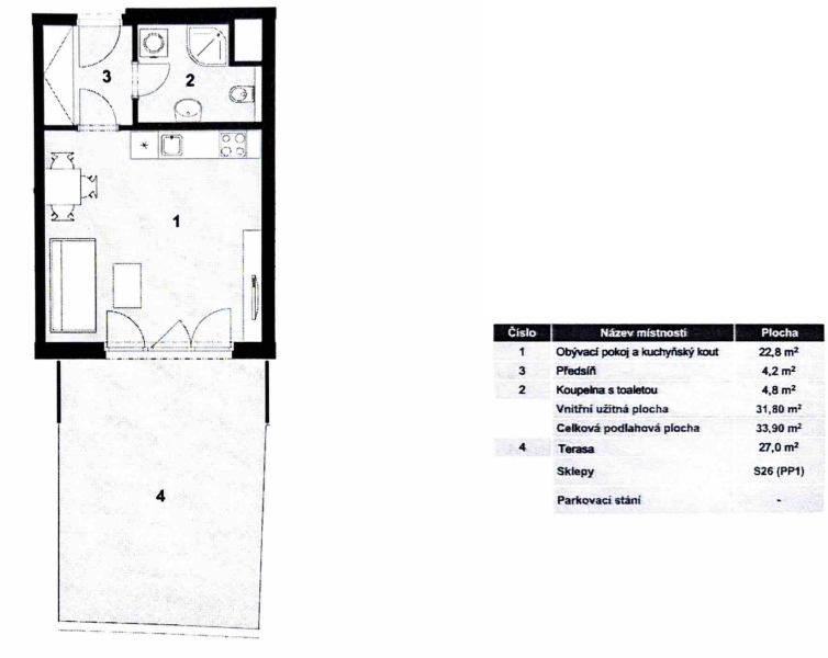
Exkluzivně doporučujeme k pronájmu komfortní garsonku s terasou v moderní novostavbě - Praha 5, Stodůlky, ul. Toufarova. Tato jednotka o výměře 31,8m2 s prostornou terasou 27m2 a vlastním sklepem 2m2 se nachází v atraktivní lokalitě Prahy 5 - Stodůlky a byla dokončena v roce 2018.
Byt je plně vybavený a připravený k okamžitému nastěhování. Součástí vybavení je pohodlná postel, kuchyňská linka s elektrospotřebiči, jídelní stůl se židlemi, komoda, pračka se sušičkou a prostorná šatní skříň v chodbě. V interiéru jsou plovoucí laminátové podlahy v kombinaci s dlažbou, která působí moderně a prakticky. Garsonka nabízí východní orientaci oken, díky čemuž je byt příjemně prosluněný během ranních hodin.
Lokalita Stodůlky patří k jedněm z nejvyhledávanějších rezidenčních lokalit v západní části Prahy díky kompletní občanské vybavenosti přímo v okolí. V docházkové vzdálenosti najdete školky, základní i střední školy, zdravotnická zařízení, obchody, služby i fitness centra. V okolí se nachází také několik restaurací, kaváren a supermarketů pro každodenní nákupy. Nedaleko jsou i moderní nákupní možnosti jako obchodní centra s širokou nabídkou služeb a zboží.
Skvělá dopravní dostupnost je jedním z hlavních benefitů této adresy. Lokalita je výborně napojena na MHD:
- Metro linky B - několik stanic v docházkové vzdálenosti (např. Hůrka, Lužiny, Luka či Stodůlky), které vás pohodlně dopraví do centra města během cca 20-25 minut.
- Autobusy a tramvaje PID - pravidelně dostupné linky přímo v okolí.
- Dobrá dostupnost autem s napojením na městský okruh a hlavní tahy.
- Letiště Václava Havla je dosažitelné během několika minut.
Lokalita s vysokým komfortem bydlení
Stodůlky nabízejí kombinaci klidného městského bydlení s možností rychlého přesunu do pulsujícího centra Prahy. V okolí se nachází i rozsáhlé zelené plochy a parky vhodné pro relaxaci, sport i procházky.
Tento byt je ideální pro jednotlivce či páry.
Cena:
18 500 Kč / (za měsíc)
Poznámka:
+ provize RK 22.385,- vč. DPH, + vratná kauce 37.000, + poplatky cca 3276,-Kč, nájemné se hradí předem
Datum k nastěhování:
01.01.2026
Dispozice/podlahová plocha:
Garsoniéra/34 m²
Číslo zakázky:
REALITYMIX-232923
Podrobné informace
Dispozice bytu:Garsoniéra
Číslo podlaží v domě:1
Počet podlaží objektu:5
Celková podlahová plocha:34 m²
Druh objektu:cihlová
Stav objektu:novostavba
Stáří objektu:2018
Vlastnictví:osobní
Sklep:2 m²
Terasa:27 m²
Vybaveno:ano
Doprava:vlak, dálnice, silnice, MHD, autobus
Elektřina:Elektro - 230 V
Voda:Voda - dálkový vodovod
Telekomunikace:Internet
Topení:Ústřední - dálkové
Odpad:Kanalizace
Ostatní rozvody:Kabelová televize, Ostatní rozvody
Uživatel serveru RealityMIX.iprima.cz (dále jen „Server“) dostupného na internetové adrese (URL) https://realitymix.iprima.cz, který provozuje společnost DALTEN media s.r.o., se sídlem Na Harfě 916/9a, Praha 9, 190 00, IČO: 271 35 306 (dále jen „Správce“) jako provozovateli tohoto Serveru uděluje svůj výslovný souhlas v souladu s ustanovením § 5 zákona č. 101/2000 Sb. O ochraně osobních údajů a o změně některých zákonů, v platném znění (dále jen „zákon o ochraně osobních údajů“), se zpracováním uživatelem poskytnutých osobních údajů a dalších dat.
Uživatel poskytuje Správci osobní údaje v rozsahu: jméno, příjmení, e-mailová adresa, telefonický kontakt a další data, a to z důvodu projeveného zájmu o nemovitost, kde prostřednictvím služby Serveru Správce osloví Uživatel inzerenta uvedeného v detailu
nemovitosti - Bidli reality, a.s. (IČ 06790763) se zájmem o jeho služby. Tato společnost je součástí seskupení/sítě/franšízového modelu realitních kanceláří, jejich seznam můžete zobrazit kliknutím na tento odkaz.
Hypocentrum modré pyramidy - Praha (IČ ) , Hypocentrum modré pyramidy - Brno (IČ ) , Hypocentrum Modré pyramidy - Hradec Králové (IČ ) , Hypocentrum Modré pyramidy - České Budějovice (IČ ) , Hypocentrum Modré pyramidy - Pardubice (IČ ) , Hypocentrum Modré pyramidy - Plzeň (IČ ) , Hypocentrum Modré pyramidy - Ústí nad Labem (IČ ) , Hypocentrum Modré pyramidy - Ostrava (IČ ) , Hypocentrum Modré pyramidy - Olomouc (IČ ) , Bidli reality, a.s. (IČ 06790763)
Uživatel tyto osobní údaje poskytuje dobrovolně a bere na vědomí, že součástí služeb Správce, které Správce Uživateli poskytuje, je vyhledání všech Uživateli vyhovujících (dle parametrů - cena, typ nemovitosti, lokalita atd.) nemovitostí. Správce za tímto účelem provozuje aplikace Hlídací pes a newsletter. Tyto služby je možné z každého zaslaného emailu odhlásit. Souhlas se zpracováním osobních údajů Uživatel poskytuje Správci na dobu neurčitou s tím, že svůj udělený souhlas může Uživatel kdykoliv na drese správce info@realitymix.cz odvolat. Správce garantuje Uživateli i další práva uvedené v ustanovení §11 a §21 zákoba č. 101/200 Sb. Ve znění pozdějších předpisů.
Více informací o zpracování údajů získáte zde (realitymix.cz/zasady-ochrany-osobnich-udaju)