V Pražských Řepích se vůbec nežije špatně! Zvláště, když bydlíte na okraji tohoto poměrně dobře vybaveného sídliště, v bytě s pěknými výhledy.
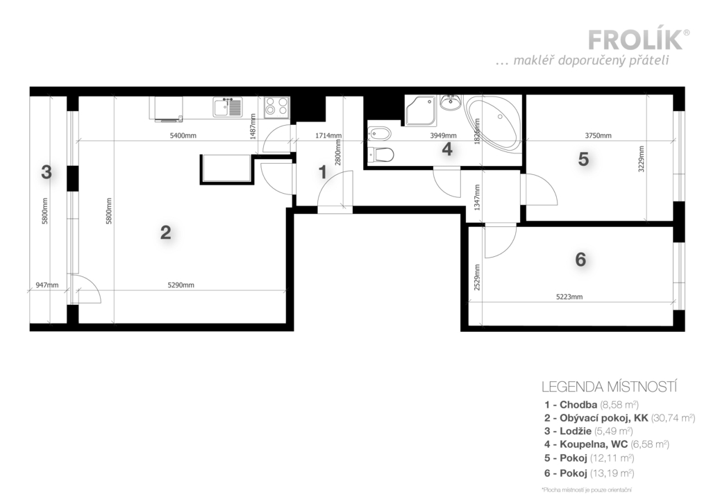
Právě takový byt na Vás čeká ve 3. patře zatepleného panelového domu s výtahem, v ulici Nevanova. Částečně zrekonstruované 3+kk o výměře cca 71 m2, s lodžií (cca 6 m2) a sklepem (cca 2 m2).
Byt má obývací pokoj s částečně otevřeným kuchyňským koutem a lodžií (obojí orientované na jih), dva pokoje (orientované na sever), centrální chodbu, velkou koupelnu s vanou, sprchou, bidetem a WC. V kuchyni bude lednice s mrazákem, myčka, el. trouba, indukční varná deska, digestoř, mikrovlnka. V jednom z pokojů zůstávají dvě šatní skříně. Vstupní dveře do bytu budou bezpečnostní.
Dům má centrální dodávku topení a teplé vody (vše s měřením), plastová okna, je zateplený. Byt je světlý, s pěknými výhledy. Sídliště Řepy nabízí slušnou občanskou vybavenost. Hned za domem jsou dvě mateřské školy, další je o kousek dál, pár kroků od domu je dětské hřiště, nedaleko pak obchodní dům. na druhé straně sídliště je sportovní centrum (bazén, wellness, tenis, víceúčelová krytá hala). Každý si tu prostě najde své.
Byt je ihned volný, připravený k dlouhodobému pronájmu.
Kromě nájemného budete platit zálohy na služby (vodné, stočné, teplá voda, topení, úklid a osvětlení domu, odpad, výtah) v částce 5.000 Kč/měs. (pro 4 osoby) + elektřinu v bytě 1.500 Kč/měs.. Majitelé Vám vše vyúčtují dle skutečných spotřeb. Nájemné + služby + elektřina se platí měsíčně předem, jistota je 2x nájemné, provize je 1x nájemné.
Uživatel serveru RealityMIX.iprima.cz (dále jen „Server“) dostupného na internetové adrese (URL) https://realitymix.iprima.cz, který provozuje společnost DALTEN media s.r.o., se sídlem Na Harfě 916/9a, Praha 9, 190 00, IČO: 271 35 306 (dále jen „Správce“) jako provozovateli tohoto Serveru uděluje svůj výslovný souhlas v souladu s ustanovením § 5 zákona č. 101/2000 Sb. O ochraně osobních údajů a o změně některých zákonů, v platném znění (dále jen „zákon o ochraně osobních údajů“), se zpracováním uživatelem poskytnutých osobních údajů a dalších dat.
Uživatel poskytuje Správci osobní údaje v rozsahu: jméno, příjmení, e-mailová adresa, telefonický kontakt a další data, a to z důvodu projeveného zájmu o nemovitost, kde prostřednictvím služby Serveru Správce osloví Uživatel inzerenta uvedeného v detailu
nemovitosti - Reality FROLÍK | privátní realitní makléř (IČ 04557191) se zájmem o jeho služby.
Uživatel tyto osobní údaje poskytuje dobrovolně a bere na vědomí, že součástí služeb Správce, které Správce Uživateli poskytuje, je vyhledání všech Uživateli vyhovujících (dle parametrů - cena, typ nemovitosti, lokalita atd.) nemovitostí. Správce za tímto účelem provozuje aplikace Hlídací pes a newsletter. Tyto služby je možné z každého zaslaného emailu odhlásit. Souhlas se zpracováním osobních údajů Uživatel poskytuje Správci na dobu neurčitou s tím, že svůj udělený souhlas může Uživatel kdykoliv na drese správce info@realitymix.cz odvolat. Správce garantuje Uživateli i další práva uvedené v ustanovení §11 a §21 zákoba č. 101/200 Sb. Ve znění pozdějších předpisů.
Více informací o zpracování údajů získáte zde (realitymix.cz/zasady-ochrany-osobnich-udaju)