Byt k pronájmu 3+kk, Kočova, Čimice, 32900 Kč/měs, 86 m2
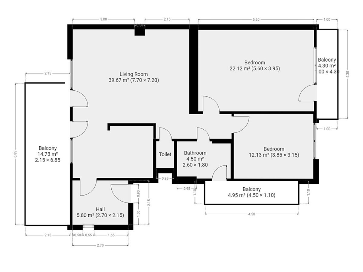
K dlouhodobému pronájmu nabízíme částečně zařízený byt dispozice 3+kk o rozloze 86 m2 po kompletní rekonstrukci ve 2. patře řadového domu na pozemku se zahradou v klidné rezidenční lokalitě pražských Čimic. Bytu vévodí rozlehlý obývací pokoj výměry téměř 40 m2 s moderní kuchyní a přístupem na terasu, na další dvě terasy se pak vchází z ložnice a koupelny. Vytápění bytu a ohřev vody je realizován plynovým kotlem, všechny místnosti jsou vybaveny klimatizací. Kromě zahrady je k dispozici parkovací stání na oploceném pozemku domu. Součástí měsíčních záloh jsou již energie a k dispozici je i vysokorychlostní internet.
K dispozici solidním zájemcům hledajícím dlouhodobé kvalitní bydlení k okamžitému nastěhování.
Individuální prohlídky možné po domluvě kdykoliv včetně pozdních večerních hodin a víkendů.
Byt pronajímá Ideální nájemce - služba, se kterou budete bydlet bezstarostně a za férových podmínek. Když se něco přihodí, k dispozici jsou správci, kteří s Vámi vše vyřeší. Pomůžeme s veškerou administrativou, s nastavením plateb a zajistíme Vám speciální pojištění. Pojďte bydlet s námi!
Cena:
32 900 Kč / (za měsíc)
Poznámka:
vratná jistota, zúčtovatelné zálohy 6.551,- Kč, poplatek za podnájem
Uživatel serveru RealityMIX.iprima.cz (dále jen „Server“) dostupného na internetové adrese (URL) https://realitymix.iprima.cz, který provozuje společnost DALTEN media s.r.o., se sídlem Na Harfě 916/9a, Praha 9, 190 00, IČO: 271 35 306 (dále jen „Správce“) jako provozovateli tohoto Serveru uděluje svůj výslovný souhlas v souladu s ustanovením § 5 zákona č. 101/2000 Sb. O ochraně osobních údajů a o změně některých zákonů, v platném znění (dále jen „zákon o ochraně osobních údajů“), se zpracováním uživatelem poskytnutých osobních údajů a dalších dat.
Uživatel poskytuje Správci osobní údaje v rozsahu: jméno, příjmení, e-mailová adresa, telefonický kontakt a další data, a to z důvodu projeveného zájmu o nemovitost, kde prostřednictvím služby Serveru Správce osloví Uživatel inzerenta uvedeného v detailu
nemovitosti - Ideální nájemce (IČ 29300631) se zájmem o jeho služby.
Uživatel tyto osobní údaje poskytuje dobrovolně a bere na vědomí, že součástí služeb Správce, které Správce Uživateli poskytuje, je vyhledání všech Uživateli vyhovujících (dle parametrů - cena, typ nemovitosti, lokalita atd.) nemovitostí. Správce za tímto účelem provozuje aplikace Hlídací pes a newsletter. Tyto služby je možné z každého zaslaného emailu odhlásit. Souhlas se zpracováním osobních údajů Uživatel poskytuje Správci na dobu neurčitou s tím, že svůj udělený souhlas může Uživatel kdykoliv na drese správce info@realitymix.cz odvolat. Správce garantuje Uživateli i další práva uvedené v ustanovení §11 a §21 zákoba č. 101/200 Sb. Ve znění pozdějších předpisů.
Více informací o zpracování údajů získáte zde (realitymix.cz/zasady-ochrany-osobnich-udaju)