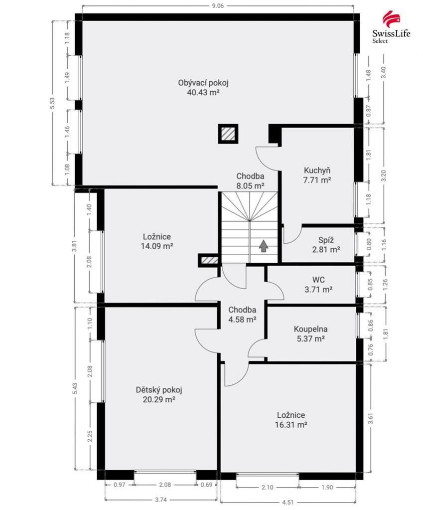
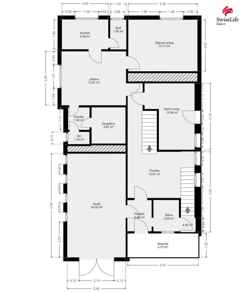
Hledáte li ke koupí prostorný rodinný dům o užitné ploše cca 230 m, situovaný v klidné vilové čtvrti a vyhledávané lokalitě na ulici Květinová v Opavě. Již nehledejte, jeden takový tady pro Vás máme.
Nemovitost je řešena jako dům se dvěma samostatnými bytovými jednotkami, což otevírá široké možnosti využití:
komfortní dvougenerační bydlení
kombinace vlastního bydlení a podnikání (kancelář, služby)
případně investiční záměr pronájem jedné části, ze které můžete splácet část hypotéky.
Dispozice domu nabízí dostatek prostoru pro soukromí i společné chvíle. Každá jednotka může fungovat samostatně, což výrazně zvyšuje flexibilitu využití.
Dům působí jako místo, kde každý člen rodiny může psát svůj vlastní příběh a přitom zůstat součástí jednoho celku. Vlastní garáž s plochou 24 m2, kam dáte i velké auto a prostorný sklep Vám nabídne 46 m2 úložných prostor, včetně technického zázemí.
Opava patří mezi stabilní a rozvíjející se města s výborným zázemím a kompletní občanskou vybaveností. Má přibližně 55 tisíc obyvatel a je historickým centrem českého Slezska.
Občanská vybavenost:
mateřské, základní i střední školy, včetně Slezská univerzita v Opavě
nemocnice, lékaři, zdravotnická zařízení
široká síť obchodů, služeb, restaurací
sportoviště, koupaliště, stadiony
banky, pošty, kompletní služby pro každodenní život
Opava nabízí skutečně kompletní infrastrukturu od vzdělání až po pracovní příležitosti a služby .
Život zde není jen o bydlení, ale i o zážitcích:
historické centrum s dominantou Hláska (Opava)
významná památka Konkatedrála Nanebevzetí Panny Marie (Opava)
oblíbená rekreační lokalita Stříbrné jezero
blízkost přírody Nízký Jeseník, cyklostezky, výlety
Město nabízí i kulturní vyžití divadla, kina, galerie nebo festival Bezručova Opava, který každoročně přitahuje návštěvníky z celé republiky.
Tato nemovitost je ideální volbou pro ty, kteří:
hledají variabilní bydlení s potenciálem.
chtějí spojit rodinný život a podnikání.
uvažují investičně.
ocení klidnou lokalitu s plnou vybaveností města.
Řekli jste si Ano, to je ono a nevíte jak to bude s financováním? I tady pro Vás mám řešení skrze vlastní finanční konzultanty.
Swiss Life Select a.s. Vám nabízí možnost vypracování nezávislého porovnání a tvorby hypotéky na míru dle Vašich požadavků a možností. Díky exkluzivním podmínkám u finančních institucí, perfektní znalosti trhu a kvalitnímu klientskému servisu se můžete spolehnout, že Vám doporučíme nejlepší financování Vaší nemovitosti a pomůžu vyřídit veškeré náležitosti naprosto bezplatně.
V případě více zájemců o nemovitost, si majitel vyhrazuje právo prodat nemovitost zájemci s nejvyšší nabídkou.
V tomto článku shrneme nejdůležitější věci, které byste si měli promyslet, pokud se chystáte prodat svou nemovitost a chcete, abyste s kupujícím nemusel následně řešit vzniklé problémy.
Jako prodávající nesete rizika spojená nejen se samotným obchodem, ale i se stavem nemovitosti v době prodeje a pro minimalizaci rizik, je dobré se zamyslet nad uvedenými oblastmi.
Realitní makléř má své nezastupitelné místo v realitním obchodu. Realitním makléřem nemyslím nevzdělané jelito, které absolvovalo dvoudenní školení a ví, jak se nahraje inzerát na inzertní portál.
Realitním makléřem, který se Vám skutečně vyplatí, je zkušený profesionál, který je schopen Vám dobře poradit jak prodat za co nejvíc a s nejmenším rizikem a hlavně je Vás schopen obratně provést celým realitním obchodem.
Uživatel serveru RealityMIX.iprima.cz (dále jen „Server“) dostupného na internetové adrese (URL) https://realitymix.iprima.cz, který provozuje společnost DALTEN media s.r.o., se sídlem Na Harfě 916/9a, Praha 9, 190 00, IČO: 271 35 306 (dále jen „Správce“) jako provozovateli tohoto Serveru uděluje svůj výslovný souhlas v souladu s ustanovením § 5 zákona č. 101/2000 Sb. O ochraně osobních údajů a o změně některých zákonů, v platném znění (dále jen „zákon o ochraně osobních údajů“), se zpracováním uživatelem poskytnutých osobních údajů a dalších dat.
Uživatel poskytuje Správci osobní údaje v rozsahu: jméno, příjmení, e-mailová adresa, telefonický kontakt a další data, a to z důvodu projeveného zájmu o nemovitost, kde prostřednictvím služby Serveru Správce osloví Uživatel inzerenta uvedeného v detailu
nemovitosti - Swiss Life Select Reality (IČ 24260444) se zájmem o jeho služby. Tato společnost je součástí seskupení/sítě/franšízového modelu realitních kanceláří, jejich seznam můžete zobrazit kliknutím na tento odkaz.
Fincentrum a.s. (IČ 24260444) , Swiss Life Select Reality (IČ 24260444)
Uživatel tyto osobní údaje poskytuje dobrovolně a bere na vědomí, že součástí služeb Správce, které Správce Uživateli poskytuje, je vyhledání všech Uživateli vyhovujících (dle parametrů - cena, typ nemovitosti, lokalita atd.) nemovitostí. Správce za tímto účelem provozuje aplikace Hlídací pes a newsletter. Tyto služby je možné z každého zaslaného emailu odhlásit. Souhlas se zpracováním osobních údajů Uživatel poskytuje Správci na dobu neurčitou s tím, že svůj udělený souhlas může Uživatel kdykoliv na drese správce info@realitymix.cz odvolat. Správce garantuje Uživateli i další práva uvedené v ustanovení §11 a §21 zákoba č. 101/200 Sb. Ve znění pozdějších předpisů.
Více informací o zpracování údajů získáte zde (realitymix.cz/zasady-ochrany-osobnich-udaju)