Nabízíme k prodeji nadstandardně veliký rodinný dům o 3 bytových jednotkách v obci Ohrobec, okr. Praha - západ.
Dům byl kolaudován v roce 2009. Celková obytná plocha činí cca. 375 m (z toho balkóny 3+18 m2 a terasa 36 m2) a užitná plocha činí 411 m včetně sklepu a zádveří. Pozemek má celkovou výměru 1.132 m.
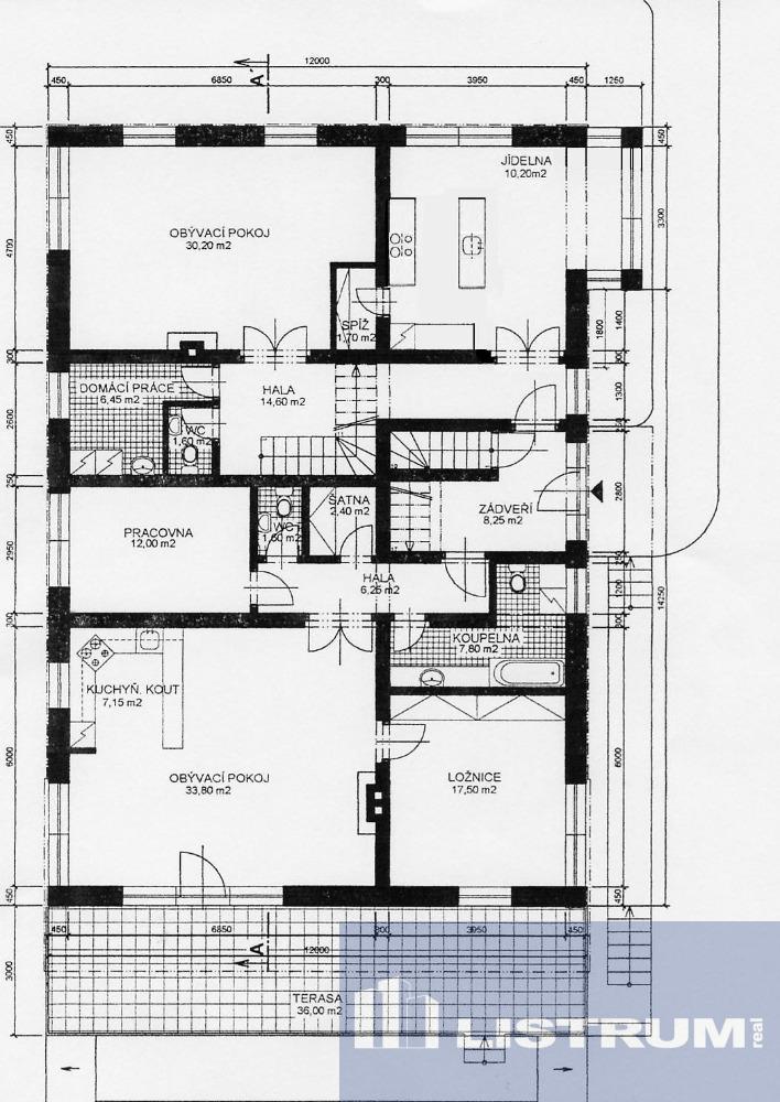
Dům je dvoupodlažní, částečně podsklepený (pod terasou), tvořený třemi byty se společným hlavním vchodem, přičemž každý byt má ze společného zádveří za hlavním vchodem vlastní vstup.
Byt A (výměra bytu cca. 125 m včetně terasy 36 m) je umístěn v 1. NP a je tvořen obývacím pokojem (s krbem) propojeným s kuchyní a jídelnou a vstupem na terasu, ložnicí, pracovnou, šatnou, koupelnou s WC, samostatným WC, zádveřím a chodbou.
Byt B (výměra bytu cca. 126 m včetně balkónu 3 m) je mezonetový a je umístěn částečně v 1. NP (65 m) a je tvořen kuchyní a jídelnou a spíží, obývacím pokojem (příprava na krb), nedokončenou koupelnou, samostatným WC a chodbou a druhá část bytu v 2. NP (58 m včetně balkónu 3 m) je tvořena 3 ložnicemi (jedna z nich s balkónem) a koupelnou s WC, přičemž tato část bytu není stavebně dokončena.
Byt C (výměra bytu cca. 125 m včetně balkónu 18 m) je umístěn v 2. NP a je tvořen obývacím pokojem propojeným s kuchyní a jídelnou a vstupem na balkón, 3 x ložnicí (jedna z nich se vstupem na balkón), komorou, koupelnou s WC, samostatným WC s bidetem a chodbou.
Každý byt má vlastní měření elektrické energie.
Dům je cihlový (Porotherm 48), okna plastová s izolačním 2-sklem, střecha z pálené tašky.
Vytápění domu je řešeno tepelným čerpadlem napojeným na podlahové topení. Ohřev TUV tepelným čerpadlem do zásobníku 400 l.
Dům je napojen na elektřinu, vodovod a kanalizaci.
Na zahradě instalován polozapuštěný bazén s technologií, zapuštěná nádrž na dešťovou vodu 9 m3 kůlna s dřevníkem a voliérou.
Za vjezdovou bránou na DO je komfortní stání pro 6 aut.
Dům je umístěn ve velmi lukrativní lokalitě jižně od Prahy, cca. 2 km od Vltavy, na okraji Přírodního parku Střed Čech.
Vynikající dopravní dostupnost na dálnici D0 (6 km), po prodloužení trasy D metra to bude na metro 7 km. MHD přímo u domu (BUS 331 metro Opatov).
V obci je školka a základní škola, potraviny a restaurace. Vynikající a žádaná lokalita pro bydlení.
K dispozici po dohodě.
V tomto článku shrneme nejdůležitější věci, které byste si měli promyslet, pokud se chystáte prodat svou nemovitost a chcete, abyste s kupujícím nemusel následně řešit vzniklé problémy.
Jako prodávající nesete rizika spojená nejen se samotným obchodem, ale i se stavem nemovitosti v době prodeje a pro minimalizaci rizik, je dobré se zamyslet nad uvedenými oblastmi.
Realitní makléř má své nezastupitelné místo v realitním obchodu. Realitním makléřem nemyslím nevzdělané jelito, které absolvovalo dvoudenní školení a ví, jak se nahraje inzerát na inzertní portál.
Realitním makléřem, který se Vám skutečně vyplatí, je zkušený profesionál, který je schopen Vám dobře poradit jak prodat za co nejvíc a s nejmenším rizikem a hlavně je Vás schopen obratně provést celým realitním obchodem.
Uživatel serveru RealityMIX.iprima.cz (dále jen „Server“) dostupného na internetové adrese (URL) https://realitymix.iprima.cz, který provozuje společnost DALTEN media s.r.o., se sídlem Na Harfě 916/9a, Praha 9, 190 00, IČO: 271 35 306 (dále jen „Správce“) jako provozovateli tohoto Serveru uděluje svůj výslovný souhlas v souladu s ustanovením § 5 zákona č. 101/2000 Sb. O ochraně osobních údajů a o změně některých zákonů, v platném znění (dále jen „zákon o ochraně osobních údajů“), se zpracováním uživatelem poskytnutých osobních údajů a dalších dat.
Uživatel poskytuje Správci osobní údaje v rozsahu: jméno, příjmení, e-mailová adresa, telefonický kontakt a další data, a to z důvodu projeveného zájmu o nemovitost, kde prostřednictvím služby Serveru Správce osloví Uživatel inzerenta uvedeného v detailu
nemovitosti - Listrum real s.r.o. (IČ 27812332) se zájmem o jeho služby.
Uživatel tyto osobní údaje poskytuje dobrovolně a bere na vědomí, že součástí služeb Správce, které Správce Uživateli poskytuje, je vyhledání všech Uživateli vyhovujících (dle parametrů - cena, typ nemovitosti, lokalita atd.) nemovitostí. Správce za tímto účelem provozuje aplikace Hlídací pes a newsletter. Tyto služby je možné z každého zaslaného emailu odhlásit. Souhlas se zpracováním osobních údajů Uživatel poskytuje Správci na dobu neurčitou s tím, že svůj udělený souhlas může Uživatel kdykoliv na drese správce info@realitymix.cz odvolat. Správce garantuje Uživateli i další práva uvedené v ustanovení §11 a §21 zákoba č. 101/200 Sb. Ve znění pozdějších předpisů.
Více informací o zpracování údajů získáte zde (realitymix.cz/zasady-ochrany-osobnich-udaju)