Prodej bytu 3+kk s garážovým stáním, ul. Inspektorská, Nymburk
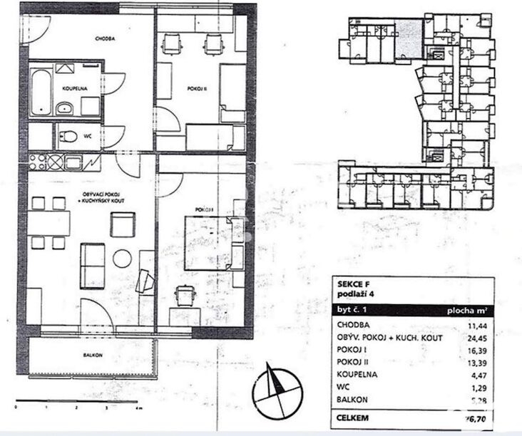
Dovolte mi nabídnout Vám ke koupi prostorný byt 3+kk s užitnou plochou 76,7m2 včetně balkonu a s vlastním podzemním garážovým stáním. Nachází se v cihlovém bytovém domě z roku 2008 a v jeho okolí naleznete hlavní vlakové nádraží s přímými spoji směr Praha, Hradec Králové, Kolín, Jičín a Mladá Boleslav, a také Střední odbornou školu a učiliště.
Díky dispozici bytu a přítomnosti výtahu bych bydlení doporučil všem bez věkového omezení s maximálním počtem 4 lidí včetně dětí. Bonusem je garážové stání a vlakové nádraží. Díky tomu je ideální pro ty, kteří jezdí pravidelně pracovat do Prahy nebo do jiného výše zmíněného města.
Byt se nachází ve 4. nadzemním podlaží (3. patro), kde Vás nebude rušit ruch ze společných prostor. Přivítá vás prostorná chodba do tvaru L a z ní se dostanete do obývacího pokoje s kuchyní, do prvního pokoje, do koupelny s vanou a umyvadlem a na toaletu. Z obývacího pokoje se dostanete do druhého pokoje a také na balkón. Okna směřují na JV a SZ. Dům je napojen na elektřinu, vodovod a kanalizaci. Teplá voda a topení je zajištěna dálkovým rozvodem. Tedy maximální pohodlí bez námahy. Dům není starý ani 20 let, tudíž v bytě nebyla nutná žádná větší rekonstrukce. Vnitřní rozvody domu jsou ve velmi dobrém stavu a opravována byla pouze střecha.
Měsíční poplatky činí 6 453 Kč bez elektřiny. Za garážové stání zaplatíte měsíčně 1550 Kč.
K bytu náleží i kóje pro uložení méně potřebných věcí.
Nymburk jako okresní město nabídne veškerou občanskou vybavenost. V centru města se pravidelně po celý rok pořádá spoustu akcí pro veřejnost a velmi romantické je například populární letní kino pod hradbami. Cyklostezka u Labe je skvělým místem pro sport i relaxaci například u Staré rybárny.
Pokud vás nabídka zaujala rád vám zprostředkuji prohlídku a v případě financování hypotékou poradím jak na to.
Budu se těšit.
Uvedené metráže jsou obdržené od SVJ.
V tomto článku shrneme nejdůležitější věci, které byste si měli promyslet, pokud se chystáte prodat svou nemovitost a chcete, abyste s kupujícím nemusel následně řešit vzniklé problémy.
Jako prodávající nesete rizika spojená nejen se samotným obchodem, ale i se stavem nemovitosti v době prodeje a pro minimalizaci rizik, je dobré se zamyslet nad uvedenými oblastmi.
Realitní makléř má své nezastupitelné místo v realitním obchodu. Realitním makléřem nemyslím nevzdělané jelito, které absolvovalo dvoudenní školení a ví, jak se nahraje inzerát na inzertní portál.
Realitním makléřem, který se Vám skutečně vyplatí, je zkušený profesionál, který je schopen Vám dobře poradit jak prodat za co nejvíc a s nejmenším rizikem a hlavně je Vás schopen obratně provést celým realitním obchodem.
Uživatel serveru RealityMIX.iprima.cz (dále jen „Server“) dostupného na internetové adrese (URL) https://realitymix.iprima.cz, který provozuje společnost DALTEN media s.r.o., se sídlem Na Harfě 916/9a, Praha 9, 190 00, IČO: 271 35 306 (dále jen „Správce“) jako provozovateli tohoto Serveru uděluje svůj výslovný souhlas v souladu s ustanovením § 5 zákona č. 101/2000 Sb. O ochraně osobních údajů a o změně některých zákonů, v platném znění (dále jen „zákon o ochraně osobních údajů“), se zpracováním uživatelem poskytnutých osobních údajů a dalších dat.
Uživatel poskytuje Správci osobní údaje v rozsahu: jméno, příjmení, e-mailová adresa, telefonický kontakt a další data, a to z důvodu projeveného zájmu o nemovitost, kde prostřednictvím služby Serveru Správce osloví Uživatel inzerenta uvedeného v detailu
nemovitosti - eDO reality, s.r.o. (IČ 07268602) se zájmem o jeho služby.
Uživatel tyto osobní údaje poskytuje dobrovolně a bere na vědomí, že součástí služeb Správce, které Správce Uživateli poskytuje, je vyhledání všech Uživateli vyhovujících (dle parametrů - cena, typ nemovitosti, lokalita atd.) nemovitostí. Správce za tímto účelem provozuje aplikace Hlídací pes a newsletter. Tyto služby je možné z každého zaslaného emailu odhlásit. Souhlas se zpracováním osobních údajů Uživatel poskytuje Správci na dobu neurčitou s tím, že svůj udělený souhlas může Uživatel kdykoliv na drese správce info@realitymix.cz odvolat. Správce garantuje Uživateli i další práva uvedené v ustanovení §11 a §21 zákoba č. 101/200 Sb. Ve znění pozdějších předpisů.
Více informací o zpracování údajů získáte zde (realitymix.cz/zasady-ochrany-osobnich-udaju)