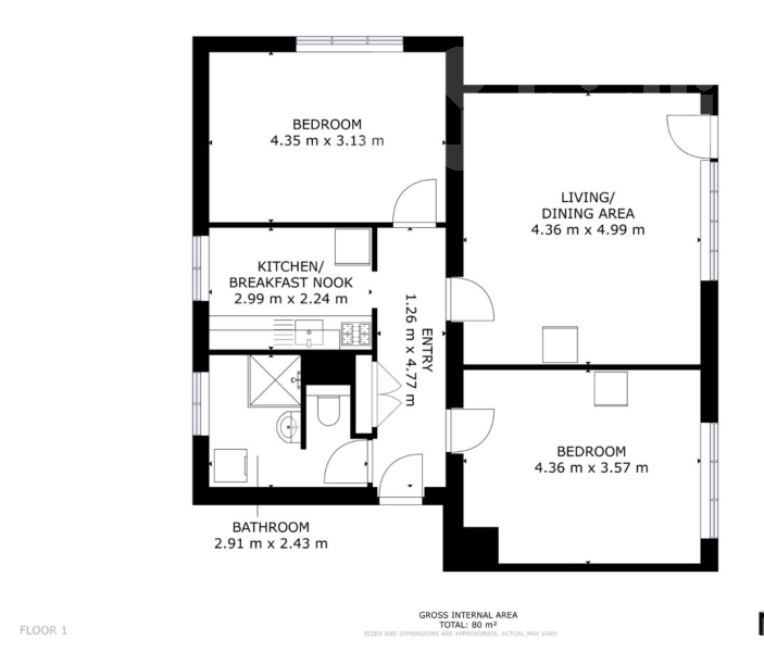
Prodej bytu 3+1/L, 75 m2, zahrada, parkování, Nučice, okr. Praha - západ
Upozornění: Tato nabídka je rezervována konkrétním zájemcem a v rezervační lhůtě není k dispozici! Exkluzivně nabízím k prodeji byt 3+1/L o výměře 75 m2 v osobním vlastnictví (s družstevním financováním), v 1. NP bytového domu (pouze 4 byty) v klidné lokalitě obce Nučice, okr. Praha - západ. Byt je po kompletní rekonstrukci (zděné jádro, nové podlahy, kuchyňská linka se spotřebiči, plastová okna, plynový kotel, elektrický boiler.). Byt má tři neprůchozí pokoje, dvě ložnice, obývací pokoj se vstupem na lodžii a kuchyni s oknem, koupelnu se sprchovým koutem a oddělenou toaletou. Na podlahách v pokojích, kuchyni a chodbě je vinyl, v koupelně je dlažba. V kuchyni je kuchyňská linka se spotřebiči (myčka, elektrický sporák s troubou, lednice s mrazákem, MVT, digestoř). Vytápění bytu je plynovým kotlem umístěným v bytě a ohřev vody zajišťuje elektrický bojler v suterénu domu. Byt je nabízen včetně vybavení. K bytu náleží sklepní kóje v suterénu domu a další místnosti, které je možno využít pro uložení věcí. Dále je k dispozici kolárna a společná sušárna se sušičkou a prostorem na pračku. Okna jsou plastová. K bytu náleží pozemek (zahrada) 190 m2. Byt se nachází ve velmi žádané a klidné lokalitě s veškerou občanskou vybaveností - v těsné blízkosti škola, školka (cca 10 minut pěšky), obchody, pošta, restaurace. Před domem jsou dětská hřiště, sportoviště, workoutové hřiště (cca 12 minut pěšky), výhled z oken je na zeleň mezi domy. Zastávka BUS směr Praha - Zličín je před domem (2 min chůze), vlak 3 minuty autem, Zličín - metro 11 minut autem. Byt je vhodný k bydlení i jako investice. Pokud hledáte bydlení v dosahu přírody a zároveň v blízkosti Prahy, tato nemovitost splňuje oboje. Doporučuji. Byt je možno financovat úvěrem, který vám rádi zařídíme. V případě většího počtu zájemců bude nemovitost nabízena formou aukce. Pokud Vás tato nabídka zaujala, pro více informací a domluvení prohlídky neváhejte kontaktovat makléřku.
V tomto článku shrneme nejdůležitější věci, které byste si měli promyslet, pokud se chystáte prodat svou nemovitost a chcete, abyste s kupujícím nemusel následně řešit vzniklé problémy.
Jako prodávající nesete rizika spojená nejen se samotným obchodem, ale i se stavem nemovitosti v době prodeje a pro minimalizaci rizik, je dobré se zamyslet nad uvedenými oblastmi.
Realitní makléř má své nezastupitelné místo v realitním obchodu. Realitním makléřem nemyslím nevzdělané jelito, které absolvovalo dvoudenní školení a ví, jak se nahraje inzerát na inzertní portál.
Realitním makléřem, který se Vám skutečně vyplatí, je zkušený profesionál, který je schopen Vám dobře poradit jak prodat za co nejvíc a s nejmenším rizikem a hlavně je Vás schopen obratně provést celým realitním obchodem.
Uživatel serveru RealityMIX.iprima.cz (dále jen „Server“) dostupného na internetové adrese (URL) https://realitymix.iprima.cz, který provozuje společnost DALTEN media s.r.o., se sídlem Na Harfě 916/9a, Praha 9, 190 00, IČO: 271 35 306 (dále jen „Správce“) jako provozovateli tohoto Serveru uděluje svůj výslovný souhlas v souladu s ustanovením § 5 zákona č. 101/2000 Sb. O ochraně osobních údajů a o změně některých zákonů, v platném znění (dále jen „zákon o ochraně osobních údajů“), se zpracováním uživatelem poskytnutých osobních údajů a dalších dat.
Uživatel poskytuje Správci osobní údaje v rozsahu: jméno, příjmení, e-mailová adresa, telefonický kontakt a další data, a to z důvodu projeveného zájmu o nemovitost, kde prostřednictvím služby Serveru Správce osloví Uživatel inzerenta uvedeného v detailu
nemovitosti - Bidli reality, a.s. (IČ 06790763) se zájmem o jeho služby. Tato společnost je součástí seskupení/sítě/franšízového modelu realitních kanceláří, jejich seznam můžete zobrazit kliknutím na tento odkaz.
Hypocentrum modré pyramidy - Praha (IČ ) , Hypocentrum modré pyramidy - Brno (IČ ) , Hypocentrum Modré pyramidy - Hradec Králové (IČ ) , Hypocentrum Modré pyramidy - České Budějovice (IČ ) , Hypocentrum Modré pyramidy - Pardubice (IČ ) , Hypocentrum Modré pyramidy - Plzeň (IČ ) , Hypocentrum Modré pyramidy - Ústí nad Labem (IČ ) , Hypocentrum Modré pyramidy - Ostrava (IČ ) , Hypocentrum Modré pyramidy - Olomouc (IČ ) , Bidli reality, a.s. (IČ 06790763)
Uživatel tyto osobní údaje poskytuje dobrovolně a bere na vědomí, že součástí služeb Správce, které Správce Uživateli poskytuje, je vyhledání všech Uživateli vyhovujících (dle parametrů - cena, typ nemovitosti, lokalita atd.) nemovitostí. Správce za tímto účelem provozuje aplikace Hlídací pes a newsletter. Tyto služby je možné z každého zaslaného emailu odhlásit. Souhlas se zpracováním osobních údajů Uživatel poskytuje Správci na dobu neurčitou s tím, že svůj udělený souhlas může Uživatel kdykoliv na drese správce info@realitymix.cz odvolat. Správce garantuje Uživateli i další práva uvedené v ustanovení §11 a §21 zákoba č. 101/200 Sb. Ve znění pozdějších předpisů.
Více informací o zpracování údajů získáte zde (realitymix.cz/zasady-ochrany-osobnich-udaju)