Nabízíme ke koupi zděný dům s číslem popisným, vhodný jak k rekreaci, tak i k trvalému bydlení. Nemovitost se nachází v oblíbené lokalitě Nespeky, jen kousek od Prahy, v klidném prostředí s přírodou na dosah.
⸻
Hlavní přednosti nemovitosti:
• Rekonstrukce – nové rozvody topení v mědi, elektřina,nové podlahy, moderní kuchyň a moderní koupelna.
Ke všemu doložitelná projektová dokumentace a stavební povolení.
• Vytápění – v každé místnosti radiátor, možnost topit elektřinou + krbová kamna pro útulnou atmosféru.
• Komfortní podlahové topení v kuchyni a obývacím pokoji.
• Plastová okna situovaná na všechny světové strany – dům je tak světlý po celý den.
• Velký sklep pod celým domem – ideální pro skladování.
• Voda – vlastní studna + přivedený veřejný vodovod k pozemku.
• Odpad – dům má vlastní jímku, přičemž v dnešní době je možné využít modernější řešení, např. čističku odpadních vod.
• Zateplená část domu (přístavba v přízemí).
• Zahrada s větším prostorem před domem i kolem domu – vhodná pro odpočinek, zahradničení nebo rodinné aktivity.
⸻
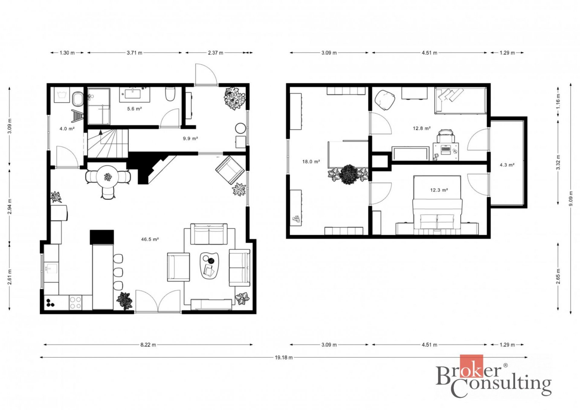
Dispozice a potenciál
• Současná dispozice: 3+kk
• Obytná plocha: 109,1 m²
• Užitná plocha: 143,5 m²
• Potenciál navýšení na 5+kk – v současné době je zde střecha, u které by v budoucnu bylo vhodné udělat rekonstrukci. Při změně postavení střechy je možné upravit sklon a získat tak další prostor, kde mohou vzniknout jeden až dva nové pokoje.
⸻
Lokalita – Nespeky
Oblíbená a klidná obec s výbornou dostupností do Prahy – autem pouhých 21 minut na Chodov. Krásné prostředí pro odpočinek i každodenní život.
V obci je mateřská i základní škola, nechybí ani restaurace, sportoviště a další občanská vybavenost. Kousek od domu se nachází řeka Sázava a okolí je obklopeno krásnou přírodou.
Shrnutí
• Zděný dům po modernizaci, připravený ihned k nastěhování.
• Moderní kuchyň, koupelna a komfortní podlahové topení v kuchyni a obýváku.
• Velký sklep a zahrada s dostatkem prostoru kolem domu.
• Potenciál rozšíření až na 5+kk díky úpravě střechy.
• Klidné bydlení v přírodě kousek od Prahy, s výbornou dostupností do hlavního města.
⸻
Dům nabízí skvělý poměr ceny a hodnoty – určitě za nižší cenu, než by v Praze stál byt s obdobnou obytnou plochou, zde získáte plnohodnotný rodinný dům se zahradou v krásné přírodě, s výbornou dostupností do hlavního města.
Energetická náročnost budovy: G (PENB není aktuálně vyhotoven, proto je uvedena nejnižší možná hodnota).
Pokud budete chtít svůj budoucí dům financovat pomocí hypotečního úvěru, rád Vám se vším pomohu, jako nezávislý finanční konzultant a vyberu pro Vás ty nejlepší podmínky.
„Finance.Reality.Spolu – naše jedinečná služba, která klientům zajišťuje maximální přidanou hodnotu při prodeji i koupi nemovitosti.“
Těším se na setkání při prohlídce.
V tomto článku shrneme nejdůležitější věci, které byste si měli promyslet, pokud se chystáte prodat svou nemovitost a chcete, abyste s kupujícím nemusel následně řešit vzniklé problémy.
Jako prodávající nesete rizika spojená nejen se samotným obchodem, ale i se stavem nemovitosti v době prodeje a pro minimalizaci rizik, je dobré se zamyslet nad uvedenými oblastmi.
Realitní makléř má své nezastupitelné místo v realitním obchodu. Realitním makléřem nemyslím nevzdělané jelito, které absolvovalo dvoudenní školení a ví, jak se nahraje inzerát na inzertní portál.
Realitním makléřem, který se Vám skutečně vyplatí, je zkušený profesionál, který je schopen Vám dobře poradit jak prodat za co nejvíc a s nejmenším rizikem a hlavně je Vás schopen obratně provést celým realitním obchodem.
Uživatel serveru RealityMIX.iprima.cz (dále jen „Server“) dostupného na internetové adrese (URL) https://realitymix.iprima.cz, který provozuje společnost DALTEN media s.r.o., se sídlem Na Harfě 916/9a, Praha 9, 190 00, IČO: 271 35 306 (dále jen „Správce“) jako provozovateli tohoto Serveru uděluje svůj výslovný souhlas v souladu s ustanovením § 5 zákona č. 101/2000 Sb. O ochraně osobních údajů a o změně některých zákonů, v platném znění (dále jen „zákon o ochraně osobních údajů“), se zpracováním uživatelem poskytnutých osobních údajů a dalších dat.
Uživatel poskytuje Správci osobní údaje v rozsahu: jméno, příjmení, e-mailová adresa, telefonický kontakt a další data, a to z důvodu projeveného zájmu o nemovitost, kde prostřednictvím služby Serveru Správce osloví Uživatel inzerenta uvedeného v detailu
nemovitosti - Broker Consulting, a.s. (IČ 25221736) se zájmem o jeho služby. Tato společnost je součástí seskupení/sítě/franšízového modelu realitních kanceláří, jejich seznam můžete zobrazit kliknutím na tento odkaz.
Broker Consulting, a.s. (IČ 25221736) , WikiPoradce s.r.o. (IČ 07835027) , Šroll Aleš Reality (IČ 13543253) , Blanka Svašková (IČ 174162535) , Ing. Josef Novotný (IČ 40579735) , ŘEŠENÍ BYDLENÍ s.r.o. (IČ 08062315) , Sebeobrana s.r.o. (IČ 24250686) , VIDRIERA s.r.o. (IČ 02131382) , Helena Vojtová (IČ 61553956) , Jan Lešák - reality s.r.o. (IČ 01978233) , BONITREAL BRNO s.r.o. (IČ 01483137) , SITERRA S.R.O. (IČ 26052512) , MC Real Plzeň s.r.o (IČ 29090407) , ELSIMA REALITY s.r.o. (IČ 09856960) , FM Design s.r.o. (IČ 03255697) , LJA s.r.o. (IČ 08869090) , K&P obchod s.r.o. (IČ 07644001) , Miroslav Kovařík (IČ 68814917) , Linda Bernátová s.r.o. (IČ 09644873) , S&L a partners s.r.o. (IČ 09985948) , Times Two s.r.o. (IČ 04023412) , 1. Vzájemná poradenská a.s. (IČ 26324385) , Complete Consulting s.r.o. (IČ 24232904) , MIK Marketing s.r.o. (IČ 14378043) , REALITYSPOLU (IČ 25221736)
Uživatel tyto osobní údaje poskytuje dobrovolně a bere na vědomí, že součástí služeb Správce, které Správce Uživateli poskytuje, je vyhledání všech Uživateli vyhovujících (dle parametrů - cena, typ nemovitosti, lokalita atd.) nemovitostí. Správce za tímto účelem provozuje aplikace Hlídací pes a newsletter. Tyto služby je možné z každého zaslaného emailu odhlásit. Souhlas se zpracováním osobních údajů Uživatel poskytuje Správci na dobu neurčitou s tím, že svůj udělený souhlas může Uživatel kdykoliv na drese správce info@realitymix.cz odvolat. Správce garantuje Uživateli i další práva uvedené v ustanovení §11 a §21 zákoba č. 101/200 Sb. Ve znění pozdějších předpisů.
Více informací o zpracování údajů získáte zde (realitymix.cz/zasady-ochrany-osobnich-udaju)