Prodej nízkoenerg. novostavby 4+kk 105 m², pozemek 436 m² Narysov
Novostavba nízkoenerg. domu 4+kk vč. vlastní zahrady a parkovacího stání, uprostřed krásné přírody na okraji města Příbram, v obci Narysov.
Vlastníte byt v Příbrami a rádi bystě krásný dům uprostřed přírody poblíž Příbrami?
Rádi Vám Váš byt prodáme našemu prověřenému klientovi na investici, který Vás nadále nechá v bytě v klidu bydlet, než vyřídíte koupi vysněného domu (vč. vyřízení hypotéky, kterou Vám rádi na klíč bez starostí vyřídíme) a Vy se pak rovnou přestěhujte do Vašeho nového bydlení.
Ocenění Vašeho stávajícího bydlení zdarma, stejně tak i nezávazná konzultace s naším úvěrovým specialistou.
Dům je stavěn jako nízkoenergetická novostavba pro maximální úsporu energií.
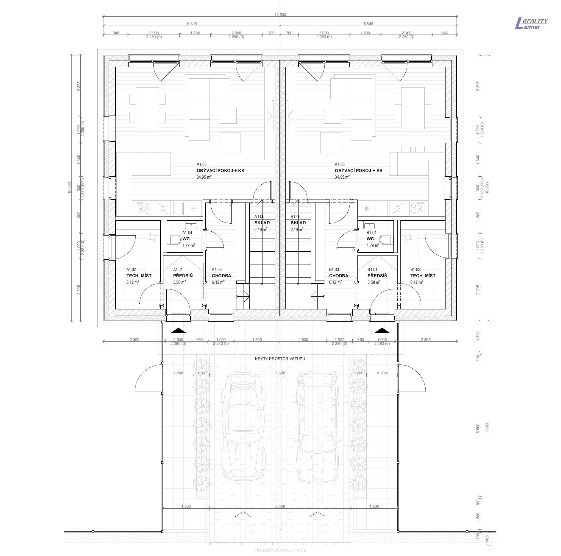
Jedná se o projekt novostaveb Zelená Narysov, s jednotkou o dispozici 4+kk s užitnou plochou cca 112 m2 na vlastním oploceném pozemku 436 m2, která se nachází v dvojdomu s celkem 2 byt. jednotkami (každá s vlastním vchodem, parkovacím stáním a zahradou), pro zajištění max. pohodlí a soukromí. Celkem k dispozici 30 dvojdomů ve 3 etapách. Nyní se staví prvních šest. Termín dokončení 1 etapy v roce 2026.
Standardem je zde tepelné čerpadlo vzduch–voda s podlahovým vytápěním, fotovoltaický systém, plastová okna s trojsklem a venkovními roletami, dokončené koupelny, kvalitní podlahy, interiérové dveře, oplocení pozemku a zpevněné plochy pro parkování. Navíc vč. plánované výstavby nabíjecích stanic pro případné elektromobily.
Dispozičně dům nabízí využití v přízemí: chodba (zádveří), předsíň, tech. místnost, samostatná toaleta, prostorný cca 35 m2 obývací pokoj vč. jídelny a kuch. koutu (vč. vstupu na zahradu, případně terasu u domu). V podkroví: chodba, šatna, pracovna, ložnice 12 m2, koupelna (vč. vany, sprch. koutu a toalety), dva samostatné dětské pokoje každý cca 11 m2.
Novostavbu lze dokončit na přání zájemce (barvy podlahy, dlažby, atd.).
Dům je vhodný i jako ideální investice na nájem. Po pronájmech domů velká poptávka v lokalitě Příbram. (Dům je sice za cenu 2 investičních bytů, čistý nájem, ale též odpovídá 2 investičním bytům. Poptávka je dnes veliká, díky pro soustu klientů stále nedostupnému financování a výši úrokových sazeb bank.) V okolí Příbrami již několik domů pronajímáme, bez jakýchkoliv problémů.
Jsme realitní kancelář se 17ti letou praxí v oblasti prodeje a pronájmů v lokalitě Příbram, místní trh velmi dobře známe.
Lokalita nových domů na okraji obce Narysov bude velmi pěkná a je brána dnes již za téměř součást města Příbram.
Za pár minut jste v centru města Příbram, kde se nachází kompletní obč. vybavenost a velmi dobrá dostupnost do Prahy.
V tomto článku shrneme nejdůležitější věci, které byste si měli promyslet, pokud se chystáte prodat svou nemovitost a chcete, abyste s kupujícím nemusel následně řešit vzniklé problémy.
Jako prodávající nesete rizika spojená nejen se samotným obchodem, ale i se stavem nemovitosti v době prodeje a pro minimalizaci rizik, je dobré se zamyslet nad uvedenými oblastmi.
Realitní makléř má své nezastupitelné místo v realitním obchodu. Realitním makléřem nemyslím nevzdělané jelito, které absolvovalo dvoudenní školení a ví, jak se nahraje inzerát na inzertní portál.
Realitním makléřem, který se Vám skutečně vyplatí, je zkušený profesionál, který je schopen Vám dobře poradit jak prodat za co nejvíc a s nejmenším rizikem a hlavně je Vás schopen obratně provést celým realitním obchodem.
Uživatel serveru RealityMIX.iprima.cz (dále jen „Server“) dostupného na internetové adrese (URL) https://realitymix.iprima.cz, který provozuje společnost DALTEN media s.r.o., se sídlem Na Harfě 916/9a, Praha 9, 190 00, IČO: 271 35 306 (dále jen „Správce“) jako provozovateli tohoto Serveru uděluje svůj výslovný souhlas v souladu s ustanovením § 5 zákona č. 101/2000 Sb. O ochraně osobních údajů a o změně některých zákonů, v platném znění (dále jen „zákon o ochraně osobních údajů“), se zpracováním uživatelem poskytnutých osobních údajů a dalších dat.
Uživatel poskytuje Správci osobní údaje v rozsahu: jméno, příjmení, e-mailová adresa, telefonický kontakt a další data, a to z důvodu projeveného zájmu o nemovitost, kde prostřednictvím služby Serveru Správce osloví Uživatel inzerenta uvedeného v detailu
nemovitosti - Tomáš Lenner (IČ 86982125) se zájmem o jeho služby.
Uživatel tyto osobní údaje poskytuje dobrovolně a bere na vědomí, že součástí služeb Správce, které Správce Uživateli poskytuje, je vyhledání všech Uživateli vyhovujících (dle parametrů - cena, typ nemovitosti, lokalita atd.) nemovitostí. Správce za tímto účelem provozuje aplikace Hlídací pes a newsletter. Tyto služby je možné z každého zaslaného emailu odhlásit. Souhlas se zpracováním osobních údajů Uživatel poskytuje Správci na dobu neurčitou s tím, že svůj udělený souhlas může Uživatel kdykoliv na drese správce info@realitymix.cz odvolat. Správce garantuje Uživateli i další práva uvedené v ustanovení §11 a §21 zákoba č. 101/200 Sb. Ve znění pozdějších předpisů.
Více informací o zpracování údajů získáte zde (realitymix.cz/zasady-ochrany-osobnich-udaju)