Rodinný dům s investičním potenciálem v centru Náchoda.
Nabízíme k prodeji rodinný dům situovaný ve vilové čtvrti na zámeckém kopci v Náchodě. Nachází se v klidné odbočce ulice Smiřických, přesto je centrum města vzdáleno pouhých 5 minut chůze. Ideální kombinace klidu a skvělé městské dostupnosti.
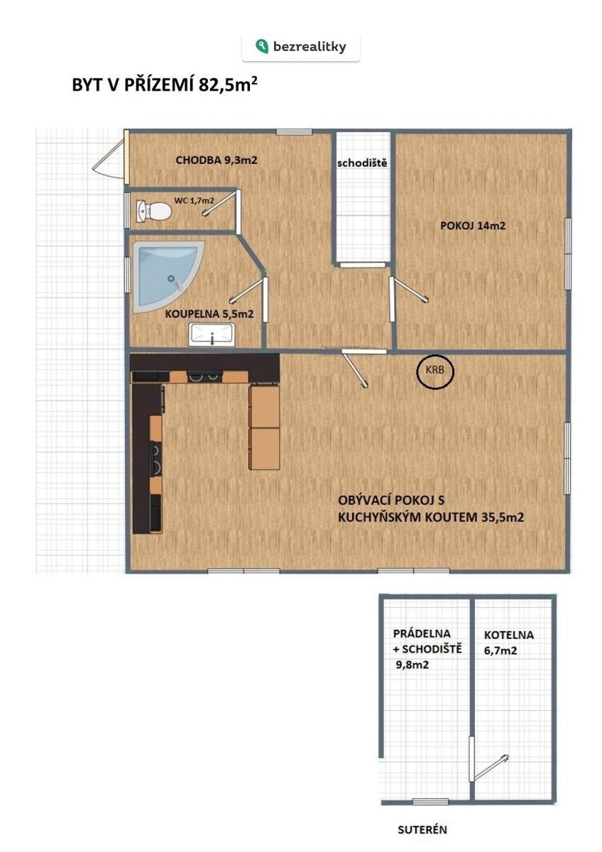
Klíčové parametry a dispozice
• Celková plocha pozemku: 430 m²
• Terasovitá zahrada o rozloze 315 m² poskytuje soukromí a prostor pro relaxaci
• Soukromé parkovací stání pro 3 automobily přímo před domem
• Potenciál 3 bytových jednotek. Současná dispozice je ideální pro velkou rodinu, mezigenerační bydlení nebo kombinaci bydlení a pronájmu
o Přízemí: 2+kk 82,5 m² s prádelnou a kotelnou, po rekonstrukci v roce 2021
o Suterén: 2+1 58,3 m² se samostatným vchodem
o Půdní prostor: 74 m² se započatou rekonstrukcí (střešní krytina Bramac, částečná nadkrokevní izolace, nová okna, elektroinstalace a vyvložkovaný komín). Tento prostor je připraven k dokončení jako další samostatná bytová jednotka nebo k velkorysému rozšíření bytu v přízemí.
Technické vybavení
• Kombinované vytápění: horkovod doplněný o krbová kamna s výměníkem napojeným na radiátory. Na zahradě je přístřešek na dřevo.
• Internet: Vysokorychlostní připojení realizované optickým vláknem (včetně TV), zajišťující bezproblémovou práci z domova i zábavu.
Město Náchod má veškerou občanskou vybavenost i nádherné okolí. Z oken domu je vidět na Dobrošov a rozlehlé louky kolem. Zámecký park, alej s oborou a les jsou takřka za domem. Autem jste v Hradci Králové za 35 minut.
Bonus pro kupujícího: K dispozici je projekt se stavebním povolením (nutno prodloužit) pro výstavbu garážového stání se sklepem, saunou a dílnou. Dále dodáme i původní stavební dokumentaci k rodinnému domu.
Cena: 7.700.000,- Kč
Pro více informací a sjednání prohlídky mě neváhejte kontaktovat:
Čejp Stanislav – tel. 603 904633, scejp@post.cz
Děkuji, že realitní kanceláře nevolají. Tato nemovitost je určena výhradně přímým zájemcům o koupi. Na inzerát můžete také reagovat přímo na webu Bezrealitky: https://www.bezrealitky.cz/nemovitosti-byty-domy/965374-nabidka-prodej-domu-smirickych-nachod
V tomto článku shrneme nejdůležitější věci, které byste si měli promyslet, pokud se chystáte prodat svou nemovitost a chcete, abyste s kupujícím nemusel následně řešit vzniklé problémy.
Jako prodávající nesete rizika spojená nejen se samotným obchodem, ale i se stavem nemovitosti v době prodeje a pro minimalizaci rizik, je dobré se zamyslet nad uvedenými oblastmi.
Realitní makléř má své nezastupitelné místo v realitním obchodu. Realitním makléřem nemyslím nevzdělané jelito, které absolvovalo dvoudenní školení a ví, jak se nahraje inzerát na inzertní portál.
Realitním makléřem, který se Vám skutečně vyplatí, je zkušený profesionál, který je schopen Vám dobře poradit jak prodat za co nejvíc a s nejmenším rizikem a hlavně je Vás schopen obratně provést celým realitním obchodem.
* Umístění na mapě je na základě GPS informací dodaných realitní kanceláří.
* Pozice na mapě je pouze orientační.
Souhlas se zpracováním osobních údajů
Uživatel serveru RealityMIX.iprima.cz (dále jen „Server“) dostupného na internetové adrese (URL) https://realitymix.iprima.cz, který provozuje společnost DALTEN media s.r.o., se sídlem Na Harfě 916/9a, Praha 9, 190 00, IČO: 271 35 306 (dále jen „Správce“) jako provozovateli tohoto Serveru uděluje svůj výslovný souhlas v souladu s ustanovením § 5 zákona č. 101/2000 Sb. O ochraně osobních údajů a o změně některých zákonů, v platném znění (dále jen „zákon o ochraně osobních údajů“), se zpracováním uživatelem poskytnutých osobních údajů a dalších dat.
Uživatel poskytuje Správci osobní údaje v rozsahu: jméno, příjmení, e-mailová adresa, telefonický kontakt a další data, a to z důvodu projeveného zájmu o nemovitost, kde prostřednictvím služby Serveru Správce osloví Uživatel inzerenta uvedeného v detailu
nemovitosti - Bezrealitky s.r.o. (IČ 08063168) se zájmem o jeho služby.
Uživatel tyto osobní údaje poskytuje dobrovolně a bere na vědomí, že součástí služeb Správce, které Správce Uživateli poskytuje, je vyhledání všech Uživateli vyhovujících (dle parametrů - cena, typ nemovitosti, lokalita atd.) nemovitostí. Správce za tímto účelem provozuje aplikace Hlídací pes a newsletter. Tyto služby je možné z každého zaslaného emailu odhlásit. Souhlas se zpracováním osobních údajů Uživatel poskytuje Správci na dobu neurčitou s tím, že svůj udělený souhlas může Uživatel kdykoliv na drese správce info@realitymix.cz odvolat. Správce garantuje Uživateli i další práva uvedené v ustanovení §11 a §21 zákoba č. 101/200 Sb. Ve znění pozdějších předpisů.
Více informací o zpracování údajů získáte zde (realitymix.cz/zasady-ochrany-osobnich-udaju)