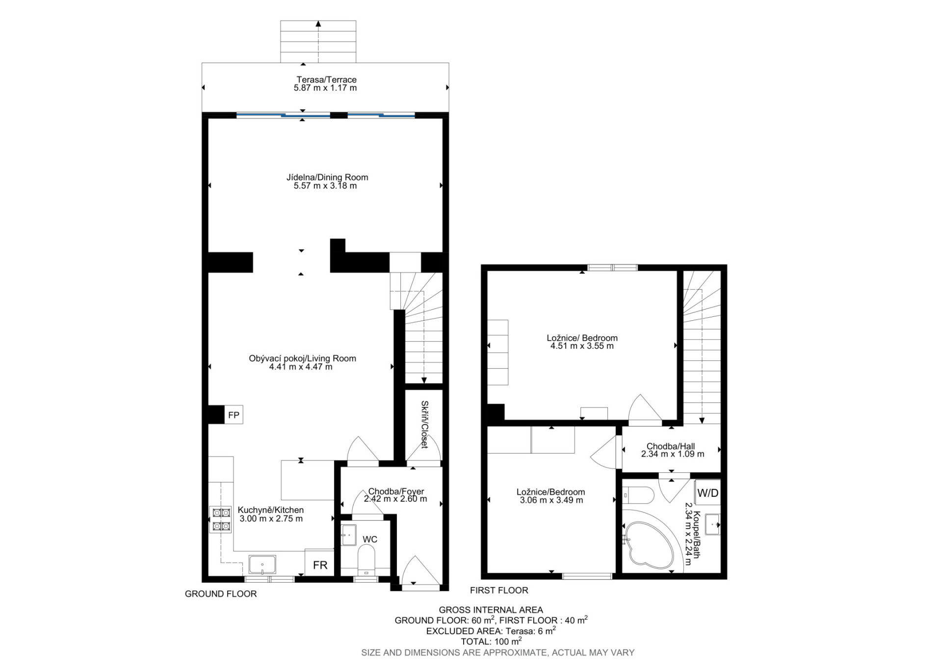
Prodej rodinného domu 3+kk, Na Vyhlídce, Moravany, 107 m²
Nabízíme k prodeji velmi dobře udržovaný řadový rodinný dům o dispozici 3+kk s možností úpravy na plnohodnotné 4+kk. Celková užitná plocha domu činí cca 107 m² (včetně vedlejších a krytých ploch), čistá obytná plocha je přibližně 97 m². Dům se nachází v klidné ulici Na Vyhlídce v žádané lokalitě Moravany u Brna. Celková výměra pozemku činí 152 m², zastavěná plocha domu je 59 m².
Součástí pozemku jsou dvě parkovací stání, z nichž jedno je zastřešené. Na dvoře se nachází praktický zahradní domek na nářadí. Dům má dvě nadzemní podlaží a je napojen na všechny inženýrské sítě – voda, kanalizace, elektřina a plyn. Vytápění zajišťuje plynový kotel značky Baxi, doplněný o kvalitní krbová kamna značky HASE s akumulačními cihlami, které výrazně zvyšují tepelný komfort a energetickou úsporu.
V přízemí je umístěn kuchyňský kout s linkou osazenou spotřebiči značky Mora – elektrickou troubou, plynovou varnou deskou, digestoří a mikrovlnnou troubou. Lednice s mrazákem jsou značky Gorenje. Na kuchyňský kout navazuje obývací část s krbem, pohovkou, konferenčním stolkem, televizí a dalšími prvky vybavení. Dále plynule přecházíme do jídelní části s pohodlnými křesílky, odkud je přímý vstup na dvůr vhodný pro venkovní posezení a grilování. Mezi obývací a jídelní částí je konstrukčně připravena možnost vybudování příčky, čímž lze vytvořit další menší pokoj a změnit dispozici domu na 4+kk.
V patře se nachází hlavní ložnice s manželskou postelí a vestavěnými skříněmi. Druhý pokoj může sloužit jako dětský pokoj nebo pracovna. Koupelna je vybavena rohovou vanou, umyvadlem, přípojkou na pračku, sušičkou a druhou toaletou.
Dům se nachází v lokalitě s velmi dobrou dostupností do Brna a zároveň v klidném rezidenčním prostředí. V pěší vzdálenosti je základní i mateřská škola, obchody, dětská hřiště, restaurace a nákupní centrum Futurum je vzdálené pouhých pár minut jízdy autem.
Nový vlastník tak může převzít existující nájemní vztah a využít nemovitost jako investiční s okamžitým výnosem, nebo si ji po skončení smlouvy přizpůsobit k vlastnímu bydlení.
Současné měsíční zálohy na energie a služby (stav k 1. 11. 2025):
– Voda: 890 Kč
– Elektřina: 1 830 Kč
– Plyn: 1 470 Kč
Dle doloženého průkazu energetické náročnosti spadá nemovitost do třídy C – úsporná.
V tomto článku shrneme nejdůležitější věci, které byste si měli promyslet, pokud se chystáte prodat svou nemovitost a chcete, abyste s kupujícím nemusel následně řešit vzniklé problémy.
Jako prodávající nesete rizika spojená nejen se samotným obchodem, ale i se stavem nemovitosti v době prodeje a pro minimalizaci rizik, je dobré se zamyslet nad uvedenými oblastmi.
Realitní makléř má své nezastupitelné místo v realitním obchodu. Realitním makléřem nemyslím nevzdělané jelito, které absolvovalo dvoudenní školení a ví, jak se nahraje inzerát na inzertní portál.
Realitním makléřem, který se Vám skutečně vyplatí, je zkušený profesionál, který je schopen Vám dobře poradit jak prodat za co nejvíc a s nejmenším rizikem a hlavně je Vás schopen obratně provést celým realitním obchodem.
Uživatel serveru RealityMIX.iprima.cz (dále jen „Server“) dostupného na internetové adrese (URL) https://realitymix.iprima.cz, který provozuje společnost DALTEN media s.r.o., se sídlem Na Harfě 916/9a, Praha 9, 190 00, IČO: 271 35 306 (dále jen „Správce“) jako provozovateli tohoto Serveru uděluje svůj výslovný souhlas v souladu s ustanovením § 5 zákona č. 101/2000 Sb. O ochraně osobních údajů a o změně některých zákonů, v platném znění (dále jen „zákon o ochraně osobních údajů“), se zpracováním uživatelem poskytnutých osobních údajů a dalších dat.
Uživatel poskytuje Správci osobní údaje v rozsahu: jméno, příjmení, e-mailová adresa, telefonický kontakt a další data, a to z důvodu projeveného zájmu o nemovitost, kde prostřednictvím služby Serveru Správce osloví Uživatel inzerenta uvedeného v detailu
nemovitosti - Ideální nájemce (IČ 29300631) se zájmem o jeho služby.
Uživatel tyto osobní údaje poskytuje dobrovolně a bere na vědomí, že součástí služeb Správce, které Správce Uživateli poskytuje, je vyhledání všech Uživateli vyhovujících (dle parametrů - cena, typ nemovitosti, lokalita atd.) nemovitostí. Správce za tímto účelem provozuje aplikace Hlídací pes a newsletter. Tyto služby je možné z každého zaslaného emailu odhlásit. Souhlas se zpracováním osobních údajů Uživatel poskytuje Správci na dobu neurčitou s tím, že svůj udělený souhlas může Uživatel kdykoliv na drese správce info@realitymix.cz odvolat. Správce garantuje Uživateli i další práva uvedené v ustanovení §11 a §21 zákoba č. 101/200 Sb. Ve znění pozdějších předpisů.
Více informací o zpracování údajů získáte zde (realitymix.cz/zasady-ochrany-osobnich-udaju)