Nabízíme k prodeji nový rodinný dům typu bungalov s dispozicí 4+kk, který bude součástí nové zástavby 17 rodinných domů na okraji klidné a malebné obce Mokrouše. Výstavba začne v roce 2025 a jedná se o jedinečnou příležitost pořídit si moderní bydlení na míru v jedné z nejžádanějších lokalit.
O domě
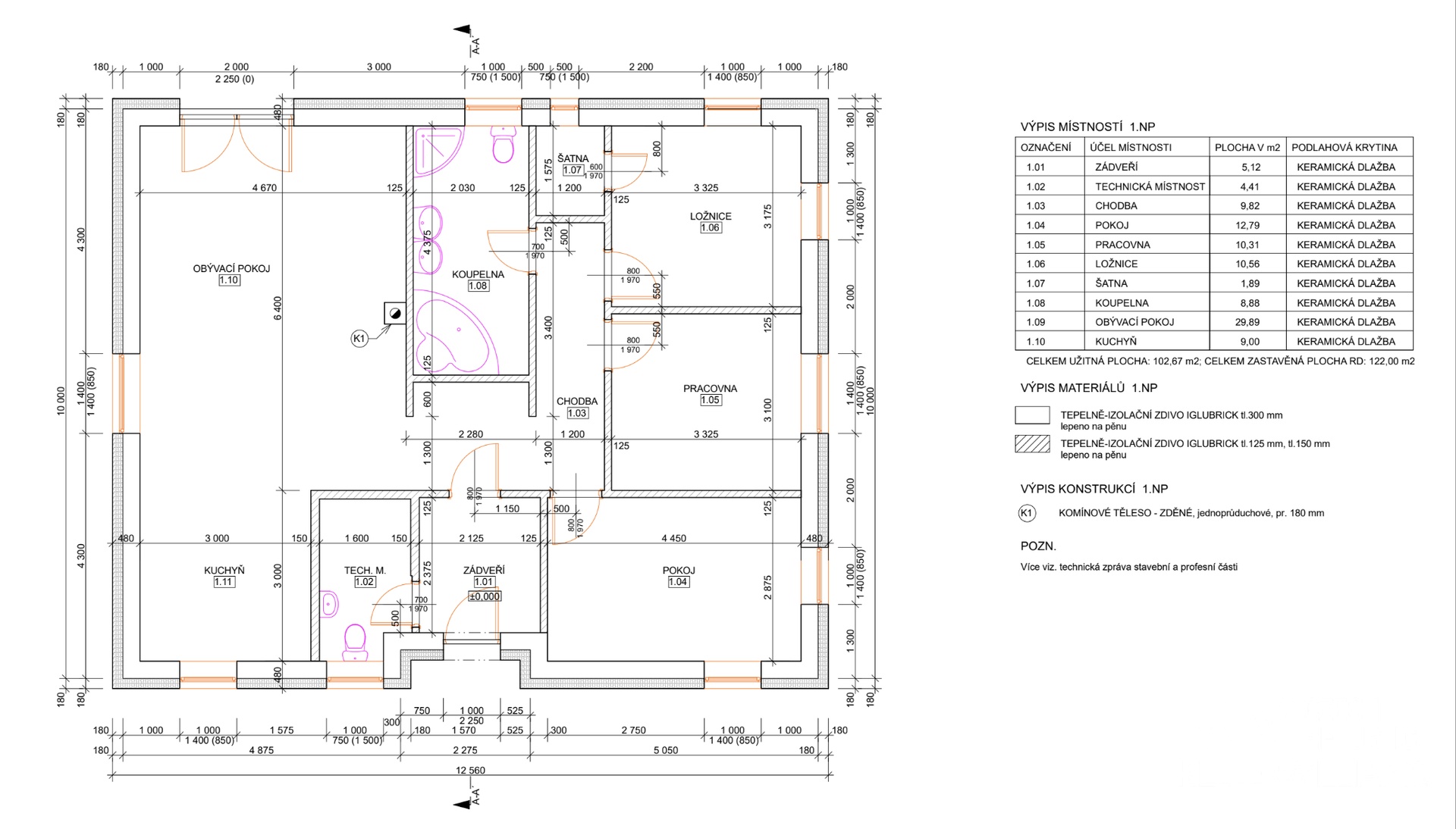
• Užitná plocha: 102,67 m²
• Zastavěná plocha: 122 m²
• pozemek: 919 m²
• Dispozice: 4+kk – ideální pro rodinné bydlení, nabízí prostorný obývací pokoj s kuchyňským koutem, tři ložnice, koupelnu, technickou místnost a další praktické prostory.
• Připojení: Elektřina, vodovod, plynovod, kanalizace a optický internet – vše pro maximální komfort moderního života.
• Personalizace: Klienti mají možnost výběru materiálů pro podlahové krytiny, obklady a další detaily, aby jejich nový domov plně odpovídal jejich představám.
Lokalita – Obec Mokrouše
Obec Mokrouše je vyhledávanou lokalitou pro své klidné prostředí a zároveň skvělou dostupnost do města. Nová zástavba rodinných domů bude situována na okraji obce, což poskytuje dostatek soukromí a přímý kontakt s okolní přírodou.
• Dopravní dostupnost: Pouhých 15 minut jízdy do Plzně a snadná dostupnost dálnice D5.
• Občanská vybavenost: V okolí naleznete školu, školku, obchody a další potřebné služby.
• Rekreace: Okolí nabízí mnoho příležitostí k relaxaci a aktivnímu trávení volného času – turistika, cyklostezky, lesy a příroda.
Proč právě tento dům?
️ Moderní dispozice a technologie pro komfortní bydlení
️ Možnost personalizace interiéru podle vašich přání
️ Skvělá lokalita na okraji klidné obce
️ Kompletní občanská vybavenost a výborná dostupnost
Nenechte si ujít tuto jedinečnou příležitost bydlet v novém, moderním domě v srdci přírody a přitom kousek od města. Rezervujte si svůj nový domov ještě dnes!
V tomto článku shrneme nejdůležitější věci, které byste si měli promyslet, pokud se chystáte prodat svou nemovitost a chcete, abyste s kupujícím nemusel následně řešit vzniklé problémy.
Jako prodávající nesete rizika spojená nejen se samotným obchodem, ale i se stavem nemovitosti v době prodeje a pro minimalizaci rizik, je dobré se zamyslet nad uvedenými oblastmi.
Realitní makléř má své nezastupitelné místo v realitním obchodu. Realitním makléřem nemyslím nevzdělané jelito, které absolvovalo dvoudenní školení a ví, jak se nahraje inzerát na inzertní portál.
Realitním makléřem, který se Vám skutečně vyplatí, je zkušený profesionál, který je schopen Vám dobře poradit jak prodat za co nejvíc a s nejmenším rizikem a hlavně je Vás schopen obratně provést celým realitním obchodem.
Uživatel serveru RealityMIX.iprima.cz (dále jen „Server“) dostupného na internetové adrese (URL) https://realitymix.iprima.cz, který provozuje společnost DALTEN media s.r.o., se sídlem Na Harfě 916/9a, Praha 9, 190 00, IČO: 271 35 306 (dále jen „Správce“) jako provozovateli tohoto Serveru uděluje svůj výslovný souhlas v souladu s ustanovením § 5 zákona č. 101/2000 Sb. O ochraně osobních údajů a o změně některých zákonů, v platném znění (dále jen „zákon o ochraně osobních údajů“), se zpracováním uživatelem poskytnutých osobních údajů a dalších dat.
Uživatel poskytuje Správci osobní údaje v rozsahu: jméno, příjmení, e-mailová adresa, telefonický kontakt a další data, a to z důvodu projeveného zájmu o nemovitost, kde prostřednictvím služby Serveru Správce osloví Uživatel inzerenta uvedeného v detailu
nemovitosti - Keller Williams Czech Republic (IČ 07796340) se zájmem o jeho služby. Tato společnost je součástí seskupení/sítě/franšízového modelu realitních kanceláří, jejich seznam můžete zobrazit kliknutím na tento odkaz.
Keller Williams Czech Republic (IČ 07796340) , Nemovito by Keller Williams (IČ 10826971) , Keller Williams Czech Republic (IČ 07796340) , Keller Williams - centrála (IČ 06521924)
Uživatel tyto osobní údaje poskytuje dobrovolně a bere na vědomí, že součástí služeb Správce, které Správce Uživateli poskytuje, je vyhledání všech Uživateli vyhovujících (dle parametrů - cena, typ nemovitosti, lokalita atd.) nemovitostí. Správce za tímto účelem provozuje aplikace Hlídací pes a newsletter. Tyto služby je možné z každého zaslaného emailu odhlásit. Souhlas se zpracováním osobních údajů Uživatel poskytuje Správci na dobu neurčitou s tím, že svůj udělený souhlas může Uživatel kdykoliv na drese správce info@realitymix.cz odvolat. Správce garantuje Uživateli i další práva uvedené v ustanovení §11 a §21 zákoba č. 101/200 Sb. Ve znění pozdějších předpisů.
Více informací o zpracování údajů získáte zde (realitymix.cz/zasady-ochrany-osobnich-udaju)