Chalupa s funkční pecí a vnitřní udírnou, Těšetiny u Klatov
Nabízíme k prodeji přízemní rodinný dům - chalupu v krásné slunné zahradě v tichu přírody na okraji obce Těšetiny, cca 7 km od Klatov. Už na první pohled je patrné, že jde o velice poctivou rekonstrukci celého areálu (aktuálně probíhají finální dokončovací práce), s citem a vkusem, který se odráží v každém detailu. Nemovitost je proto ihned obyvatelná a nevyžaduje žádné další investice.
V rámci kompletní rekonstrukce bylo provedeno vše od podlah až po střechy - nové rozvody vody (vlastní kopaná studna), odpadů (odpadní vody svedeny do septiku s platným povolením k instalaci čističky), elektroinstalace (datové rozvody, 220/400V), vytápění tepelným čerpadlem (vzduch – voda), nové střechy, podlahy (hydroizolace + zateplení), omítky, dřevěná okna s trojskly, vnější kamenné parapety, vnitřní dřevěné, stropy zaizolovány PUR pěnou. Kromě dvou ložnic, kde jsou radiátory, je v celém domě podlahové topení. V domě je instalována rekuperace.
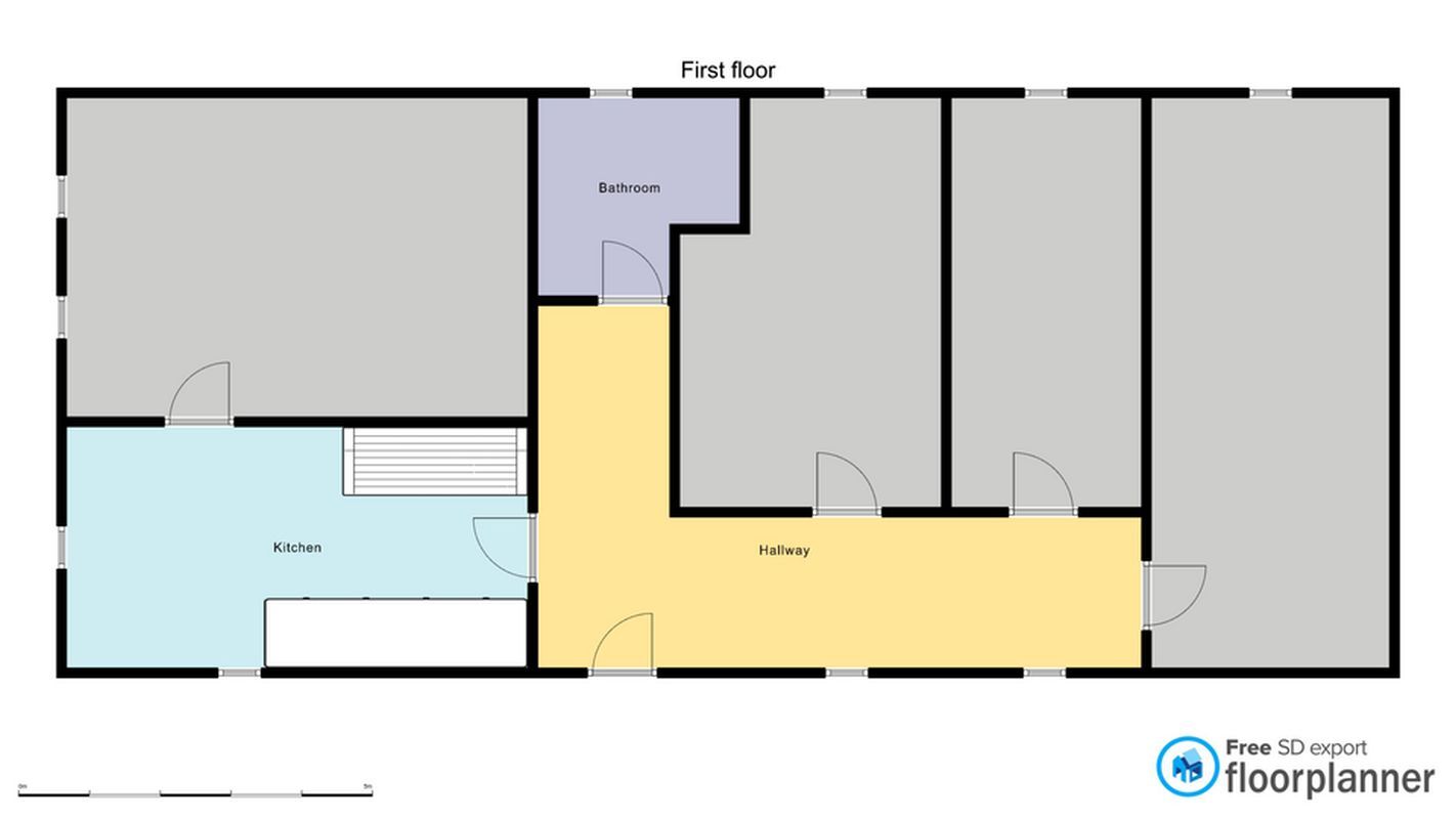
Dispoziční řešení: 4+1 o zast. ploše domu cca 180 m2, s celkovou obytnou pl. cca 100m2, o celkové ploše pozemku 1.155m2. Vnitřní dispozice: vstupní předsíň s chodbou a funkční udírnou, kuchyně s funkční pecí, el. sporákem s vestavěnými spotřebiči v nové kuchyňské lince, prostorný obývací pokoj + další tři pokoje; koupelna se sprchovým koutem, topným žebříkem, WC. Na dům navazují dva prostory s klenbovými stropy a komínem, vhodné k vytvoření příjemného společenského posezení, či vinárny. Prostory lze sloučit. Dřevěné masivní posezení je k dispozici. Součástí nemovitosti je velmi prostorná stodola (140 m2) s vlastním sklepem. Do stodoly je přívedena voda a odpady, na podlaze je leštěný beton. Dále pak nádherný zemní sklípek (10m2). Pozemek je obestavěn zdí v kombinaci osázenými stromky, které zajišťují naprosté soukromí nemovitosti se sluncem po celý den.
Dům je situován v pěkné, citlivě komponované zahradě s okrasnými keři a dřevinami a nabízí tak prostor tomu, kdo dává přednost klidu, soukromí v krásné a tiché krajině. K usedlosti lze v příadě přikoupit stavební pozemek s výměrou 4.164 m2 včetně staršího domu s č.p.. Velkou zajímavostí tohoto je pozemku je platné vodní právo pro vybudování rybníčku (byl provozován ještě v roce 2010), biotopu a podobně.
Obrovskou výhodou je umístění pozemku na konci obce, za pozemkem končí „Hranice zastavěného území“, tudíž za ním již není možné dále stavět a vy tak budete obklopeni přírodou".
Některé vzdálenosti: Klatovy 7 km, Sušice 20 km, na hranice s Německem 45km a 45 km do Plzně.
V tomto článku shrneme nejdůležitější věci, které byste si měli promyslet, pokud se chystáte prodat svou nemovitost a chcete, abyste s kupujícím nemusel následně řešit vzniklé problémy.
Jako prodávající nesete rizika spojená nejen se samotným obchodem, ale i se stavem nemovitosti v době prodeje a pro minimalizaci rizik, je dobré se zamyslet nad uvedenými oblastmi.
Realitní makléř má své nezastupitelné místo v realitním obchodu. Realitním makléřem nemyslím nevzdělané jelito, které absolvovalo dvoudenní školení a ví, jak se nahraje inzerát na inzertní portál.
Realitním makléřem, který se Vám skutečně vyplatí, je zkušený profesionál, který je schopen Vám dobře poradit jak prodat za co nejvíc a s nejmenším rizikem a hlavně je Vás schopen obratně provést celým realitním obchodem.
Uživatel serveru RealityMIX.iprima.cz (dále jen „Server“) dostupného na internetové adrese (URL) https://realitymix.iprima.cz, který provozuje společnost DALTEN media s.r.o., se sídlem Na Harfě 916/9a, Praha 9, 190 00, IČO: 271 35 306 (dále jen „Správce“) jako provozovateli tohoto Serveru uděluje svůj výslovný souhlas v souladu s ustanovením § 5 zákona č. 101/2000 Sb. O ochraně osobních údajů a o změně některých zákonů, v platném znění (dále jen „zákon o ochraně osobních údajů“), se zpracováním uživatelem poskytnutých osobních údajů a dalších dat.
Uživatel poskytuje Správci osobní údaje v rozsahu: jméno, příjmení, e-mailová adresa, telefonický kontakt a další data, a to z důvodu projeveného zájmu o nemovitost, kde prostřednictvím služby Serveru Správce osloví Uživatel inzerenta uvedeného v detailu
nemovitosti - EL-WEST REALITY - Staněk (IČ 48350788) se zájmem o jeho služby.
Uživatel tyto osobní údaje poskytuje dobrovolně a bere na vědomí, že součástí služeb Správce, které Správce Uživateli poskytuje, je vyhledání všech Uživateli vyhovujících (dle parametrů - cena, typ nemovitosti, lokalita atd.) nemovitostí. Správce za tímto účelem provozuje aplikace Hlídací pes a newsletter. Tyto služby je možné z každého zaslaného emailu odhlásit. Souhlas se zpracováním osobních údajů Uživatel poskytuje Správci na dobu neurčitou s tím, že svůj udělený souhlas může Uživatel kdykoliv na drese správce info@realitymix.cz odvolat. Správce garantuje Uživateli i další práva uvedené v ustanovení §11 a §21 zákoba č. 101/200 Sb. Ve znění pozdějších předpisů.
Více informací o zpracování údajů získáte zde (realitymix.cz/zasady-ochrany-osobnich-udaju)