Představuji k prodeji cihlový rodinný dům u vodní nádrže Jesenice, s pěknou rovinatou zahradou, na adrese Stebnice 13.
Podívejte se na samostatnou stránku domu viz odkaz ve videoprohlídce .
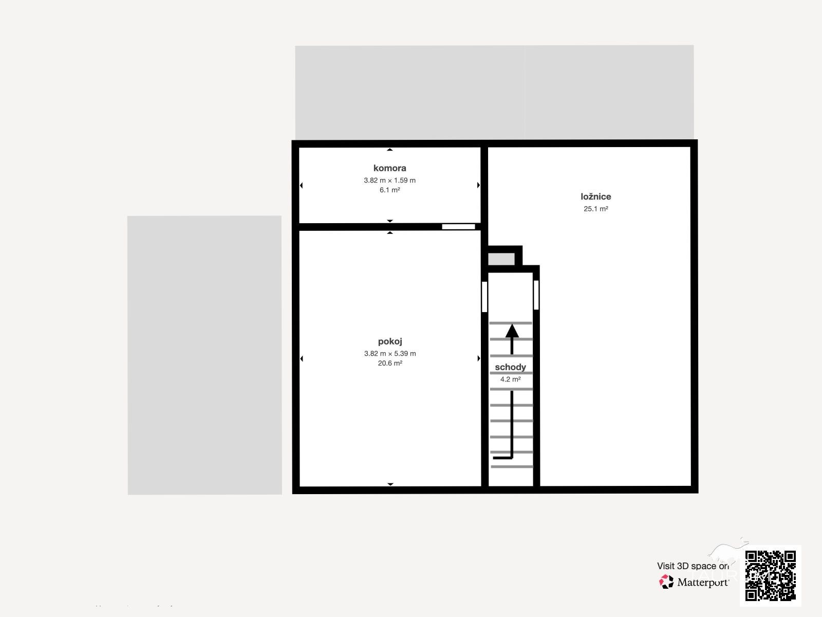
Kompletní představu o dispozici a prostorovém uspořádání získáte z 3D virtuální prohlídky.
Obec Stebnice se nachází 10 min jízdy od Chebu, přímo na okraji v. n. Jesenice. Je dostupná autem, 4 min. od hlavního tahu Cheb Mariánské Lázně, tak i autobusem a vlakem.
Dispozice:
Dům je o dispozici 3+kk.
V přízemí domu je zádveří (vstupní předsíň), chodba, prostorný obývací pokoj, kuchyně s jídelním prostorem, technická místnost a komora.
V patře jsou 2 pokoje, podkrovní komora, a vstup na půdu (po žebříku).
Na dům navazuje garáž a na zahradě jsou další dřevěné zahradní stavby sloužící jako dílna a místo pro uskladnění zahradního nářadí.
Pozemek má celkovou výměru 1.269 m2.
Technické informace:
Dům je zděný, postavený z cihel, nepodsklepený.
Podlaha v přízemí je betonová. Strop přízemí je částečně betonový (nad neobytnými místnostmi) a částečně trámový (nad obývacím pokojem a kuchyní).
Střecha je kryta pálenými taškami. Okna v přízemí, obývacím pokoji a kuchyni jsou plastová, ostatní okna jsou dřevěná.
Vytápění je zajištěno zánovním tepelným čerpadlem, v místnostech jsou radiátory.
V obývacím pokoji jsou krbová kamna napojená na komín s vápenocementovou omítkou a dvěma průduchy (jeden je nepoužívaný, zaslepený, ale případně funkční).
Elektřina je k dispozici 230 i 400 V, rozvody jsou měděné.
Voda je čerpána z vlastní kopané studny na pozemku, s hloubkou cca 3,5 m a s velkým nátokem vody. Ohřev vody je zajištěn bojlerem. V kuchyňské lince je sporák na plynovou lahev.
Kanalizace je svedena do vyvážecí jímky.
Stáří domu je 30 let.
Náklady na provoz domu jsou:
elektřina cca 4.300 Kč/m (podle případného přitápění krbovými kamny)
vývoz jímky (dle užívání)
Dům je ve velmi dobrém stavu umožňujícím bydlení bez dalších zásahů či nákladů.
Pro koupi domu zajišťuji kompletní realitní a právní servis a financování hypotečním úvěrem.
Kontaktujte mě, prosím, pro domluvení prohlídky:
Jan Štěpánek
TAURUM reality
Uvedené výměry jsou orientační.
Cena:
4 600 000 Kč
Datum k nastěhování:
06.03.2026
Číslo zakázky:
REALITYMIX-250145
Podrobné informace
Poloha objektu:samostatný
Druh objektu:cihlová
Stav objektu:velmi dobrý
Počet podlaží objektu:2
Typ domu:patrový
Zastavěná plocha:78 m²
Plocha parcely:1269 m²
Zahrada:1168 m²
Užitná plocha:157 m²
Ostatní:Garáž
Doprava:vlak, silnice
Elektřina:Elektro - 230 V
Voda:Zdroj pro celý objekt
Odpad:Kanalizace
Energetická náročnost budovy:E - Nehospodárná
Energetický ukazatel podle vyhlášky:č. 78/2013 Sb.
V tomto článku shrneme nejdůležitější věci, které byste si měli promyslet, pokud se chystáte prodat svou nemovitost a chcete, abyste s kupujícím nemusel následně řešit vzniklé problémy.
Jako prodávající nesete rizika spojená nejen se samotným obchodem, ale i se stavem nemovitosti v době prodeje a pro minimalizaci rizik, je dobré se zamyslet nad uvedenými oblastmi.
Realitní makléř má své nezastupitelné místo v realitním obchodu. Realitním makléřem nemyslím nevzdělané jelito, které absolvovalo dvoudenní školení a ví, jak se nahraje inzerát na inzertní portál.
Realitním makléřem, který se Vám skutečně vyplatí, je zkušený profesionál, který je schopen Vám dobře poradit jak prodat za co nejvíc a s nejmenším rizikem a hlavně je Vás schopen obratně provést celým realitním obchodem.
Uživatel serveru RealityMIX.iprima.cz (dále jen „Server“) dostupného na internetové adrese (URL) https://realitymix.iprima.cz, který provozuje společnost DALTEN media s.r.o., se sídlem Na Harfě 916/9a, Praha 9, 190 00, IČO: 271 35 306 (dále jen „Správce“) jako provozovateli tohoto Serveru uděluje svůj výslovný souhlas v souladu s ustanovením § 5 zákona č. 101/2000 Sb. O ochraně osobních údajů a o změně některých zákonů, v platném znění (dále jen „zákon o ochraně osobních údajů“), se zpracováním uživatelem poskytnutých osobních údajů a dalších dat.
Uživatel poskytuje Správci osobní údaje v rozsahu: jméno, příjmení, e-mailová adresa, telefonický kontakt a další data, a to z důvodu projeveného zájmu o nemovitost, kde prostřednictvím služby Serveru Správce osloví Uživatel inzerenta uvedeného v detailu
nemovitosti - TAURUM reality s.r.o. (IČ 05904498) se zájmem o jeho služby.
Uživatel tyto osobní údaje poskytuje dobrovolně a bere na vědomí, že součástí služeb Správce, které Správce Uživateli poskytuje, je vyhledání všech Uživateli vyhovujících (dle parametrů - cena, typ nemovitosti, lokalita atd.) nemovitostí. Správce za tímto účelem provozuje aplikace Hlídací pes a newsletter. Tyto služby je možné z každého zaslaného emailu odhlásit. Souhlas se zpracováním osobních údajů Uživatel poskytuje Správci na dobu neurčitou s tím, že svůj udělený souhlas může Uživatel kdykoliv na drese správce info@realitymix.cz odvolat. Správce garantuje Uživateli i další práva uvedené v ustanovení §11 a §21 zákoba č. 101/200 Sb. Ve znění pozdějších předpisů.
Více informací o zpracování údajů získáte zde (realitymix.cz/zasady-ochrany-osobnich-udaju)