K nastěhování ihned.
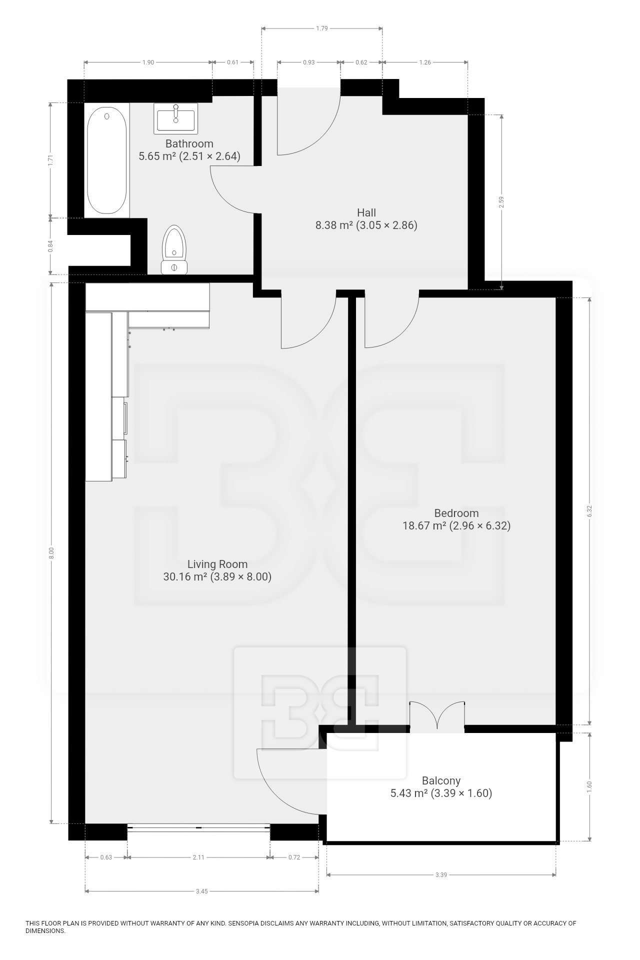
Nabízíme byt k pronájmu o dispozici 2+kk, o velikosti 66 m² s balkonem 5 m², sklepem a vlastním garážovým stáním v úplně novém rezidenčním projektu Zahrady Gallas dokončeném v roce 2025.
Jednotka se nachází v prvním nadzemním podlaží a nabízí světlý prostorný obývací prostor s moderní kuchyňskou linkou vč. vestavěných spotřebičů (myčka, trouba, indukční deska, digestoř), prostornou ložnici, koupelnu s vanou a WC.
K dispozici je také balkon orientovaný do klidného vnitrobloku (jihozápad).
Byt se nabízí nevybavený, připravený k okamžitému nastěhování. Součástí pronájmu je sklepní kóje a garážové parkovací stání v objektu.
Rezidence se nachází v klidné lokalitě s výbornou dostupností do centra Liberce a kompletní občanskou vybaveností v pěším dosahu.
Měsíční nájem - 16300 Kč, záloha za služby spojené s užíváním bytu 4800 Kč včetně elektřiny, kauce 20700 kč, provize 15900 kč + dph.
Velkou výhodou pro potenciální nájemce je, že byt je v profesionální správě společnosti Bohemian Estates, jenž správu pro majitele tohoto bytu vykonává. Nájemci je k dispozici kontaktní osoba, která obratem řeší veškeré záležitosti s nájmem spojené (pravidelná údržba i havarijní zásahy vlastními techniky, vyúčtování, dodatky, apod.). Nájemci je tak zajištěno bezproblémové užívání bytu s kompletním servisem.
V případě zájmu Vám rád pošlu odkaz na virtuální prohlídku, abyste měli úplnou představu o nabízené nemovitosti (360C prohlídka s možností orientace ve videu dle vašich představ).
Cena:
16 300 Kč / (za měsíc)
Poznámka:
+ zálohy na služby 4800 kč včetně elektřiny, vratná kauce 20700 kč, provize 15900 kč + DPH
Uživatel serveru RealityMIX.iprima.cz (dále jen „Server“) dostupného na internetové adrese (URL) https://realitymix.iprima.cz, který provozuje společnost DALTEN media s.r.o., se sídlem Na Harfě 916/9a, Praha 9, 190 00, IČO: 271 35 306 (dále jen „Správce“) jako provozovateli tohoto Serveru uděluje svůj výslovný souhlas v souladu s ustanovením § 5 zákona č. 101/2000 Sb. O ochraně osobních údajů a o změně některých zákonů, v platném znění (dále jen „zákon o ochraně osobních údajů“), se zpracováním uživatelem poskytnutých osobních údajů a dalších dat.
Uživatel poskytuje Správci osobní údaje v rozsahu: jméno, příjmení, e-mailová adresa, telefonický kontakt a další data, a to z důvodu projeveného zájmu o nemovitost, kde prostřednictvím služby Serveru Správce osloví Uživatel inzerenta uvedeného v detailu
nemovitosti - Bohemian Estates International s. r. o. (IČ 27889394) se zájmem o jeho služby.
Uživatel tyto osobní údaje poskytuje dobrovolně a bere na vědomí, že součástí služeb Správce, které Správce Uživateli poskytuje, je vyhledání všech Uživateli vyhovujících (dle parametrů - cena, typ nemovitosti, lokalita atd.) nemovitostí. Správce za tímto účelem provozuje aplikace Hlídací pes a newsletter. Tyto služby je možné z každého zaslaného emailu odhlásit. Souhlas se zpracováním osobních údajů Uživatel poskytuje Správci na dobu neurčitou s tím, že svůj udělený souhlas může Uživatel kdykoliv na drese správce info@realitymix.cz odvolat. Správce garantuje Uživateli i další práva uvedené v ustanovení §11 a §21 zákoba č. 101/200 Sb. Ve znění pozdějších předpisů.
Více informací o zpracování údajů získáte zde (realitymix.cz/zasady-ochrany-osobnich-udaju)