Prodej samostatně stojícího RD, dřevostavby bungalovu o dispozici 3+kk, z roku 2022, od dodavatele Wolf System na betonové základové desce doplněného o betonovou garáž Prefa 6x5m.
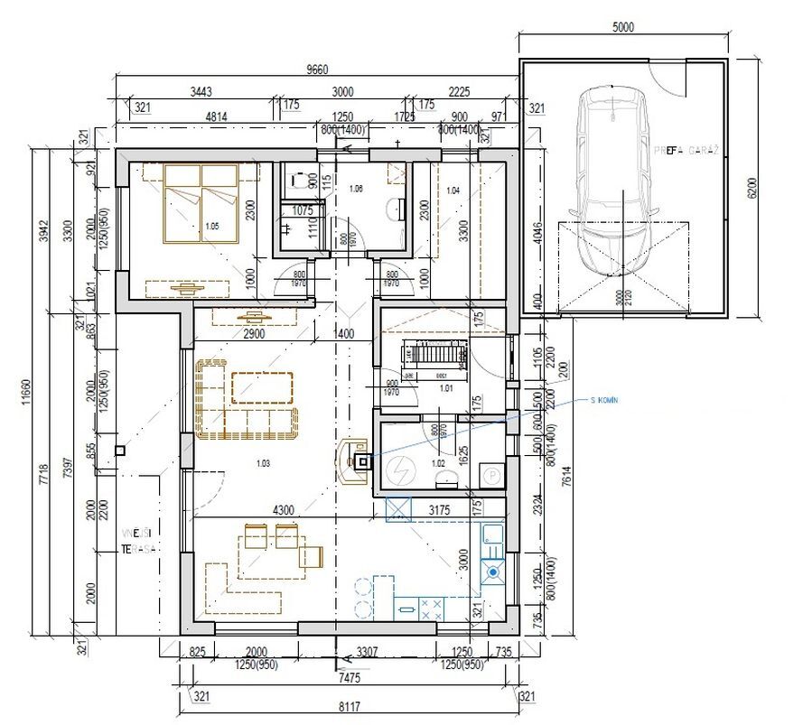
Dům se nachází na krásném klidném místě v Kozojedech, okr. Praha východ, ulice Polní. Kolaudace v roce 2022. Podlahová plocha 83 m2 + 28 m2 garáž, plocha pozemku 848 m2. Dům je napojen na obecní vodovod a kanalizaci. Vytápění tepelným čerpadlem napojeným na podlahové topení. Jako doplňkový zdroj tepla instalována kamna na dřevo, napojená na komínové těleso Schiedel. Okna plastová, s izolačním trojsklem. Podlahové krytiny: chodba, technická místnost, koupelna a kuchyň dlažba, obývací pokoj, jídelna, ložnice a šatna vinyl. Podlaha v garáži v hrubé betonové stěrce, sekční garážová vrata Hörmann šedé barvy, shodné s vnějším dekorem oken a vstupních dveří. Střecha domu valbová, sklon 22°, přesahy 50 cm, střešní taška Bramac. Střecha garáže rovná, potažená hydroizolační vrstvou. Obvodová stěna: ULTRA MEGA WAND (tl. 321 mm, U = 0,135W/m²K), REI 60, světlá výška místností 2,50 m. Dům má velice nízké provozní náklady.
Příjezdová komunikace i chodníky provedeny ve finální zámkové dlažbě, s veřejným osvětlením ulice. Pozemek je kompletně oplocen. Ve směru k ulici z betonových plotových prefabrikátů (stavebnice sloupek + výplň), branka a brána z hliníkových profilů a plot mezi sousedním pozemkem v systému pletiva a ocelových sloupků s plastovou povrchovou úpravou v zelené barvě.
V domě prostorný a světlý obývací pokoj se vstupem na dřevěnou terasu, okny prosvětlená kuchyně včetně linky a spotřebičů, dvě ložnice, koupelna se sprchovým koutem, toaletou a topným žebříkem, vstupní chodba, technická místnost s umyvadlem a pračkou. Dům se prodává zařízený viz. foto.
Nádherné okolí, lesy, Voděradské bučiny, rybníky, cyklostezky a turistické trasy. Přírodní koupaliště 500 m od domu, multifunkční hřiště a venkovní posilovna 250 m od domu. Autobusová zastávka 8 min pěšky od domu. Bus za 35 min na metro Háje.
Okamžitě k dispozici. Možnost hypotéky.
V tomto článku shrneme nejdůležitější věci, které byste si měli promyslet, pokud se chystáte prodat svou nemovitost a chcete, abyste s kupujícím nemusel následně řešit vzniklé problémy.
Jako prodávající nesete rizika spojená nejen se samotným obchodem, ale i se stavem nemovitosti v době prodeje a pro minimalizaci rizik, je dobré se zamyslet nad uvedenými oblastmi.
Realitní makléř má své nezastupitelné místo v realitním obchodu. Realitním makléřem nemyslím nevzdělané jelito, které absolvovalo dvoudenní školení a ví, jak se nahraje inzerát na inzertní portál.
Realitním makléřem, který se Vám skutečně vyplatí, je zkušený profesionál, který je schopen Vám dobře poradit jak prodat za co nejvíc a s nejmenším rizikem a hlavně je Vás schopen obratně provést celým realitním obchodem.
Uživatel serveru RealityMIX.iprima.cz (dále jen „Server“) dostupného na internetové adrese (URL) https://realitymix.iprima.cz, který provozuje společnost DALTEN media s.r.o., se sídlem Na Harfě 916/9a, Praha 9, 190 00, IČO: 271 35 306 (dále jen „Správce“) jako provozovateli tohoto Serveru uděluje svůj výslovný souhlas v souladu s ustanovením § 5 zákona č. 101/2000 Sb. O ochraně osobních údajů a o změně některých zákonů, v platném znění (dále jen „zákon o ochraně osobních údajů“), se zpracováním uživatelem poskytnutých osobních údajů a dalších dat.
Uživatel poskytuje Správci osobní údaje v rozsahu: jméno, příjmení, e-mailová adresa, telefonický kontakt a další data, a to z důvodu projeveného zájmu o nemovitost, kde prostřednictvím služby Serveru Správce osloví Uživatel inzerenta uvedeného v detailu
nemovitosti - BLANÍK REALITY s.r.o. (IČ 27657558) se zájmem o jeho služby.
Uživatel tyto osobní údaje poskytuje dobrovolně a bere na vědomí, že součástí služeb Správce, které Správce Uživateli poskytuje, je vyhledání všech Uživateli vyhovujících (dle parametrů - cena, typ nemovitosti, lokalita atd.) nemovitostí. Správce za tímto účelem provozuje aplikace Hlídací pes a newsletter. Tyto služby je možné z každého zaslaného emailu odhlásit. Souhlas se zpracováním osobních údajů Uživatel poskytuje Správci na dobu neurčitou s tím, že svůj udělený souhlas může Uživatel kdykoliv na drese správce info@realitymix.cz odvolat. Správce garantuje Uživateli i další práva uvedené v ustanovení §11 a §21 zákoba č. 101/200 Sb. Ve znění pozdějších předpisů.
Více informací o zpracování údajů získáte zde (realitymix.cz/zasady-ochrany-osobnich-udaju)