Nabízíme k prodeji rodinnou usedlost v malebné obci Kořenec na Blanensku. Objekt s původním venkovským kouzlem a zachovalou střechou představuje ideální příležitost pro ty, kteří hledají nemovitost s duší a velkým potenciálem k vlastnímu dotvoření.
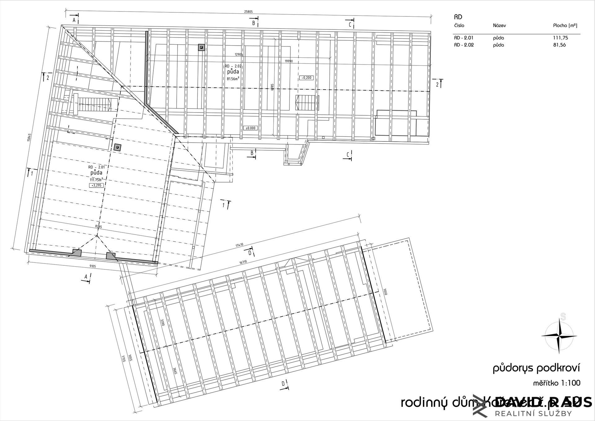
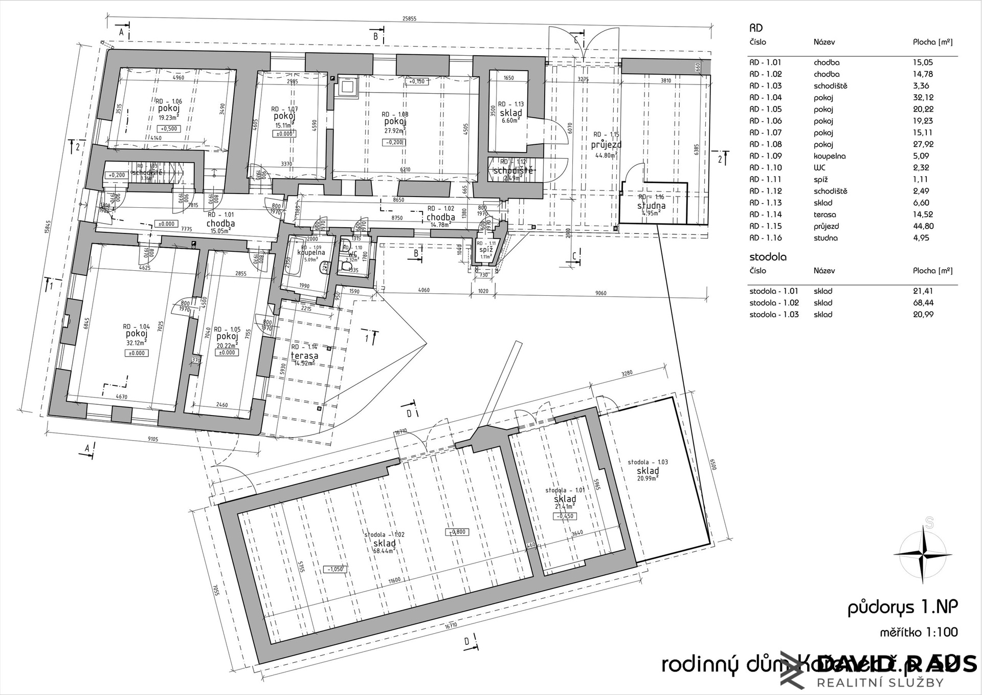
Součástí prodeje je také hotová dispoziční studie pro přestavbu usedlosti na apartmánový dům.
Dispozice a stav:
Hlavní obytná část se skládá z několika samostatných místností a dvou průchozích pokojů, z nichž jeden disponuje krbovými kamny a přímým vstupem na terasu a do nádvoří. Nechybí ani základní sociální zázemí. V domě byla započata rekonstrukce – interiér je kompletně vyklizený, původní podlahové krytiny byly odstraněny a odhalena byla podlaha z masivních dřevěných prken. Střecha je ve velmi dobrém stavu, část krytiny byla již vyměněna. Přilehlé hospodářské části jsou vyklizené a nabízejí široké možnosti využití – ať už jako zázemí pro podnikání, ateliér, dílnu, či pro rozšíření obytných prostor.
Možnosti využití:
Nemovitost je vhodná k přestavbě na rodinné bydlení, ale díky své velikosti a dispozicím nabízí také možnost vytvořit apartmánový dům pro rekreační účely, například dle zhotovené dispoziční studie. Původní charakter usedlosti lze citlivou rekonstrukcí skloubit s moderním stylem, čímž vznikne atraktivní prostor k bydlení i podnikání.
Obec Kořenec se nachází v okrese Blansko, v krásném přírodním prostředí Drahanské vrchoviny, nedaleko Moravského krasu. Místo je vyhledávané pro svůj klid, čistý vzduch a bohaté možnosti volnočasového vyžití. V okolí se nachází značené turistické i cyklistické trasy, které vedou malebnou krajinou. Kořenec je známý také svým 18jamkovým golfovým hřištěm, které patří k nejvýše položeným v České republice a nabízí jedinečné výhledy do okolní krajiny. Obec disponuje základní občanskou vybaveností, další služby jsou dostupné v nedalekém Boskovicích.
Tato usedlost představuje výjimečnou investiční příležitost v klidné lokalitě s dobrou dostupností. Je ideální pro milovníky venkova, kteří hledají prostor k vlastnímu bydlení, rekreaci či podnikání.
Základní informace:
• Lokalita: obec Kořenec, okres Blansko, Drahanská vrchovina
• Typ nemovitosti: usedlost s obytnou částí a hospodářskými prostory
• Stav: započatá rekonstrukce, vyklizeno, připraveno k dalším úpravám
• Celková plocha pozemku: 1198 m² (parc.č. 23/1, 122/1, 122/2, 122/3)
• Zastavěná plocha : 601 m² (parc.č. 23/1)
• Možnost využití: rodinné bydlení, apartmánový dům pro rekreaci, podnikání
• Okolí: příroda Drahanské vrchoviny, turistické a cyklotrasy, golfové hřiště v Kořenci
Více informací u makléře.
Nabízím možnost zajištění financování. Veškerý právní servis zajištěn.
V tomto článku shrneme nejdůležitější věci, které byste si měli promyslet, pokud se chystáte prodat svou nemovitost a chcete, abyste s kupujícím nemusel následně řešit vzniklé problémy.
Jako prodávající nesete rizika spojená nejen se samotným obchodem, ale i se stavem nemovitosti v době prodeje a pro minimalizaci rizik, je dobré se zamyslet nad uvedenými oblastmi.
Realitní makléř má své nezastupitelné místo v realitním obchodu. Realitním makléřem nemyslím nevzdělané jelito, které absolvovalo dvoudenní školení a ví, jak se nahraje inzerát na inzertní portál.
Realitním makléřem, který se Vám skutečně vyplatí, je zkušený profesionál, který je schopen Vám dobře poradit jak prodat za co nejvíc a s nejmenším rizikem a hlavně je Vás schopen obratně provést celým realitním obchodem.
Uživatel serveru RealityMIX.iprima.cz (dále jen „Server“) dostupného na internetové adrese (URL) https://realitymix.iprima.cz, který provozuje společnost DALTEN media s.r.o., se sídlem Na Harfě 916/9a, Praha 9, 190 00, IČO: 271 35 306 (dále jen „Správce“) jako provozovateli tohoto Serveru uděluje svůj výslovný souhlas v souladu s ustanovením § 5 zákona č. 101/2000 Sb. O ochraně osobních údajů a o změně některých zákonů, v platném znění (dále jen „zákon o ochraně osobních údajů“), se zpracováním uživatelem poskytnutých osobních údajů a dalších dat.
Uživatel poskytuje Správci osobní údaje v rozsahu: jméno, příjmení, e-mailová adresa, telefonický kontakt a další data, a to z důvodu projeveného zájmu o nemovitost, kde prostřednictvím služby Serveru Správce osloví Uživatel inzerenta uvedeného v detailu
nemovitosti - DRRS s.r.o. (IČ 09895035) se zájmem o jeho služby.
Uživatel tyto osobní údaje poskytuje dobrovolně a bere na vědomí, že součástí služeb Správce, které Správce Uživateli poskytuje, je vyhledání všech Uživateli vyhovujících (dle parametrů - cena, typ nemovitosti, lokalita atd.) nemovitostí. Správce za tímto účelem provozuje aplikace Hlídací pes a newsletter. Tyto služby je možné z každého zaslaného emailu odhlásit. Souhlas se zpracováním osobních údajů Uživatel poskytuje Správci na dobu neurčitou s tím, že svůj udělený souhlas může Uživatel kdykoliv na drese správce info@realitymix.cz odvolat. Správce garantuje Uživateli i další práva uvedené v ustanovení §11 a §21 zákoba č. 101/200 Sb. Ve znění pozdějších předpisů.
Více informací o zpracování údajů získáte zde (realitymix.cz/zasady-ochrany-osobnich-udaju)