Nabízíme k prodeji zcela nový rodinný dům 4+kk v oblíbené obci Kolová, jen pár minut od Karlových Varů.
Dům je nově dokončený, nikdy neobývaný a připravený k okamžitému nastěhování. Stačí jen dokončit kuchyňskou linku, terénní úpravy a oplocení.
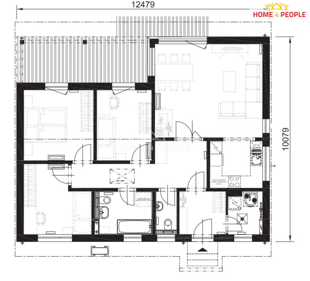
Dům o dispozici 4+kk s užitnou plochou 90 m² stojí na rovinatém pozemku o rozloze přibližně 1 000 m². Součástí je také terasa o velikosti 14,5 m², kterou je potřeba dokončit a parkování je možné přímo na vlastním pozemku. Stavba byla dokončena v roce 2025.
Dispozičně je dům řešen velmi prakticky. Nachází se zde zádveří o výměře 5 m², chodba o velikosti 11 m², samostatné WC o rozloze 2,30 m² a koupelna s dalším WC o velikosti 6 m². Ložnice má 12 m², první pokoj 10 m² a druhý pokoj 9 m². Z obou pokojů je přímý vstup na terasu. Dominantou domu je prostorný obývací pokoj o výměře 24,5 m², na který navazuje kuchyně o velikosti 6,5 m², která je připravená k dokončení podle představ nového majitele. V zadní části domu se nachází technická místnost o rozloze 3,5 m², kde je umístěn bojler a příprava pro další technologie.
Mezi hlavní výhody domu patří to, že se jedná o zcela novou stavbu od českého výrobce, která nabízí kvalitní a úsporné bydlení. Interiér je proveden v nadstandardu – najdete zde vinylové podlahy, antracitové detaily (vypínače, zásuvky, okna). Obývací pokoj doplňuje velké francouzské okno HS - portál s bezbariérovým vstupem na zahradu a současně je v obývacím pokoji možnost instalace krbových kamen. Dům je vybaven trojskly, v každé místnosti klimatizací a podlahovým topením. Kromě toho je zde příprava pro fotovoltaiku, dobíjecí zásuvku pro elektromobil, venkovní žaluzie.
Obec Kolová nabízí klidné bydlení obklopené přírodou, přesto se skvělou dostupností do Karlových Varů. V obci je MHD, škola, obchod, pošta, nedaleko se nachází golfové hřiště a celkově jde o ideální místo pro rodiny i ty, kteří hledají klidné, pohodové bydlení v blízkosti města. V případě dotazů, mě neváhejte kontaktovat. Ev. číslo: 32020.
Cena:
8 990 000 Kč
Číslo zakázky:
REALITYMIX-32020
Podrobné informace
Poloha objektu:samostatný
Druh objektu:dřevěná
Stav objektu:novostavba
Počet podlaží objektu:1
Typ domu:přízemní
Zastavěná plocha:125 m²
Plocha parcely:909 m²
Užitná plocha:90 m²
Voda:Voda - dálkový vodovod
Odpad:Kanalizace
Energetická náročnost budovy:B - Velmi úsporná
Energetický ukazatel podle vyhlášky:č. 78/2013 Sb.
V tomto článku shrneme nejdůležitější věci, které byste si měli promyslet, pokud se chystáte prodat svou nemovitost a chcete, abyste s kupujícím nemusel následně řešit vzniklé problémy.
Jako prodávající nesete rizika spojená nejen se samotným obchodem, ale i se stavem nemovitosti v době prodeje a pro minimalizaci rizik, je dobré se zamyslet nad uvedenými oblastmi.
Realitní makléř má své nezastupitelné místo v realitním obchodu. Realitním makléřem nemyslím nevzdělané jelito, které absolvovalo dvoudenní školení a ví, jak se nahraje inzerát na inzertní portál.
Realitním makléřem, který se Vám skutečně vyplatí, je zkušený profesionál, který je schopen Vám dobře poradit jak prodat za co nejvíc a s nejmenším rizikem a hlavně je Vás schopen obratně provést celým realitním obchodem.
Uživatel serveru RealityMIX.iprima.cz (dále jen „Server“) dostupného na internetové adrese (URL) https://realitymix.iprima.cz, který provozuje společnost DALTEN media s.r.o., se sídlem Na Harfě 916/9a, Praha 9, 190 00, IČO: 271 35 306 (dále jen „Správce“) jako provozovateli tohoto Serveru uděluje svůj výslovný souhlas v souladu s ustanovením § 5 zákona č. 101/2000 Sb. O ochraně osobních údajů a o změně některých zákonů, v platném znění (dále jen „zákon o ochraně osobních údajů“), se zpracováním uživatelem poskytnutých osobních údajů a dalších dat.
Uživatel poskytuje Správci osobní údaje v rozsahu: jméno, příjmení, e-mailová adresa, telefonický kontakt a další data, a to z důvodu projeveného zájmu o nemovitost, kde prostřednictvím služby Serveru Správce osloví Uživatel inzerenta uvedeného v detailu
nemovitosti - HOME 4 PEOPLE (IČ 29132886) se zájmem o jeho služby. Tato společnost je součástí seskupení/sítě/franšízového modelu realitních kanceláří, jejich seznam můžete zobrazit kliknutím na tento odkaz.
Dumrealit.cz (IČ 00537861) , HOME 4 PEOPLE (IČ 29132886) , Reality 11 (IČ 29132886) , REAL ESTATE CZECH REPUBLIC a.s. (IČ 29132886) , Národní Realitní Holding a.s. (IČ 02918897)
Uživatel tyto osobní údaje poskytuje dobrovolně a bere na vědomí, že součástí služeb Správce, které Správce Uživateli poskytuje, je vyhledání všech Uživateli vyhovujících (dle parametrů - cena, typ nemovitosti, lokalita atd.) nemovitostí. Správce za tímto účelem provozuje aplikace Hlídací pes a newsletter. Tyto služby je možné z každého zaslaného emailu odhlásit. Souhlas se zpracováním osobních údajů Uživatel poskytuje Správci na dobu neurčitou s tím, že svůj udělený souhlas může Uživatel kdykoliv na drese správce info@realitymix.cz odvolat. Správce garantuje Uživateli i další práva uvedené v ustanovení §11 a §21 zákoba č. 101/200 Sb. Ve znění pozdějších předpisů.
Více informací o zpracování údajů získáte zde (realitymix.cz/zasady-ochrany-osobnich-udaju)