Rozestavěný rodinný dům 189m2, pozemek 1514m2, Kojetín, Havlíčkův Brod
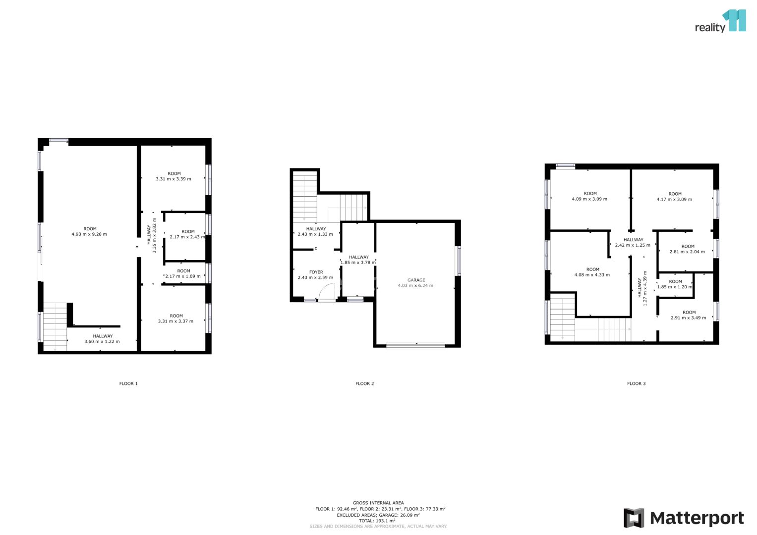
Reality 11 Humpolec Vám exkluzivně zprostředkují koupi rozestavěného rodinného domu v obci Kojetín, která leží pouhých 7 minut jízdy od Města Havlíčkův Brod, Kraj Vysočina. Nemovitost je situována na krásném okrajovém pozemku o celkové výměře 1.514 m², z toho zastavěná plocha stavbou činí 165 m². Dům je připraven k dokončení dle Vašich vlastních představ a nabízí velký potenciál jak pro trvalé bydlení, tak jako bydlení a kombinace s podnikáním. Dispozice domu je velkorysá: 6+kuchyňský kout o celkové podlahové ploše cca 182 m² (součet obytných ploch ze dvou podlaží), ideální pro větší rodinu nebo dvougenerační bydlení. Rozvržení místností a výměry 1.NP (120,8 m² + 6,6 m² schodiště): Zádveří (6,20 m²), Technologie (6,00 m²), Garáž (25,00 m²), Chodba/schodiště (6,60 m²), Obývací pokoj + jídelna + kuchyňský kout (42,70 m²), Spíž (1,60 m²), Chodba (4,40 m²), Pokoj I. (10,80 m²), Pokoj II. (10,80 m²), Koupelna (4,70 m²), samostatné WC (2,10 m²), 2.NP (61,70 m²): Chodba (8,90 m²), Koupelna (7,20 m²), samostatné WC (1,90 m²), Ložnice (12,40 m²), Šatna (5,50 m²), Pokoj III. (13,80 m²), Pokoj IV. (12,00 m²). Zahájení stavby v roce 2021 a poslední stavební úpravy provedeny v roce 2025, dokončeny jsou rozvody vody, elektřiny, odpadů, slaboproudu a síťových prvků, plánované bylo podlahové vytápění. Z inženýrských sítí je do domu zaveden obecní vodovod, odpad je řešen kanalizací s přečerpávací jímky do veřejné kanalizace, plyn je na hranici pozemku. Máme pro Vás k dispozici 3Dvirtuální prohlídku nemovitosti od společnosti 3Dvirtualcz, dále také kompletní projektovou dokumentaci a půdorysy celého objektu. Obec Kojetín se nachází 6 km jihovýchodně od města Havlíčkův Brod, v klidné krajině Českomoravské vrchoviny. Díky výborné dostupnosti autem i autobusem je ideálním místem pro klidné rodinné bydlení s dosahem kompletní občanské vybavenosti v Havlíčkově Brodě (školy, školky, nemocnice, obchody, sportoviště). V případě zájmu o více informací kontaktujte kdykoliv makléře společnosti. Ev. číslo: 27545.
Cena:
7 495 000 Kč
Číslo zakázky:
REALITYMIX-27545
Podrobné informace
Poloha objektu:samostatný
Druh objektu:cihlová
Stav objektu:ve výstavbě (hrubá stavba)
Počet podlaží objektu:2
Typ domu:patrový
Zastavěná plocha:165 m²
Plocha parcely:1514 m²
Zahrada:1349 m²
Užitná plocha:189 m²
Umístění objektu:klidná část obce
Elektřina:Elektro - 400 V
Voda:Voda - dálkový vodovod
Telekomunikace:Telefon
Odpad:Kanalizace
Energetická náročnost budovy:D - Méně úsporná
Ukazatel energetické náročnosti budovy:100 kWh/m²
Energetický ukazatel podle vyhlášky:č. 78/2013 Sb.
V tomto článku shrneme nejdůležitější věci, které byste si měli promyslet, pokud se chystáte prodat svou nemovitost a chcete, abyste s kupujícím nemusel následně řešit vzniklé problémy.
Jako prodávající nesete rizika spojená nejen se samotným obchodem, ale i se stavem nemovitosti v době prodeje a pro minimalizaci rizik, je dobré se zamyslet nad uvedenými oblastmi.
Realitní makléř má své nezastupitelné místo v realitním obchodu. Realitním makléřem nemyslím nevzdělané jelito, které absolvovalo dvoudenní školení a ví, jak se nahraje inzerát na inzertní portál.
Realitním makléřem, který se Vám skutečně vyplatí, je zkušený profesionál, který je schopen Vám dobře poradit jak prodat za co nejvíc a s nejmenším rizikem a hlavně je Vás schopen obratně provést celým realitním obchodem.
Uživatel serveru RealityMIX.iprima.cz (dále jen „Server“) dostupného na internetové adrese (URL) https://realitymix.iprima.cz, který provozuje společnost DALTEN media s.r.o., se sídlem Na Harfě 916/9a, Praha 9, 190 00, IČO: 271 35 306 (dále jen „Správce“) jako provozovateli tohoto Serveru uděluje svůj výslovný souhlas v souladu s ustanovením § 5 zákona č. 101/2000 Sb. O ochraně osobních údajů a o změně některých zákonů, v platném znění (dále jen „zákon o ochraně osobních údajů“), se zpracováním uživatelem poskytnutých osobních údajů a dalších dat.
Uživatel poskytuje Správci osobní údaje v rozsahu: jméno, příjmení, e-mailová adresa, telefonický kontakt a další data, a to z důvodu projeveného zájmu o nemovitost, kde prostřednictvím služby Serveru Správce osloví Uživatel inzerenta uvedeného v detailu
nemovitosti - Reality 11 (IČ 29132886) se zájmem o jeho služby. Tato společnost je součástí seskupení/sítě/franšízového modelu realitních kanceláří, jejich seznam můžete zobrazit kliknutím na tento odkaz.
Dumrealit.cz (IČ 00537861) , HOME 4 PEOPLE (IČ 29132886) , Reality 11 (IČ 29132886) , REAL ESTATE CZECH REPUBLIC a.s. (IČ 29132886) , Národní Realitní Holding a.s. (IČ 02918897)
Uživatel tyto osobní údaje poskytuje dobrovolně a bere na vědomí, že součástí služeb Správce, které Správce Uživateli poskytuje, je vyhledání všech Uživateli vyhovujících (dle parametrů - cena, typ nemovitosti, lokalita atd.) nemovitostí. Správce za tímto účelem provozuje aplikace Hlídací pes a newsletter. Tyto služby je možné z každého zaslaného emailu odhlásit. Souhlas se zpracováním osobních údajů Uživatel poskytuje Správci na dobu neurčitou s tím, že svůj udělený souhlas může Uživatel kdykoliv na drese správce info@realitymix.cz odvolat. Správce garantuje Uživateli i další práva uvedené v ustanovení §11 a §21 zákoba č. 101/200 Sb. Ve znění pozdějších předpisů.
Více informací o zpracování údajů získáte zde (realitymix.cz/zasady-ochrany-osobnich-udaju)