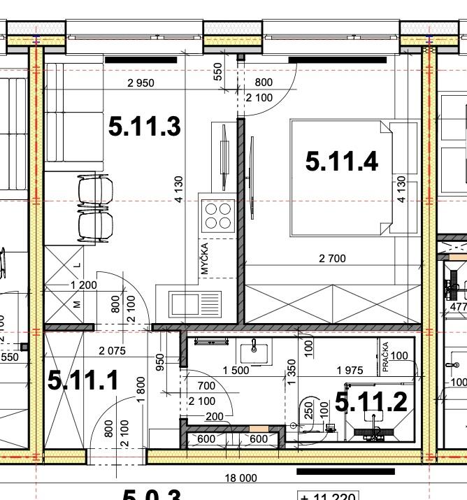
Pronájem bytu 2+kk 32 m and sup2; Wolkerova, Kladno - Kročehlavy
Podnájem nově postaveného ateliéru v Kladně, ulice Wolkerova. Dispozice ateliéru je 2+kk o výměře 32m2 a je umístěný v 5. podlaží domu. Vybavený je kuchyňskou linkou a sporákem. Plovoucí podlaha v obytné místnosti, v chodbě a koupelně dlažba.
Nájemné je u ateliéru 2+kk ve výši 15.000,- + zálohové platby 4.200,-. Celkové měsíční náklady na provoz ateliéru jsou 19.200,-. V nabídce mám více volných ateliérů. Vratná kauce ve výši jednoho měsíčního nájmu bez zálohových plateb. Provize pro RK ve výši jednoho měsíčního nájmu.
Lokalita s dobrou občanskou vybaveností. Upozornění, není možné zřídit trvalé bydliště ani žádat o příspěvky na bydlení.
V případě zájmu o prohlídku mě kontaktujte emailem nebo přes odpovědní formulář. Těším se na viděnou na prohlídce.
Uživatel serveru RealityMIX.iprima.cz (dále jen „Server“) dostupného na internetové adrese (URL) https://realitymix.iprima.cz, který provozuje společnost DALTEN media s.r.o., se sídlem Na Harfě 916/9a, Praha 9, 190 00, IČO: 271 35 306 (dále jen „Správce“) jako provozovateli tohoto Serveru uděluje svůj výslovný souhlas v souladu s ustanovením § 5 zákona č. 101/2000 Sb. O ochraně osobních údajů a o změně některých zákonů, v platném znění (dále jen „zákon o ochraně osobních údajů“), se zpracováním uživatelem poskytnutých osobních údajů a dalších dat.
Uživatel poskytuje Správci osobní údaje v rozsahu: jméno, příjmení, e-mailová adresa, telefonický kontakt a další data, a to z důvodu projeveného zájmu o nemovitost, kde prostřednictvím služby Serveru Správce osloví Uživatel inzerenta uvedeného v detailu
nemovitosti - Ing. Adolf Cír (IČ 73746282) se zájmem o jeho služby.
Uživatel tyto osobní údaje poskytuje dobrovolně a bere na vědomí, že součástí služeb Správce, které Správce Uživateli poskytuje, je vyhledání všech Uživateli vyhovujících (dle parametrů - cena, typ nemovitosti, lokalita atd.) nemovitostí. Správce za tímto účelem provozuje aplikace Hlídací pes a newsletter. Tyto služby je možné z každého zaslaného emailu odhlásit. Souhlas se zpracováním osobních údajů Uživatel poskytuje Správci na dobu neurčitou s tím, že svůj udělený souhlas může Uživatel kdykoliv na drese správce info@realitymix.cz odvolat. Správce garantuje Uživateli i další práva uvedené v ustanovení §11 a §21 zákoba č. 101/200 Sb. Ve znění pozdějších předpisů.
Více informací o zpracování údajů získáte zde (realitymix.cz/zasady-ochrany-osobnich-udaju)