Pronájem novostavby RD 5+kk/2PS, zahrada v Kamenici u Prahy, Ringhofferova ulice
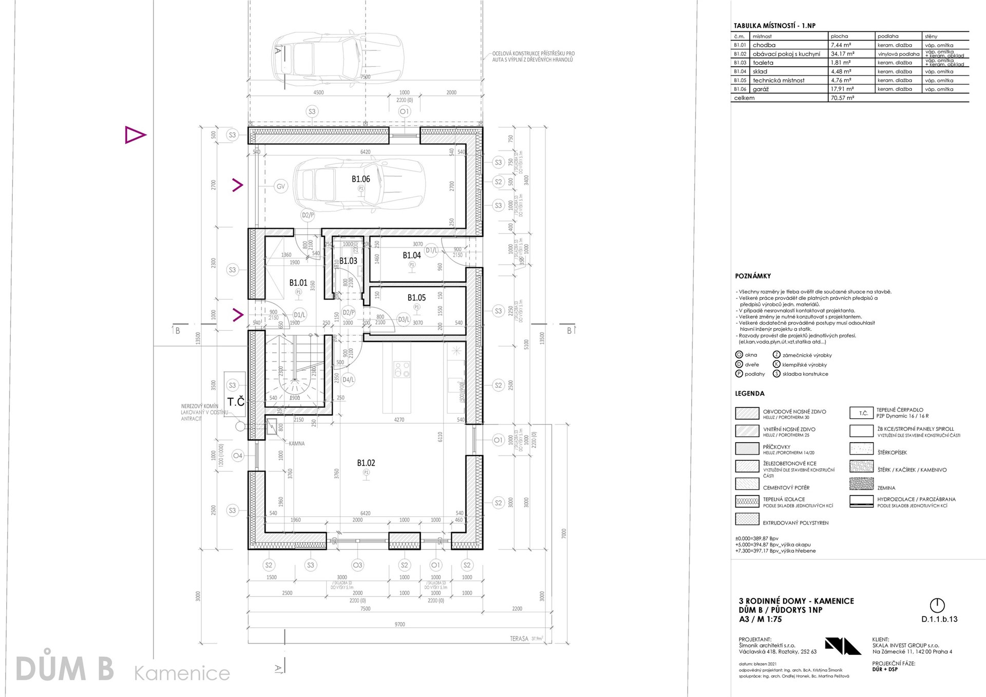
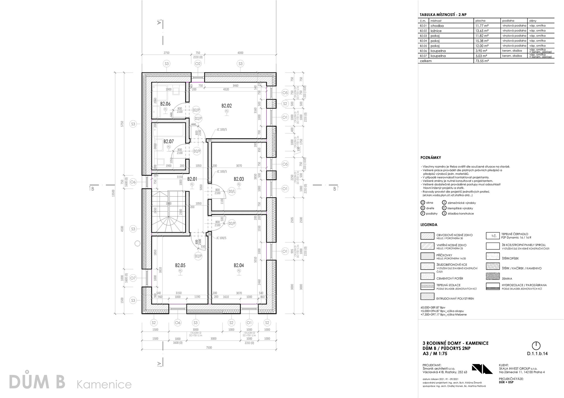
Od 1.1. 2026 nabízíme jedinečnou příležitost pronájmu nového rodinného domu o dispozici 5+kk s garáží, dvěma parkovacími stáními a užitné ploše 189 m². Dům se nachází ve oblíbené lokalitě Kamenice, ulice Ringhofferova.
Jedná se o poslední dům v tomto projektu, který je určený k pronájmu, s označením B nachází se uprostřed projektu.
Moderní dispozice 5+kk:
Prostorný obývací pokoj s velkou moderní kuchyňskou linkou a přímým vstupem na terasu, která obklopuje téměř celý dům. Prezentujeme kuchyni z domu C a dům C, který je již pronajatý. Aktuální dům B a kuchyně bude inzerována po její instalaci začátkem prosince 2025. Domy jsou postavené ve stejném standardu.
Čtyři ložnice – ideální jako rodinné pokoje, pracovny nebo pokoje pro hosty. Z toho jedna s vlastní koupelnou a toaletou.
Vybavení domu:
Podlahové topení a tepelné čerpadlo, které zajistí nízké provozní náklady.
Podlahy pokryté kvalitním vinylem a dlažbou, okna s trojskly pro skvělou tepelnou a zvukovou izolaci.
Rolety na dálkové ovládání na všech oknech, stejně jako garážová vrata.
Pozemek:
Pozemek o rozloze 535 m² s užitkovou zahradou, která je ideální pro relaxaci, dětské hry nebo rodinné oslavy.
Parkování zajištěno – garáž pro jedno auto a další 2 až 3 parkovací místa před domem.
Energetická úspornost:
Energetická třída B garantuje nízké provozní náklady a šetrnost k životnímu prostředí.
Lokalita, která má vše
Klidné prostředí: Kamenice je vyhledávaná rezidenční oblast s krásnou přírodou, lesy a cyklostezkami.
Občanská vybavenost: Mateřská i základní škola, obchody, restaurace, lékaři, pošta a další služby přímo v místě.
Dopravní dostupnost: Rychlé napojení na dálnici D1 a výborné spojení do Prahy.
Pro koho je tento dům ideální?
Rodiny s dětmi, které hledají bezpečné a klidné prostředí s blízkostí škol a volnočasových aktivit.
Lidi, kteří potřebují dostatek prostoru pro práci z domova.
Páry nebo jednotlivce, kteří ocení moderní bydlení s dostatkem soukromí.
Cena a podmínky pronájmu
Měsíční nájemné: 55.000 Kč
Poplatky a služby: 7.500 Kč/měsíc
Kauce: 165.000 Kč
Provize RK: 55.000 Kč
Dům je nabízen k dlouhodobému pronájmu minimálně na 1 rok.
Neváhejte nás kontaktovat a domluvte si prohlídku. Tento dům vás okouzlí svým pohodlím, moderním designem a atmosférou klidné lokality v Kamenici.
Cena:
55 000 Kč / (za měsíc)
Datum k nastěhování:
01.01.2026
Číslo zakázky:
REALITYMIX-970474
Podrobné informace
Poloha objektu:samostatný
Druh objektu:cihlová
Stav objektu:novostavba
Počet podlaží objektu:2
Typ domu:patrový
Zastavěná plocha:101 m²
Plocha parcely:535 m²
Zahrada:535 m²
Užitná plocha:183 m²
Terasa:40 m²
Ostatní:Garáž
Doprava:dálnice, silnice
Elektřina:Elektro - 230 V, Elektro - 380 V
Voda:Zdroj pro celý objekt, Voda - dálkový vodovod
Telekomunikace:Internet
Plyn:Plynovod
Odpad:Kanalizace
Energetická náročnost budovy:B - Velmi úsporná
Energetický ukazatel podle vyhlášky:č. 78/2013 Sb.
Uživatel serveru RealityMIX.iprima.cz (dále jen „Server“) dostupného na internetové adrese (URL) https://realitymix.iprima.cz, který provozuje společnost DALTEN media s.r.o., se sídlem Na Harfě 916/9a, Praha 9, 190 00, IČO: 271 35 306 (dále jen „Správce“) jako provozovateli tohoto Serveru uděluje svůj výslovný souhlas v souladu s ustanovením § 5 zákona č. 101/2000 Sb. O ochraně osobních údajů a o změně některých zákonů, v platném znění (dále jen „zákon o ochraně osobních údajů“), se zpracováním uživatelem poskytnutých osobních údajů a dalších dat.
Uživatel poskytuje Správci osobní údaje v rozsahu: jméno, příjmení, e-mailová adresa, telefonický kontakt a další data, a to z důvodu projeveného zájmu o nemovitost, kde prostřednictvím služby Serveru Správce osloví Uživatel inzerenta uvedeného v detailu
nemovitosti - Vilímková Reality (IČ 45296081) se zájmem o jeho služby.
Uživatel tyto osobní údaje poskytuje dobrovolně a bere na vědomí, že součástí služeb Správce, které Správce Uživateli poskytuje, je vyhledání všech Uživateli vyhovujících (dle parametrů - cena, typ nemovitosti, lokalita atd.) nemovitostí. Správce za tímto účelem provozuje aplikace Hlídací pes a newsletter. Tyto služby je možné z každého zaslaného emailu odhlásit. Souhlas se zpracováním osobních údajů Uživatel poskytuje Správci na dobu neurčitou s tím, že svůj udělený souhlas může Uživatel kdykoliv na drese správce info@realitymix.cz odvolat. Správce garantuje Uživateli i další práva uvedené v ustanovení §11 a §21 zákoba č. 101/200 Sb. Ve znění pozdějších předpisů.
Více informací o zpracování údajů získáte zde (realitymix.cz/zasady-ochrany-osobnich-udaju)