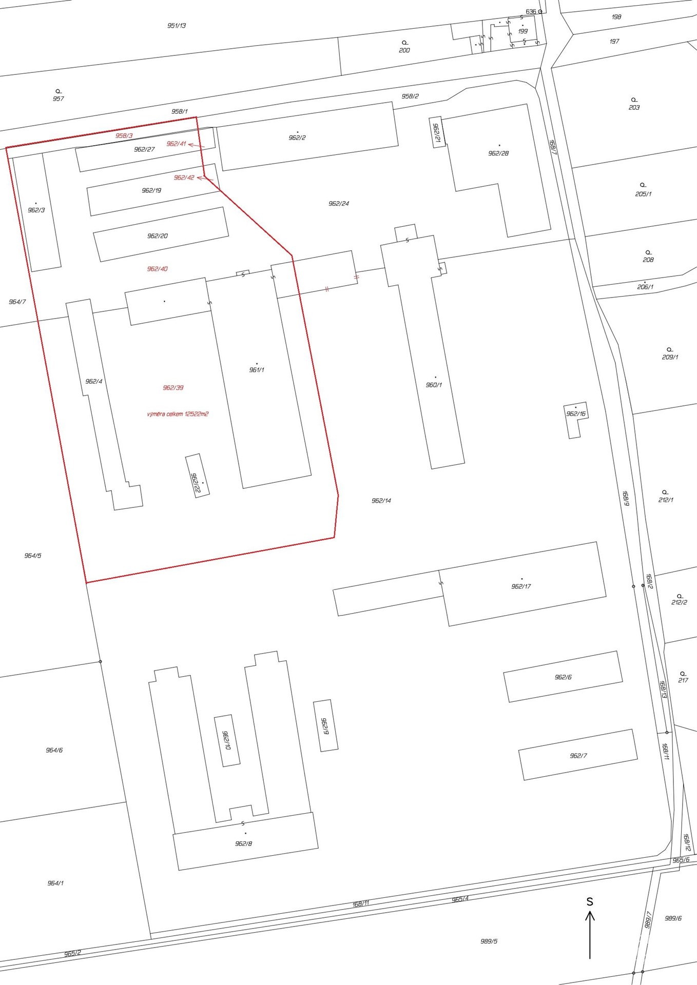
Nabízíme k prodeji část zemědělského areálu v obci Jasenná (Jaroměř 9 km, Hradec Králové 20 km).
Celková plocha prodávaných pozemků je 12 522 m², celková zastavěná plocha je do 2 100 m². Jedná se o rovinatý pozemek a dvě budovy. Jedna je bývalý kravín, který byl ještě v roce 2022 funkční, druhá budova je hned vedle, není uzavřená, má vysoké stropy (cca 10 m), je zde nová plechová střecha. Obě budovy jsou nevytápěné. V areálu je částečně zpevněná plocha položenými panely a na některých místech zeleň. Na pozemku se nachází vrtaná studna (cca 50 m hluboká), která slouží pro celý areál. Odpadní voda je vyvedena do septiku.
Využití areálu dle plánovaného územního plánu je určené pro výrobu zemědělskou a lesnickou.
Přípustné využití je:
> Pozemky, stavby a zařízení výroby zemědělské, rostlinné a živočišné
> Pozemky, stavby a zařízení administrativy, služeb, výroby nezemědělské
> Pozemky, stavby a zařízení veterinární péče
> Pozemky, stavby a zařízení pro skladování
> Pozemky, stavby a zařízení pro pěstování rostlin a prodej výpěstků, skleníky
> Pozemky, stavby a zařízení pro odstavování a servis zemědělské techniky
> Stavy a zařízení správních a administrativních činností pro konkrétní areál, plochy zeleně
> Pozemky, stavby a zařízení dopravní a technické infrastruktury pro obsluhu řešeného území
> Pozemky, stavby a zařízení pro ochranu území (protipovodňová, protierozní opatření apod.)
> Plocha a zařízení pro kompostování
Podmínečně přípustné využití je:
> Pozemky, stavby a zařízení občanského vybavení komerčního, pokud podmínkami jejich využití nebude omezováno hlavní využití
> Fotovoltaické elektrárny za podmínky, že zde nejsou umisťovány na ZPF
> Umístění nových staveb pro zemědělskou výrobu v areálu VZ situovaném na východním okraji zastavěného území Jasenné je podmíněno realizací souvislého pásu pohledově izolační zeleně v min. šíři 10m.
Rádi Vám sdělíme bližší informace či Vás areálem provedeme.
V tomto článku shrneme nejdůležitější věci, které byste si měli promyslet, pokud se chystáte prodat svou nemovitost a chcete, abyste s kupujícím nemusel následně řešit vzniklé problémy.
Jako prodávající nesete rizika spojená nejen se samotným obchodem, ale i se stavem nemovitosti v době prodeje a pro minimalizaci rizik, je dobré se zamyslet nad uvedenými oblastmi.
Realitní makléř má své nezastupitelné místo v realitním obchodu. Realitním makléřem nemyslím nevzdělané jelito, které absolvovalo dvoudenní školení a ví, jak se nahraje inzerát na inzertní portál.
Realitním makléřem, který se Vám skutečně vyplatí, je zkušený profesionál, který je schopen Vám dobře poradit jak prodat za co nejvíc a s nejmenším rizikem a hlavně je Vás schopen obratně provést celým realitním obchodem.
Uživatel serveru RealityMIX.iprima.cz (dále jen „Server“) dostupného na internetové adrese (URL) https://realitymix.iprima.cz, který provozuje společnost DALTEN media s.r.o., se sídlem Na Harfě 916/9a, Praha 9, 190 00, IČO: 271 35 306 (dále jen „Správce“) jako provozovateli tohoto Serveru uděluje svůj výslovný souhlas v souladu s ustanovením § 5 zákona č. 101/2000 Sb. O ochraně osobních údajů a o změně některých zákonů, v platném znění (dále jen „zákon o ochraně osobních údajů“), se zpracováním uživatelem poskytnutých osobních údajů a dalších dat.
Uživatel poskytuje Správci osobní údaje v rozsahu: jméno, příjmení, e-mailová adresa, telefonický kontakt a další data, a to z důvodu projeveného zájmu o nemovitost, kde prostřednictvím služby Serveru Správce osloví Uživatel inzerenta uvedeného v detailu
nemovitosti - reality VAŠATOVÁ s.r.o. (IČ 27535690) se zájmem o jeho služby.
Uživatel tyto osobní údaje poskytuje dobrovolně a bere na vědomí, že součástí služeb Správce, které Správce Uživateli poskytuje, je vyhledání všech Uživateli vyhovujících (dle parametrů - cena, typ nemovitosti, lokalita atd.) nemovitostí. Správce za tímto účelem provozuje aplikace Hlídací pes a newsletter. Tyto služby je možné z každého zaslaného emailu odhlásit. Souhlas se zpracováním osobních údajů Uživatel poskytuje Správci na dobu neurčitou s tím, že svůj udělený souhlas může Uživatel kdykoliv na drese správce info@realitymix.cz odvolat. Správce garantuje Uživateli i další práva uvedené v ustanovení §11 a §21 zákoba č. 101/200 Sb. Ve znění pozdějších předpisů.
Více informací o zpracování údajů získáte zde (realitymix.cz/zasady-ochrany-osobnich-udaju)