Prodej bytu 3+KK v novostavbě v Jablonném v Podještědí
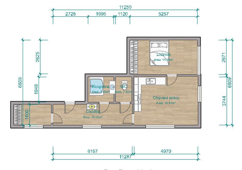
Nabízíme k prodeji byt č.17 v novostavbě bytového domu o velikostí 54m2 ve 2 NP - byt v osobním vlastnictví či možností družst. vlastnictví.
Dům je aktuálně zkolaudován a připraven na předání bytů a k nastěhování nových majitelů. Byty jsou dokončeny a jsou v kolaudačním řízení.
Park. stání nabízí možnost nabíjení elektro-automobilů jelikož disponuje přípravou na elektro - nabíjecí stanice.
V nově vystavěném čtyřpatrovém bytovém domě v obci Jablonné v Podještědí. Novostavbu se 3NP o 20 bytových jednotek s dispozicí 2+KK (prostorný obývací pokoj s kuch. koutem, ložnice, samostatným WC a koupelnou) a 2 bytových jednotek 3+KK ((prostorný obývací poko s kuch.koutemj, ložnice, pracovna, samostatným WC a koupelnou). Nabízíme investiční příležitost na pořízení nemovitosti k trvalému bydlení či prázdninového bytu na překrásném místě v Jablonném v Podještědí.
Byty jsou prodávány včetně sanitárního zařízení koupelny, vinylových podlah, dveřních obložek a přípravy na kuchyňskou linku. Převážná většina bytů má okna orientována na jih.
Vytápění v bytech je řešeno podlahovým topením ( regulace je v obývací místnosti každého bytu) a to včetně společných chodeb.
Topení a ohřev vody je zajištěn centrálním plynovým kotlem pro celý dům. Ke každému bytu náleží sklep a ve společných prostorách bude k dispozici kočárkárna a technická místnost. Ke každému bytu náleží vyhrazené parkovací stání u domu – na pozemku ve spoluvlastnickém podílu.
Bydlení v tomto domě je díky vysokým standardům nových technologiích a kvalitních stavebních materiálů je nízkonákladové bydlení – energetická náročnost „B“.
Dům jako takový disponuje přípravou na tepelné čerpadlo a přípravou pěti nabíjecích automobilových stanic na parkovacím stání. V každém bytě je instalováno připojení internetu a TV. Kuchyně není součást prodeje bytu.
Dům je umístěn v klidné části historického centra, které je městskou památkovou zónou. V místě je škola, mateřská školka, síť obchodů, autobusová zastávka a vlakové nádraží jsou v docházkové vzdálenosti. Obec Jablonné v Podještědí je 17min. pohodlné cesty autem do Liberce, za nákupy do Žitavy či do Polska.
Přijďte se sami přesvědčit o výhodách nové výstavby a jak se v tomto bytovém domě budete cítit.
V případě zájmu o bližší informace k bytům, prohlídku nebo vašich možnostem čerpání hypotečního úvěru či družstevního úvěru se zajímavou sazbou za nejlepších podmínek vyřídíme zcela zdarma.
Pro více informací kontaktujte makléře nabídky.
V tomto článku shrneme nejdůležitější věci, které byste si měli promyslet, pokud se chystáte prodat svou nemovitost a chcete, abyste s kupujícím nemusel následně řešit vzniklé problémy.
Jako prodávající nesete rizika spojená nejen se samotným obchodem, ale i se stavem nemovitosti v době prodeje a pro minimalizaci rizik, je dobré se zamyslet nad uvedenými oblastmi.
Realitní makléř má své nezastupitelné místo v realitním obchodu. Realitním makléřem nemyslím nevzdělané jelito, které absolvovalo dvoudenní školení a ví, jak se nahraje inzerát na inzertní portál.
Realitním makléřem, který se Vám skutečně vyplatí, je zkušený profesionál, který je schopen Vám dobře poradit jak prodat za co nejvíc a s nejmenším rizikem a hlavně je Vás schopen obratně provést celým realitním obchodem.
Uživatel serveru RealityMIX.iprima.cz (dále jen „Server“) dostupného na internetové adrese (URL) https://realitymix.iprima.cz, který provozuje společnost DALTEN media s.r.o., se sídlem Na Harfě 916/9a, Praha 9, 190 00, IČO: 271 35 306 (dále jen „Správce“) jako provozovateli tohoto Serveru uděluje svůj výslovný souhlas v souladu s ustanovením § 5 zákona č. 101/2000 Sb. O ochraně osobních údajů a o změně některých zákonů, v platném znění (dále jen „zákon o ochraně osobních údajů“), se zpracováním uživatelem poskytnutých osobních údajů a dalších dat.
Uživatel poskytuje Správci osobní údaje v rozsahu: jméno, příjmení, e-mailová adresa, telefonický kontakt a další data, a to z důvodu projeveného zájmu o nemovitost, kde prostřednictvím služby Serveru Správce osloví Uživatel inzerenta uvedeného v detailu
nemovitosti - Reality Kříž (IČ 41167031) se zájmem o jeho služby.
Uživatel tyto osobní údaje poskytuje dobrovolně a bere na vědomí, že součástí služeb Správce, které Správce Uživateli poskytuje, je vyhledání všech Uživateli vyhovujících (dle parametrů - cena, typ nemovitosti, lokalita atd.) nemovitostí. Správce za tímto účelem provozuje aplikace Hlídací pes a newsletter. Tyto služby je možné z každého zaslaného emailu odhlásit. Souhlas se zpracováním osobních údajů Uživatel poskytuje Správci na dobu neurčitou s tím, že svůj udělený souhlas může Uživatel kdykoliv na drese správce info@realitymix.cz odvolat. Správce garantuje Uživateli i další práva uvedené v ustanovení §11 a §21 zákoba č. 101/200 Sb. Ve znění pozdějších předpisů.
Více informací o zpracování údajů získáte zde (realitymix.cz/zasady-ochrany-osobnich-udaju)