Na základě výhradního zastoupení majitelů Vám nabízíme prodej 100% obchodních podílů společností vlastnící nemovitost - rohový polyfunkční dům v samém centru Hodonína na rohu ul. Velkomoravská 1 a Národní třída. Nemovitost je aktuálně z 80% pronajata s dlouhodobými nájemními smlouvami. Zbývající část nemovitosti není obsazena z důvodu plánované rekonstrukce 3.NP s vizí přebudování na byty/studia.
Zastavěná plocha nemovitosti: 729 m2
Podlahová plocha nemovitosti: 2310 m2
Užitná plocha nemovitosti: 1790 m2
Nemovitost postavena v letech 1907-1907 jako Šternův palác je situována jako třípodlažní cihlová víceúčelová budova s výtahem a bezbariérovým vstupem, Dům je je kompletně podsklepen.
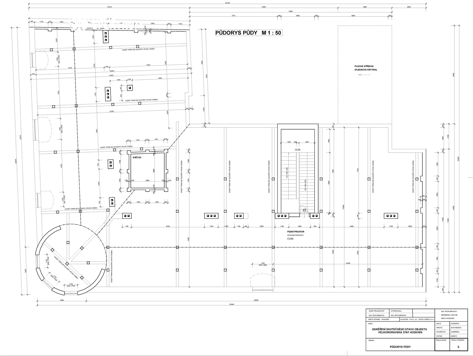
Obrovský potenciál skýtá i půdní prostor ve kterém by bylo možné, po schválení stavebním úřadem, vybudovat až 7 bytových jednotek a navýšit tak užitnou plochu nemovitosti o dalších cca 400 m2.
Podlahové plochy:
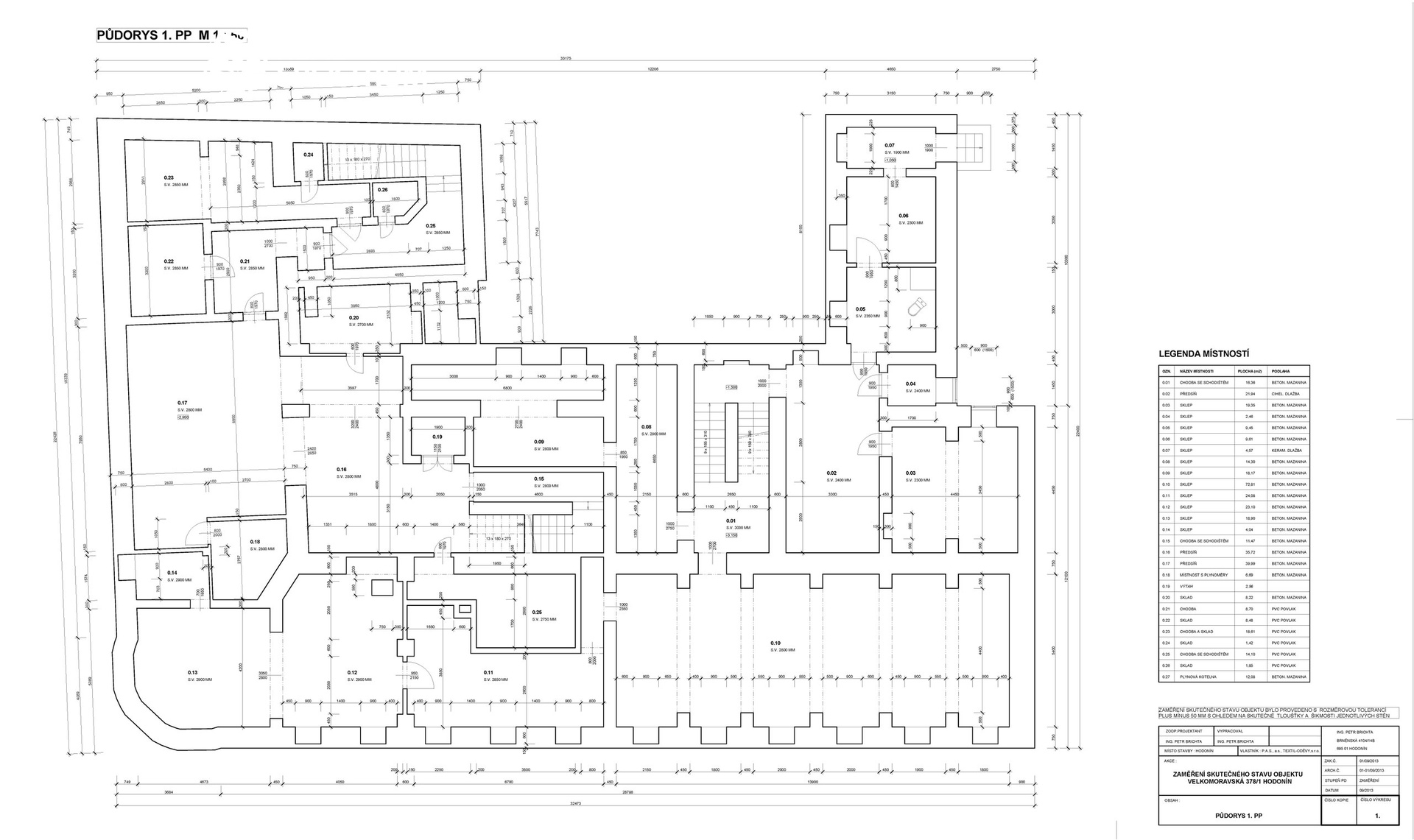
1.PP - 430m2 – skladové prostory, z větší části nevyužité
1.NP - 510m2 – obchodní prostory – 3 provozovny (papírnictví, lékárna, textil)
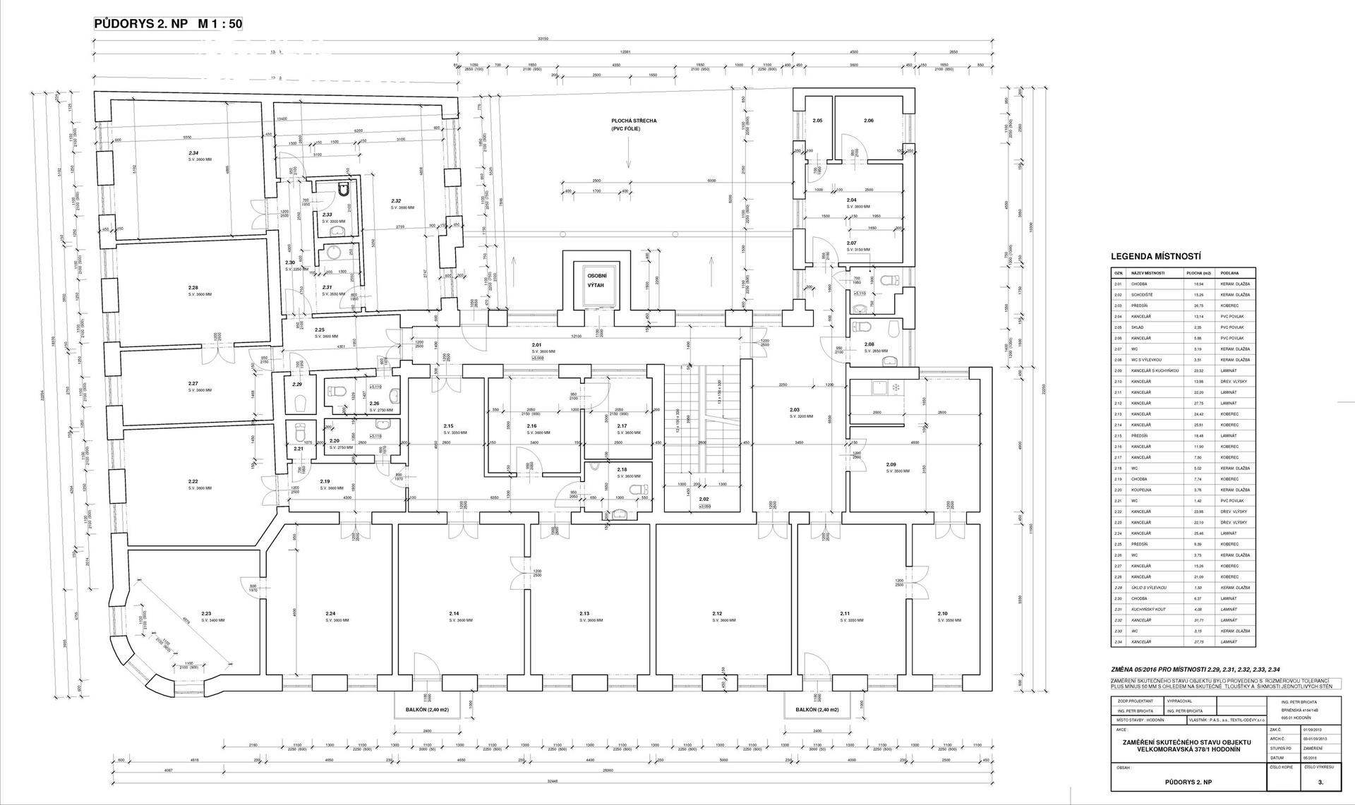
2.NP - 420m2 – advokátní kanceláře, notář, masáže, služby
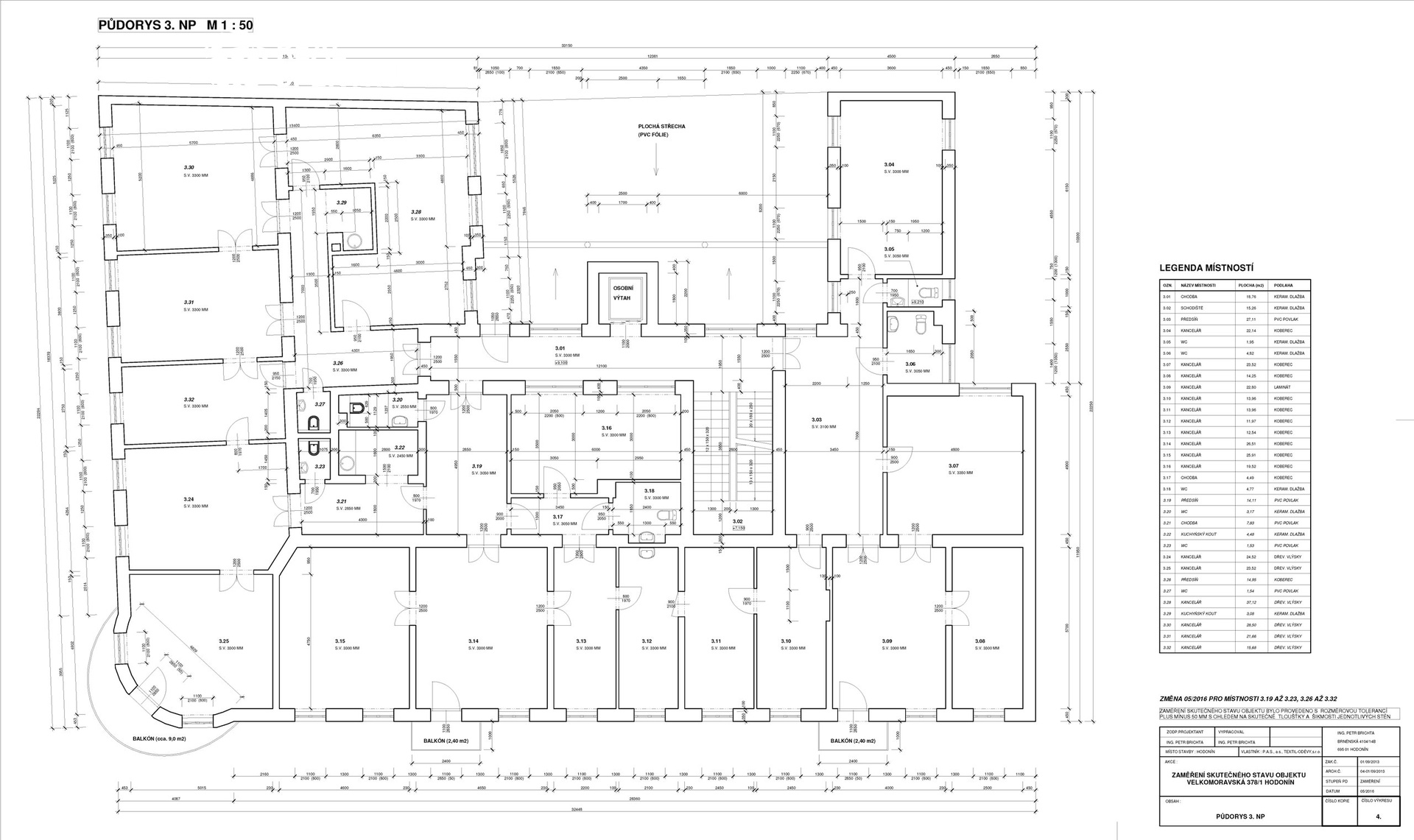
3.NP - 430m2 – kanceláře, služby + část podlaží volná z důvodu plánového přebudování na 4 ateliéry
4.NP – 400 m2 – volný půdní prostor
- ostatní plochy cca: 120m2 - chodby a schodiště
Poslední provedené opravy, rekonstrukce, modernizace:
- 2009 přestavba komerční jednotky (nynějšího papírnictví ) – rozšíření o dvorní prostory a vybudování osobního výtahu
- 2013 výměna výkladců včetně vstupních dveří a většiny oken
- 2014 dokončení uliční fasády včetně zateplení pláště budovy
- 2016 průběžná revitalizace vnitřních prostor – výměna podlah, zateplení stropů, výměna elektroinstalace
Bližší informace o prodeji obchodních podílů, výměrách, obsazenosti a výnosnosti Vám rád poskytnu po telefonu či
osobně v naší realitní kanceláři.
PENB skupiny E (po zateplení dvorního traktu a izolaci půdních prostor)
V tomto článku shrneme nejdůležitější věci, které byste si měli promyslet, pokud se chystáte prodat svou nemovitost a chcete, abyste s kupujícím nemusel následně řešit vzniklé problémy.
Jako prodávající nesete rizika spojená nejen se samotným obchodem, ale i se stavem nemovitosti v době prodeje a pro minimalizaci rizik, je dobré se zamyslet nad uvedenými oblastmi.
Realitní makléř má své nezastupitelné místo v realitním obchodu. Realitním makléřem nemyslím nevzdělané jelito, které absolvovalo dvoudenní školení a ví, jak se nahraje inzerát na inzertní portál.
Realitním makléřem, který se Vám skutečně vyplatí, je zkušený profesionál, který je schopen Vám dobře poradit jak prodat za co nejvíc a s nejmenším rizikem a hlavně je Vás schopen obratně provést celým realitním obchodem.
Uživatel serveru RealityMIX.iprima.cz (dále jen „Server“) dostupného na internetové adrese (URL) https://realitymix.iprima.cz, který provozuje společnost DALTEN media s.r.o., se sídlem Na Harfě 916/9a, Praha 9, 190 00, IČO: 271 35 306 (dále jen „Správce“) jako provozovateli tohoto Serveru uděluje svůj výslovný souhlas v souladu s ustanovením § 5 zákona č. 101/2000 Sb. O ochraně osobních údajů a o změně některých zákonů, v platném znění (dále jen „zákon o ochraně osobních údajů“), se zpracováním uživatelem poskytnutých osobních údajů a dalších dat.
Uživatel poskytuje Správci osobní údaje v rozsahu: jméno, příjmení, e-mailová adresa, telefonický kontakt a další data, a to z důvodu projeveného zájmu o nemovitost, kde prostřednictvím služby Serveru Správce osloví Uživatel inzerenta uvedeného v detailu
nemovitosti - REAL SPEKTRUM, a.s. (IČ 25314718) se zájmem o jeho služby.
Uživatel tyto osobní údaje poskytuje dobrovolně a bere na vědomí, že součástí služeb Správce, které Správce Uživateli poskytuje, je vyhledání všech Uživateli vyhovujících (dle parametrů - cena, typ nemovitosti, lokalita atd.) nemovitostí. Správce za tímto účelem provozuje aplikace Hlídací pes a newsletter. Tyto služby je možné z každého zaslaného emailu odhlásit. Souhlas se zpracováním osobních údajů Uživatel poskytuje Správci na dobu neurčitou s tím, že svůj udělený souhlas může Uživatel kdykoliv na drese správce info@realitymix.cz odvolat. Správce garantuje Uživateli i další práva uvedené v ustanovení §11 a §21 zákoba č. 101/200 Sb. Ve znění pozdějších předpisů.
Více informací o zpracování údajů získáte zde (realitymix.cz/zasady-ochrany-osobnich-udaju)