Rodinný dům(4+1) (174m²) s garáží(2auta) a zahradou ve Františkových Lázních na prodej
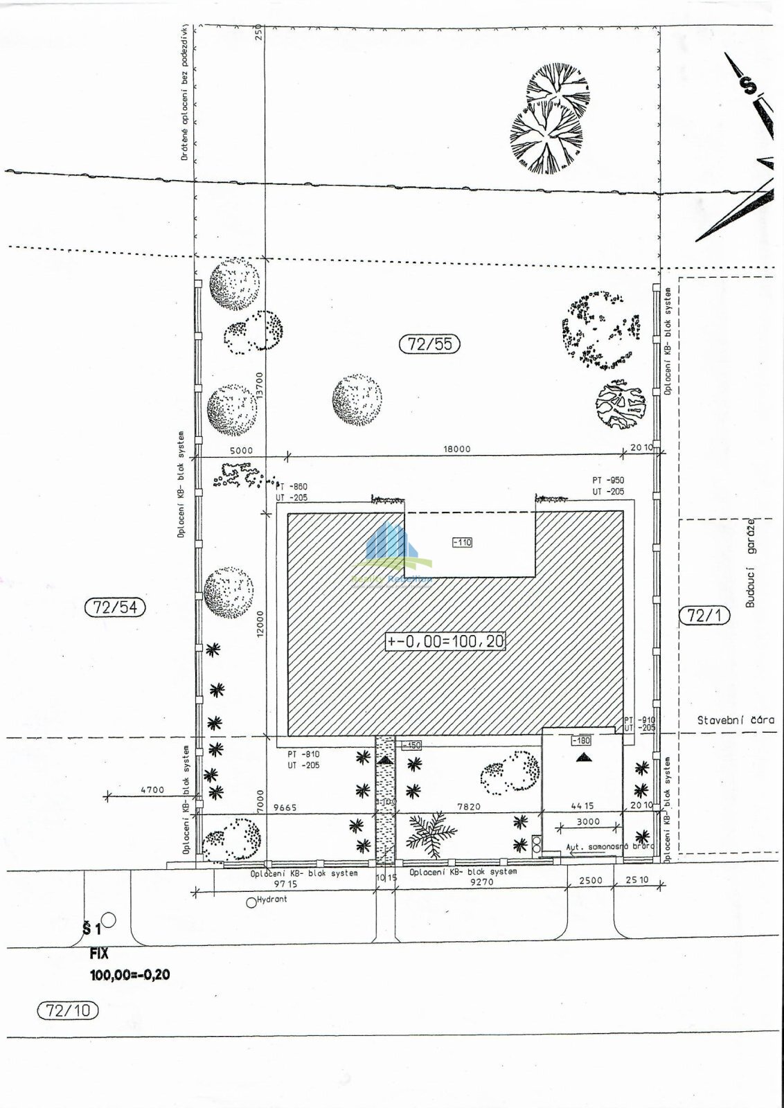
Jednopodlažní rodinný dům s dispozicí 4+1 a garáží pro 2 automobily se zastavěnou plochou 212m² a zahradou 912 m².
Rodinný dům je přízemní (nepodsklepený), s hlavním vstupem do šatny, dále do technické místnosti, extra WC a obývacího pokoje. Na vstupní chodbu volně navazuje chodba se vstupy do dalších 3 pokojů a do koupelny se sprchovým koutem a WC. Hlavní dominantou obývacího pokoje je obytný prostor s krbem na dřevo a přímým vstupem na terasu.
Z obývacího pokoje je také vstup do kuchyně, kde je na míru postavená kuchyňská linka – vybavení myčka nádobí, lednice, sklokeramická deska, el. trouba, digestoř…
Intergrovaná garáž s vraty na dálkové ovládání s parkováním pro 2 automobily za sebou není s domem komunikačně propojena, ale je z ní vstup na krytou terasu, kam lze rovněž vstoupit z ložnice a obývacího pokoje. Z garáže lze po skládacích kovových schodech vystoupit do neupraveného podkrovního prostoru, kde lze vybudovat další bytovou jednotku nebo využít jako velkorysý úložný prostor. Kromě garáže je možno parkovat 3 automobily na vlastním pozemku a další před domem na veřejné komunikaci.
Podlahy jsou kombinací dlažby a PVC. V předsíni a koupelně je tepelná podlahová smyčka. Topení je zajištěné jak plynovým kotlem – radiátory, tak krbem umístěným v obývacím pokoji.
Na zdech mnichovská omítka.
Okna jsou plastová se žaluziemi. Dům je postaven z POROTHERMU, izolace polystyren, stropy jsou s vložkami Miako. Krov je vázaný dřevěný valbový se stojatou stolicí, uspořádaný do věnce. Krytina betonová BRAMAC- alpská taška břidlicově černá. Komínové těleso SCHIEDEL se dvěma průduchy pro krb a plynový kotel. Do každé místnosti je svod internetu. Instalace Skylinku i Sauronu (satelity) jsou součástí prodeje.
Na zahradě je zastřešená terasa, kde je položená venkovní dlažba.
Nemovitost se nachází v klidné lokalitě Františkových Lázních s dobrou dopravní dostupností.
Tento rodinný dům je ideální volbou pro ty, kteří hledají kombinaci, komfortu a klidného prostředí. Okolí je rovněž bohaté na krásnou přírodu a rekreační možnosti, a přesto zůstává pohodlně dostupné do nedalekého Chebu nebo Německa.
Pro více informací nebo sjednání prohlídky nás neváhejte kontaktovat.
Zdarma Vám zajistíme financování nemovitosti. Více na tel. 602961353.
PENB E
V tomto článku shrneme nejdůležitější věci, které byste si měli promyslet, pokud se chystáte prodat svou nemovitost a chcete, abyste s kupujícím nemusel následně řešit vzniklé problémy.
Jako prodávající nesete rizika spojená nejen se samotným obchodem, ale i se stavem nemovitosti v době prodeje a pro minimalizaci rizik, je dobré se zamyslet nad uvedenými oblastmi.
Realitní makléř má své nezastupitelné místo v realitním obchodu. Realitním makléřem nemyslím nevzdělané jelito, které absolvovalo dvoudenní školení a ví, jak se nahraje inzerát na inzertní portál.
Realitním makléřem, který se Vám skutečně vyplatí, je zkušený profesionál, který je schopen Vám dobře poradit jak prodat za co nejvíc a s nejmenším rizikem a hlavně je Vás schopen obratně provést celým realitním obchodem.
Uživatel serveru RealityMIX.iprima.cz (dále jen „Server“) dostupného na internetové adrese (URL) https://realitymix.iprima.cz, který provozuje společnost DALTEN media s.r.o., se sídlem Na Harfě 916/9a, Praha 9, 190 00, IČO: 271 35 306 (dále jen „Správce“) jako provozovateli tohoto Serveru uděluje svůj výslovný souhlas v souladu s ustanovením § 5 zákona č. 101/2000 Sb. O ochraně osobních údajů a o změně některých zákonů, v platném znění (dále jen „zákon o ochraně osobních údajů“), se zpracováním uživatelem poskytnutých osobních údajů a dalších dat.
Uživatel poskytuje Správci osobní údaje v rozsahu: jméno, příjmení, e-mailová adresa, telefonický kontakt a další data, a to z důvodu projeveného zájmu o nemovitost, kde prostřednictvím služby Serveru Správce osloví Uživatel inzerenta uvedeného v detailu
nemovitosti - REBELLION s.r.o. (IČ 26357330) se zájmem o jeho služby.
Uživatel tyto osobní údaje poskytuje dobrovolně a bere na vědomí, že součástí služeb Správce, které Správce Uživateli poskytuje, je vyhledání všech Uživateli vyhovujících (dle parametrů - cena, typ nemovitosti, lokalita atd.) nemovitostí. Správce za tímto účelem provozuje aplikace Hlídací pes a newsletter. Tyto služby je možné z každého zaslaného emailu odhlásit. Souhlas se zpracováním osobních údajů Uživatel poskytuje Správci na dobu neurčitou s tím, že svůj udělený souhlas může Uživatel kdykoliv na drese správce info@realitymix.cz odvolat. Správce garantuje Uživateli i další práva uvedené v ustanovení §11 a §21 zákoba č. 101/200 Sb. Ve znění pozdějších předpisů.
Více informací o zpracování údajů získáte zde (realitymix.cz/zasady-ochrany-osobnich-udaju)