Hledáte nový domov v klidné lokalitě, odkud to máte všude kousek?
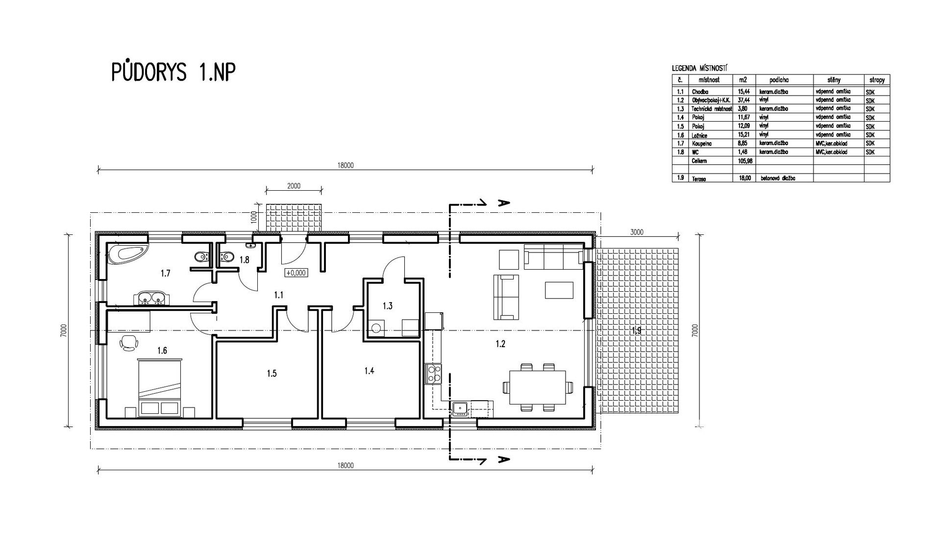
V Držovicích u Prostějova vzniká moderní rodinný dům 4+kk o podlahové ploše 95 m², který bude stát na krásném pozemku o velikosti 619 m².
Tahle nabídka spojuje moderní architekturu, úsporné technologie a jistotu kompletní realizace na klíč — bez běhání po úřadech, bez řešení stavebních starostí.
Navíc si můžete vybrat, zda chcete dřevostavbu s rekuperací a solárním ohřevem vody, nebo zděnou variantu Porfix. (Cena v inzerátu je za dřevostavbu, zděná varianta je za 8 490 000 Kč.)
Proč právě Držovice?
- velmi žádaná obec hned u Prostějova – autem jste ve městě za pár minut
- výborná dostupnost na dálnici D46 – ideální pro denní dojíždění do Olomouce i Vyškova
- klidná ulice mimo hlavní tahy, minimum provozu
- v obci je kvalitní občanská vybavenost, parky i sportovní vyžití
- lokalita vhodná pro rodiny, joggery i majitele psů
Co získáte?
- kompletní realizaci domu na klíč prověřenou stavební firmou
- projektovou dokumentaci a stavební povolení v ceně
- energeticky úsporný dům (PENB B – velmi úsporná)
- tepelné čerpadlo vzduch–voda + podlahové vytápění pro minimální provozní náklady
- pozemek v tiché části obce s rychlou dostupností do města
- kompletní právní a administrativní servis
Jak probíhá výstavba?
- Nemusíte řešit jediný technický detail.
- Zajistíme komunikaci s úřady, realizaci stavby, technický dozor i finální předání.
Výstavba začíná po podpisu dokumentace, což vám umožní upravit vybrané části projektu podle sebe — dispozice, barvy,
materiály.
Ihned po podpisu je možné převést vlastnické právo na pozemek.
K nastěhování ve 2. polovině roku 2026.
Tento projekt je ideální pro každého, kdo chce moderní, úsporné a bezstarostné bydlení v lokalitě, kde je klid i skvělá dostupnost do města.
Pro více informací nebo domluvu schůzky mě neváhejte kontaktovat.
V tomto článku shrneme nejdůležitější věci, které byste si měli promyslet, pokud se chystáte prodat svou nemovitost a chcete, abyste s kupujícím nemusel následně řešit vzniklé problémy.
Jako prodávající nesete rizika spojená nejen se samotným obchodem, ale i se stavem nemovitosti v době prodeje a pro minimalizaci rizik, je dobré se zamyslet nad uvedenými oblastmi.
Realitní makléř má své nezastupitelné místo v realitním obchodu. Realitním makléřem nemyslím nevzdělané jelito, které absolvovalo dvoudenní školení a ví, jak se nahraje inzerát na inzertní portál.
Realitním makléřem, který se Vám skutečně vyplatí, je zkušený profesionál, který je schopen Vám dobře poradit jak prodat za co nejvíc a s nejmenším rizikem a hlavně je Vás schopen obratně provést celým realitním obchodem.
Uživatel serveru RealityMIX.iprima.cz (dále jen „Server“) dostupného na internetové adrese (URL) https://realitymix.iprima.cz, který provozuje společnost DALTEN media s.r.o., se sídlem Na Harfě 916/9a, Praha 9, 190 00, IČO: 271 35 306 (dále jen „Správce“) jako provozovateli tohoto Serveru uděluje svůj výslovný souhlas v souladu s ustanovením § 5 zákona č. 101/2000 Sb. O ochraně osobních údajů a o změně některých zákonů, v platném znění (dále jen „zákon o ochraně osobních údajů“), se zpracováním uživatelem poskytnutých osobních údajů a dalších dat.
Uživatel poskytuje Správci osobní údaje v rozsahu: jméno, příjmení, e-mailová adresa, telefonický kontakt a další data, a to z důvodu projeveného zájmu o nemovitost, kde prostřednictvím služby Serveru Správce osloví Uživatel inzerenta uvedeného v detailu
nemovitosti - Prosperity Financial Services a.s. (IČ 02745836) se zájmem o jeho služby. Tato společnost je součástí seskupení/sítě/franšízového modelu realitních kanceláří, jejich seznam můžete zobrazit kliknutím na tento odkaz.
Prosperity Living s.r.o. (IČ 23446731) , Prosperity Financial Services a.s. (IČ 02745836)
Uživatel tyto osobní údaje poskytuje dobrovolně a bere na vědomí, že součástí služeb Správce, které Správce Uživateli poskytuje, je vyhledání všech Uživateli vyhovujících (dle parametrů - cena, typ nemovitosti, lokalita atd.) nemovitostí. Správce za tímto účelem provozuje aplikace Hlídací pes a newsletter. Tyto služby je možné z každého zaslaného emailu odhlásit. Souhlas se zpracováním osobních údajů Uživatel poskytuje Správci na dobu neurčitou s tím, že svůj udělený souhlas může Uživatel kdykoliv na drese správce info@realitymix.cz odvolat. Správce garantuje Uživateli i další práva uvedené v ustanovení §11 a §21 zákoba č. 101/200 Sb. Ve znění pozdějších předpisů.
Více informací o zpracování údajů získáte zde (realitymix.cz/zasady-ochrany-osobnich-udaju)