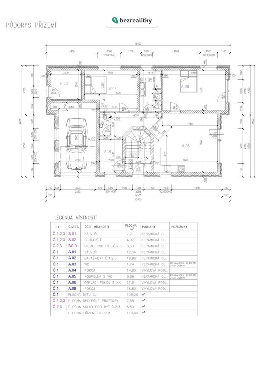
Byt 3+kk PŘÍZEMÍ, BJ 1 - VYBERTE SI DVEŘE, PODLAHY, VANU ČI UMYVADLO PODLE SVÉ PŘEDSTAVY !!! Možnost si toto vše vybrat podle sebe, my dodáme, položíme, osadíme, připojíme.
Nabízíme k prodeji tři nové bytové jednotky v městysu Divišov, v krásné oblasti kousek od Prahy plné lesů, rybníků a řek.
Divišov je městys, ve kterém žije přibližně 1 800 obyvatel. Divišov je plně vybaven veškerou občanskou vybaveností - školy, školky, domov seniorů, nákupní střediska, restaurace, lékaři, …….
Umístění Divišova je výborné - metro Praha Chodov vzdáleno 30 minut jízdy autem po D1 (exit 41 dálnice D1, 4 minuty od centra obce), okresní město Benešov 20 minut autem a město Brno 75 minut autem po D1. V okolí mnoho sportovního vyžití - cyklotrasy, pěší turistika, koupání v nedaleké řece Sázavě, hrad Český Šternberk, Konopiště, či golfová hřiště Konopiště, Kácov, Pyšely .
K dispozici celkem 3 bytové jednotky o dispoziční velikosti 3kk.
Jedná se o zcela nový dům o třech bytových jednotkách.
V přízemí je velký byt 3 kk o velikosti 82,0 m2, ke kterému náleží zahrada velikosti 175 m2 určená k užívání pouze pro tento byt v přízemí. Byt má zádveří, halu, velký obývací pokoj s kuchyní a jídelnou přímo napojený na venkovní terasu a zahradu, pokoj, ložnici s východem na zahradu, WC s koupelnou a samostatné WC. CENA ZA BYTOVOU JEDNOTKU 8,00 mil. Kč
V přízemí objektu je umístěna samostatná garáž o velikosti 20 m2, která je prodávána samostatně k některé z bytových jednotek. Cena garáže 1,2 mil. Kč.
Dále je v přízemí komora-sklad určená pro využívání 2 bytových jednotek, které nemají garáž.
Další dva byty v patře objektu taktéž o dispozici 3kk o velikosti 55 m2, každý se samostatným balkonem velikosti 5,0 m2 s výhledem do zeleně. Každý byt má zádveří, obývací pokoj s kuchyní a jídelnou přímo napojený na balkon, pokoj, ložnici a WC s koupelnou.
K pravému bytu v 1 patře náleží zahrada v úrovni podlahy bytu o velikosti 59 m2, přístupná po lávce z balkonu bytu.
Bytové jednotky budou vytápěny tepelným čerpadlem, ohřev vody v bojleru s možností napojení na fotovoltaické panely, samostatné měření spotřeby vody a elektřiny. Dům je postaven z vysoce kvalitních materiálů, okna s tepelněizolačními trojskly, fasáda zateplena 160 mm izolantem, střecha s cca 400 mm zateplením.
Pro každou bytovou jednotku zajištěno parkování na pozemku u objektu pro 2 osobní auta. Objekt má v současné době dokončenu hrubou stavbu se střechou, okny a příčkami, dispozice bytů jsou již viditelné.
Předpokládaný termín kompletního dokončení cca konec října 2026. Tato nemovitost je určena výhradně přímým zájemcům o koupi. Na inzerát můžete také reagovat přímo na webu Bezrealitky.
V tomto článku shrneme nejdůležitější věci, které byste si měli promyslet, pokud se chystáte prodat svou nemovitost a chcete, abyste s kupujícím nemusel následně řešit vzniklé problémy.
Jako prodávající nesete rizika spojená nejen se samotným obchodem, ale i se stavem nemovitosti v době prodeje a pro minimalizaci rizik, je dobré se zamyslet nad uvedenými oblastmi.
Realitní makléř má své nezastupitelné místo v realitním obchodu. Realitním makléřem nemyslím nevzdělané jelito, které absolvovalo dvoudenní školení a ví, jak se nahraje inzerát na inzertní portál.
Realitním makléřem, který se Vám skutečně vyplatí, je zkušený profesionál, který je schopen Vám dobře poradit jak prodat za co nejvíc a s nejmenším rizikem a hlavně je Vás schopen obratně provést celým realitním obchodem.
* Umístění na mapě je na základě GPS informací dodaných realitní kanceláří.
* Pozice na mapě je pouze orientační.
Souhlas se zpracováním osobních údajů
Uživatel serveru RealityMIX.iprima.cz (dále jen „Server“) dostupného na internetové adrese (URL) https://realitymix.iprima.cz, který provozuje společnost DALTEN media s.r.o., se sídlem Na Harfě 916/9a, Praha 9, 190 00, IČO: 271 35 306 (dále jen „Správce“) jako provozovateli tohoto Serveru uděluje svůj výslovný souhlas v souladu s ustanovením § 5 zákona č. 101/2000 Sb. O ochraně osobních údajů a o změně některých zákonů, v platném znění (dále jen „zákon o ochraně osobních údajů“), se zpracováním uživatelem poskytnutých osobních údajů a dalších dat.
Uživatel poskytuje Správci osobní údaje v rozsahu: jméno, příjmení, e-mailová adresa, telefonický kontakt a další data, a to z důvodu projeveného zájmu o nemovitost, kde prostřednictvím služby Serveru Správce osloví Uživatel inzerenta uvedeného v detailu
nemovitosti - Bezrealitky s.r.o. (IČ 08063168) se zájmem o jeho služby.
Uživatel tyto osobní údaje poskytuje dobrovolně a bere na vědomí, že součástí služeb Správce, které Správce Uživateli poskytuje, je vyhledání všech Uživateli vyhovujících (dle parametrů - cena, typ nemovitosti, lokalita atd.) nemovitostí. Správce za tímto účelem provozuje aplikace Hlídací pes a newsletter. Tyto služby je možné z každého zaslaného emailu odhlásit. Souhlas se zpracováním osobních údajů Uživatel poskytuje Správci na dobu neurčitou s tím, že svůj udělený souhlas může Uživatel kdykoliv na drese správce info@realitymix.cz odvolat. Správce garantuje Uživateli i další práva uvedené v ustanovení §11 a §21 zákoba č. 101/200 Sb. Ve znění pozdějších předpisů.
Více informací o zpracování údajů získáte zde (realitymix.cz/zasady-ochrany-osobnich-udaju)