!PRAVIDELNÁ AKTUALIZACE FOTODOKUMENTACE!
Nabízím k prodeji jedinečný rodinný dům ve fázi výstavby, který se nachází v naprosto klidné lokalitě na samotě s perkovou příjezdovou cestou a minimálním sousedstvím. V blízkosti jsou pouze dvě novostavby. Ideální místo pro ty, kteří hledají soukromí, klid a kontakt s přírodou.
Dům se zároveň nachází v dojezdové vzdálenosti pouhých 10–15 minut autem od lyžařských areálů Harrachov a Tanvaldský Špičák, což z něj činí ideální místo nejen pro trvalé bydlení, ale i pro rekreační využití v létě i v zimě.
Jedná se o moderní novostavbu reprezentativního rodinného domu o dispozici 5+kk, který splňuje veškeré představy o komfortním bydlení. Nemovitost je kompletně vybavena a charakterizována energetickou náročností budovy označenou štítkem B, což zaručuje nízkou spotřebu energie.
Přízemí:
• technická místnost
• prostorná dílna a garáž
• samostatná toaleta
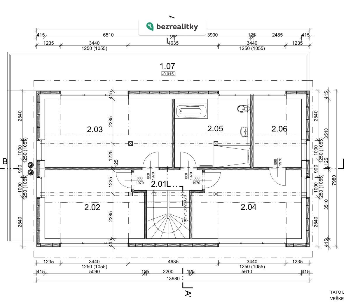
1. nadzemní podlaží:
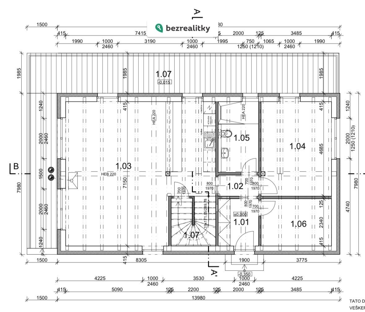
• velkorysý obývací pokoj s otevřeným kuchyňským koutem a krbovými kamny
• koupelna se sprchovým koutem a WC
• šatna
• pokoj (možno využít jako pracovnu nebo pokoj pro hosty)
• všechny obytné místnosti mají přímý vstup na terasu, která lemuje celé patro
2. nadzemní podlaží:
• ložnice s vlastní šatnou
• dva samostatné pokoje
• koupelna s vanou i sprchovým koutem a WC
Technické informace:
• Dům je zděný, strop mezi 1. a 2. patrem je dřevěný
• Podlahové topení v 1. a 2. patře napojené na tepelné čerpadlo, které slouží jako ústřední topení
• Možnost přitápění krbovými kamny v obývacím pokoji
• Vodu v celém objektu zajišťuje vlastní vrtaná studna
• Použité materiály: kámen, masivní dřevo, hliněné omítky
• Hliníková okna s venkovními žaluziemi
Dům je navržen v moderním chalupářském stylu, který kombinuje přírodní materiály s moderními technologiemi. Výsledkem bude útulné, energeticky úsporné a esteticky výjimečné bydlení s neopakovatelnou atmosférou.
Pokud hledáte místo pro klidný život v přírodě, ale zároveň v moderním a promyšleném domě, tato nemovitost může být právě pro vás.
Výstavba bude dokončena v druhé polovině roku 2026. Tato nemovitost je určena výhradně přímým zájemcům o koupi. Na inzerát můžete také reagovat přímo na webu Bezrealitky.
V tomto článku shrneme nejdůležitější věci, které byste si měli promyslet, pokud se chystáte prodat svou nemovitost a chcete, abyste s kupujícím nemusel následně řešit vzniklé problémy.
Jako prodávající nesete rizika spojená nejen se samotným obchodem, ale i se stavem nemovitosti v době prodeje a pro minimalizaci rizik, je dobré se zamyslet nad uvedenými oblastmi.
Realitní makléř má své nezastupitelné místo v realitním obchodu. Realitním makléřem nemyslím nevzdělané jelito, které absolvovalo dvoudenní školení a ví, jak se nahraje inzerát na inzertní portál.
Realitním makléřem, který se Vám skutečně vyplatí, je zkušený profesionál, který je schopen Vám dobře poradit jak prodat za co nejvíc a s nejmenším rizikem a hlavně je Vás schopen obratně provést celým realitním obchodem.
* Umístění na mapě je na základě GPS informací dodaných realitní kanceláří.
* Pozice na mapě je pouze orientační.
Souhlas se zpracováním osobních údajů
Uživatel serveru RealityMIX.iprima.cz (dále jen „Server“) dostupného na internetové adrese (URL) https://realitymix.iprima.cz, který provozuje společnost DALTEN media s.r.o., se sídlem Na Harfě 916/9a, Praha 9, 190 00, IČO: 271 35 306 (dále jen „Správce“) jako provozovateli tohoto Serveru uděluje svůj výslovný souhlas v souladu s ustanovením § 5 zákona č. 101/2000 Sb. O ochraně osobních údajů a o změně některých zákonů, v platném znění (dále jen „zákon o ochraně osobních údajů“), se zpracováním uživatelem poskytnutých osobních údajů a dalších dat.
Uživatel poskytuje Správci osobní údaje v rozsahu: jméno, příjmení, e-mailová adresa, telefonický kontakt a další data, a to z důvodu projeveného zájmu o nemovitost, kde prostřednictvím služby Serveru Správce osloví Uživatel inzerenta uvedeného v detailu
nemovitosti - Bezrealitky s.r.o. (IČ 08063168) se zájmem o jeho služby.
Uživatel tyto osobní údaje poskytuje dobrovolně a bere na vědomí, že součástí služeb Správce, které Správce Uživateli poskytuje, je vyhledání všech Uživateli vyhovujících (dle parametrů - cena, typ nemovitosti, lokalita atd.) nemovitostí. Správce za tímto účelem provozuje aplikace Hlídací pes a newsletter. Tyto služby je možné z každého zaslaného emailu odhlásit. Souhlas se zpracováním osobních údajů Uživatel poskytuje Správci na dobu neurčitou s tím, že svůj udělený souhlas může Uživatel kdykoliv na drese správce info@realitymix.cz odvolat. Správce garantuje Uživateli i další práva uvedené v ustanovení §11 a §21 zákoba č. 101/200 Sb. Ve znění pozdějších předpisů.
Více informací o zpracování údajů získáte zde (realitymix.cz/zasady-ochrany-osobnich-udaju)