Prodej rodinného domu 132 m, pozemek 512 m Chrustenice
Váš nový domov uprostřed klidu a zeleně 5+kk, 132 m, zahrada 512 m, Chrustenice
Představte si dům, kde se ráno probouzíte za zpěvu ptáků, snídáte venku a v soukromí a za 15 minut jste v Praze. Místo, kde si vaše děti hrají bezpečně na zahradě, zatímco vy si vychutnáváte s přáteli delikatesy z grilu na terase. Vítejte v Chrustenicích.
Tento moderní dvoupodlažní rodinný dům s dispozicí 5+kk a podlahovou plochou 132 m vzniká v jedné z nejžádanějších lokalit na západním okraji Prahy v malebných Chrustenicích, v sousedství přírodního parku a zároveň jen pár minut od dálnice D5 vedoucí do Prahy či do Berouna.
DŮM, KDE SE BUDE DOBŘE ŽÍT:
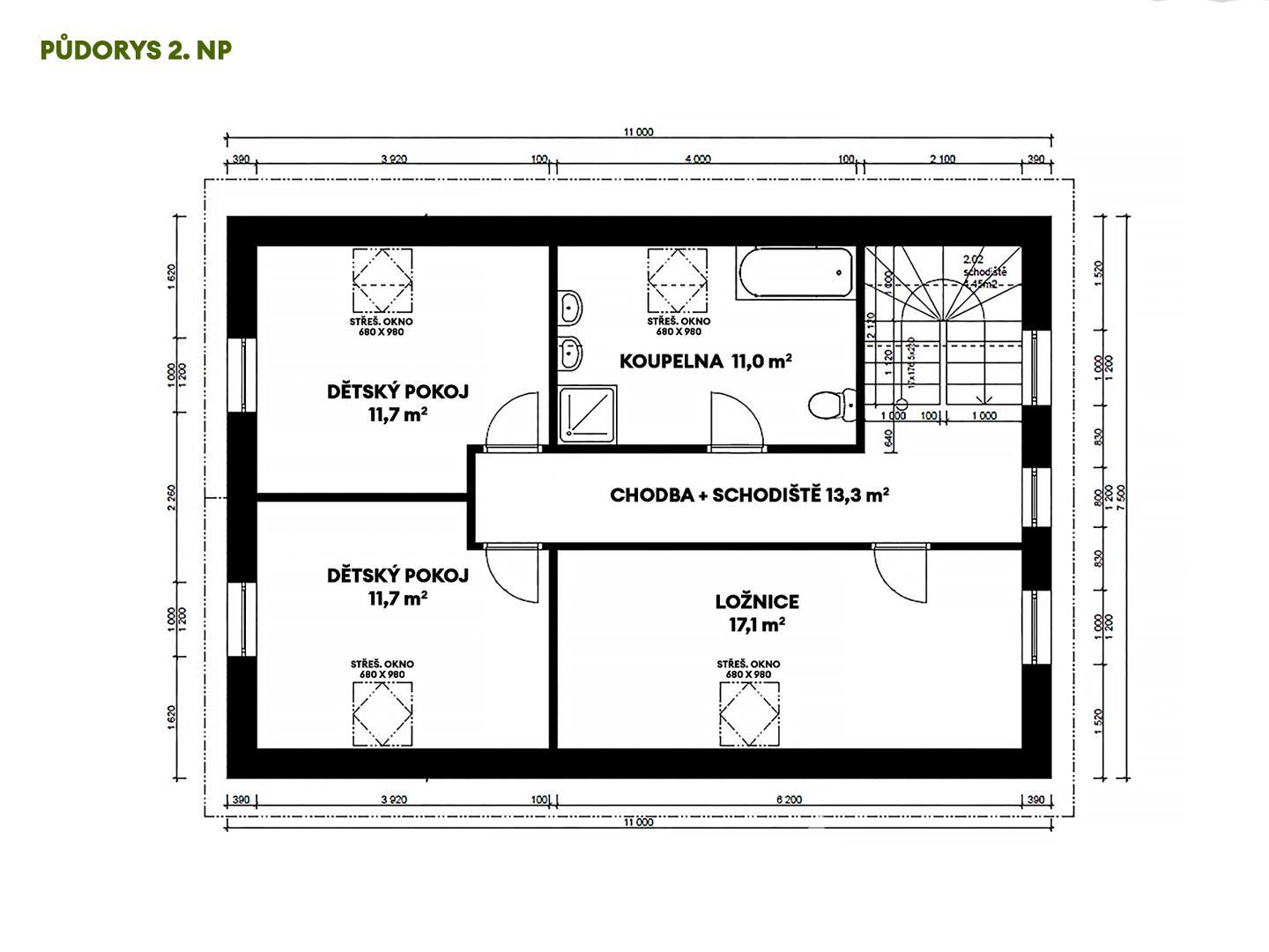
- Dispozice 5+kk, ideální pro rodinu se 2-3 dětmi
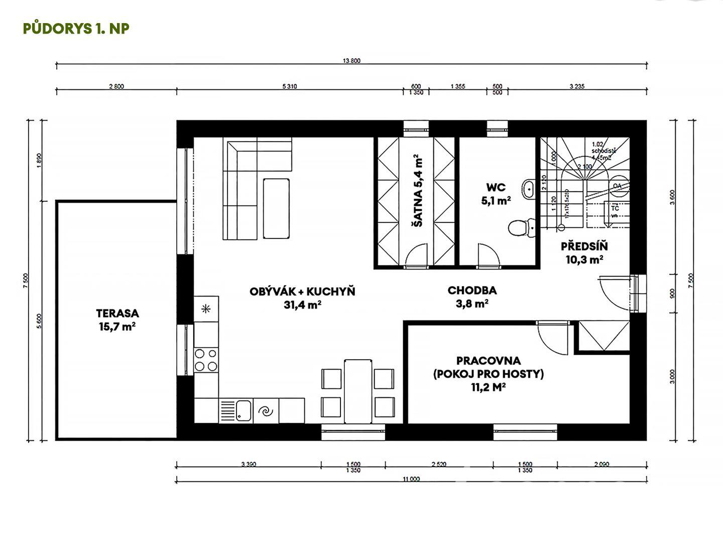
- Obývací pokoj s kuchyňským koutem a vstupem na terasu místo, kde bude žít vaše rodina i víkendová setkání s přáteli
- 3 pokoje v patře, z toho hlavní ložnice s místem na šatnu
- Pracovna nebo pokoj pro hosty v přízemí
- Moderní koupelna + samostatné WC
- Praktická šatna a technické zázemí
- Dům bude předán v nadstandardním provedení s hotovými podlahami, obklady, koupelnou a WC v nadčasovém designu
- 3x parkovací stání pro všechny členy rodiny
TECHNICKÉ INFORMACE:
- Pozemek: 512 m - čeká vás tedy nenáročná údržba zahrady
- Tepelné čerpadlo s podlahovým vytápěním v celém domě úsporné, komfortní, tiché
- Energetická třída B (nízkoenergetický dům)
- Vrtaná studna, retenční nádrž, napojení na kanalizaci
- Kolaudace plánovaná na listopad 2025
SKVĚLÁ LOKALITA, KTERÁ MÁ VŠECHNO:
- Chrustenice jsou malá obec obklopená přírodou a přitom jen 15 minut od Prahy a 10 minut od Berouna Je to místo, které si zamilujete.
- Přírodní park Povodí Kačáku, lom Velká Amerika, Karlštejn, Svatý Jan pod Skalou jen pár minut od domu
- Dětské hřiště, sportovní areál, fotbalové i víceúčelové hřiště přímo v obci
- Mateřská škola v obci, základní škola a lékař hned v sousední Loděnici (2 min autem)
- Supermarkety, kavárny a nemocnice v Berouně (10 min)
- Výborné dopravní spojení dálnice D5 v blízkosti (ale není slyšet), autobusy PID, vlakové spojení z Loděnice nebo Vráže
- Je to ideální volba pro ty, kdo hledají klidné zázemí pro rodinu s přírodu hned za domem, ale zároveň chtějí být rychle v práci, škole nebo na schůzce v Praze či v Berouně.
PROHLÍDKY:
- přijďte se podívat na vlastní oči, že tato lokalita je naprosto skvělá, a že se Vám zde bude krásně žít.
- Zavolejte a domluvte si prohlídku ještě dnes.
V tomto článku shrneme nejdůležitější věci, které byste si měli promyslet, pokud se chystáte prodat svou nemovitost a chcete, abyste s kupujícím nemusel následně řešit vzniklé problémy.
Jako prodávající nesete rizika spojená nejen se samotným obchodem, ale i se stavem nemovitosti v době prodeje a pro minimalizaci rizik, je dobré se zamyslet nad uvedenými oblastmi.
Realitní makléř má své nezastupitelné místo v realitním obchodu. Realitním makléřem nemyslím nevzdělané jelito, které absolvovalo dvoudenní školení a ví, jak se nahraje inzerát na inzertní portál.
Realitním makléřem, který se Vám skutečně vyplatí, je zkušený profesionál, který je schopen Vám dobře poradit jak prodat za co nejvíc a s nejmenším rizikem a hlavně je Vás schopen obratně provést celým realitním obchodem.
Uživatel serveru RealityMIX.iprima.cz (dále jen „Server“) dostupného na internetové adrese (URL) https://realitymix.iprima.cz, který provozuje společnost DALTEN media s.r.o., se sídlem Na Harfě 916/9a, Praha 9, 190 00, IČO: 271 35 306 (dále jen „Správce“) jako provozovateli tohoto Serveru uděluje svůj výslovný souhlas v souladu s ustanovením § 5 zákona č. 101/2000 Sb. O ochraně osobních údajů a o změně některých zákonů, v platném znění (dále jen „zákon o ochraně osobních údajů“), se zpracováním uživatelem poskytnutých osobních údajů a dalších dat.
Uživatel poskytuje Správci osobní údaje v rozsahu: jméno, příjmení, e-mailová adresa, telefonický kontakt a další data, a to z důvodu projeveného zájmu o nemovitost, kde prostřednictvím služby Serveru Správce osloví Uživatel inzerenta uvedeného v detailu
nemovitosti - Connecte REALITY s.r.o. (IČ 08866864) se zájmem o jeho služby. Tato společnost je součástí seskupení/sítě/franšízového modelu realitních kanceláří, jejich seznam můžete zobrazit kliknutím na tento odkaz.
Connecte REALITY s.r.o. (IČ 08866864) , Connecte DEVELOPMENT s.r.o. (IČ 05463211)
Uživatel tyto osobní údaje poskytuje dobrovolně a bere na vědomí, že součástí služeb Správce, které Správce Uživateli poskytuje, je vyhledání všech Uživateli vyhovujících (dle parametrů - cena, typ nemovitosti, lokalita atd.) nemovitostí. Správce za tímto účelem provozuje aplikace Hlídací pes a newsletter. Tyto služby je možné z každého zaslaného emailu odhlásit. Souhlas se zpracováním osobních údajů Uživatel poskytuje Správci na dobu neurčitou s tím, že svůj udělený souhlas může Uživatel kdykoliv na drese správce info@realitymix.cz odvolat. Správce garantuje Uživateli i další práva uvedené v ustanovení §11 a §21 zákoba č. 101/200 Sb. Ve znění pozdějších předpisů.
Více informací o zpracování údajů získáte zde (realitymix.cz/zasady-ochrany-osobnich-udaju)