Upozornění: Tato nabídka je rezervována konkrétním zájemcem a v rezervační lhůtě není k dispozici! S radostí vám představujeme novinku v nabídce - pro stornou bytovou jednotku 4+kk v první etapě výstavby moderního rezidenčního projektu Residence Karlovka, v Chotěvicích. Jedná se o krásné místo v podkrkonoší - 5min. do Hostinného, 20min. do Trutnova a Dvora Králové, 25min. do Vrchlabí.
Výstavba právě odstartovala a jednotky jsou nyní v prodeji - jde o skvělou příležitost pro ty, kdo chtějí spojit komfort bydlení v domě s výhodami moderní novostavby v krásné a klidné lokalitě.
Byt (C) je součástí trojdomu, a díky vlastní zahradě, terase a dvěma parkovacím místům nabízí plnohodnotný komfort srovnatelný s bydlením v rodinném domě. K dispozici je navíc i dobíjecí stanice pro elektromobil.
Dispozice a provedení:
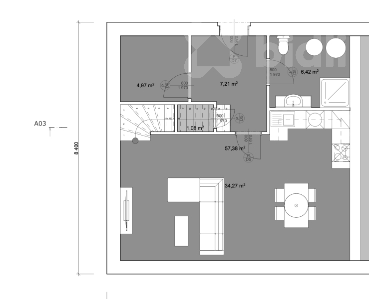
Celková podlahová plocha bytu je 104 m2, k bytu náleží terasa o velikosti 15m2 a zahrada o výměře 315 m2. V přízemí se nachází prostorný obývací pokoj propojený s jídelnou a kuchyní, ze kterého je vstup na terasu a zahradu. V patře jsou tři samostatné ložnice. V každém patře je jedna koupelna.
Moderní technologie a vybavení:
Byt je vytápěn podlahovým topením napojeným na tepelné čerpadlo, které zajistí příjemné teplo a nízké provozní náklady. Dům je napojen na elektřinu, obecní vodovod a kanalizaci a je připraven pro připojení k vysokorychlostnímu internetu.
Tato jednotka je navíc vybavena vlastní fotovoltaickou elektrárnou o výkonu 5,4 kWp s bateriovým úložištěm 10 kWh, určenou pro ohřev vody.
Jednotka se prodává ve stavu "na klíč, tedy kompletně dokončená a připravená k nastěhování - bez kuchyňské linky, aby si nový majitel mohl zvolit řešení přesně podle svých představ. Vybrat si můžete i finální podobu interiérových prvků - podlahy, obklady, sanitu i interiérové dveře.
Chotěvice nabízí klidné prostředí s krásnými výhledy do krajiny a celodenním slunečním svitem. V obci je mateřská i základní škola, která je vzdálená jen 4 minuty jízdy autem. Navíc nedaleko domu vede cyklostezka, po které se děti dostanou ke škole bezpečně mimo hlavní silnici. V blízkosti se nachází i dětské hřiště, kulturní zázemí obce a příroda ideální pro aktivní životní styl.
V nabídce jsou aktuálně ještě další dvě jednotky.
Neváhejte se ozvat pro více informací.
Výhodné financování Vám rádi zdarma zajistíme.
V tomto článku shrneme nejdůležitější věci, které byste si měli promyslet, pokud se chystáte prodat svou nemovitost a chcete, abyste s kupujícím nemusel následně řešit vzniklé problémy.
Jako prodávající nesete rizika spojená nejen se samotným obchodem, ale i se stavem nemovitosti v době prodeje a pro minimalizaci rizik, je dobré se zamyslet nad uvedenými oblastmi.
Realitní makléř má své nezastupitelné místo v realitním obchodu. Realitním makléřem nemyslím nevzdělané jelito, které absolvovalo dvoudenní školení a ví, jak se nahraje inzerát na inzertní portál.
Realitním makléřem, který se Vám skutečně vyplatí, je zkušený profesionál, který je schopen Vám dobře poradit jak prodat za co nejvíc a s nejmenším rizikem a hlavně je Vás schopen obratně provést celým realitním obchodem.
Uživatel serveru RealityMIX.iprima.cz (dále jen „Server“) dostupného na internetové adrese (URL) https://realitymix.iprima.cz, který provozuje společnost DALTEN media s.r.o., se sídlem Na Harfě 916/9a, Praha 9, 190 00, IČO: 271 35 306 (dále jen „Správce“) jako provozovateli tohoto Serveru uděluje svůj výslovný souhlas v souladu s ustanovením § 5 zákona č. 101/2000 Sb. O ochraně osobních údajů a o změně některých zákonů, v platném znění (dále jen „zákon o ochraně osobních údajů“), se zpracováním uživatelem poskytnutých osobních údajů a dalších dat.
Uživatel poskytuje Správci osobní údaje v rozsahu: jméno, příjmení, e-mailová adresa, telefonický kontakt a další data, a to z důvodu projeveného zájmu o nemovitost, kde prostřednictvím služby Serveru Správce osloví Uživatel inzerenta uvedeného v detailu
nemovitosti - Bidli reality, a.s. (IČ 06790763) se zájmem o jeho služby. Tato společnost je součástí seskupení/sítě/franšízového modelu realitních kanceláří, jejich seznam můžete zobrazit kliknutím na tento odkaz.
Hypocentrum modré pyramidy - Praha (IČ ) , Hypocentrum modré pyramidy - Brno (IČ ) , Hypocentrum Modré pyramidy - Hradec Králové (IČ ) , Hypocentrum Modré pyramidy - České Budějovice (IČ ) , Hypocentrum Modré pyramidy - Pardubice (IČ ) , Hypocentrum Modré pyramidy - Plzeň (IČ ) , Hypocentrum Modré pyramidy - Ústí nad Labem (IČ ) , Hypocentrum Modré pyramidy - Ostrava (IČ ) , Hypocentrum Modré pyramidy - Olomouc (IČ ) , Bidli reality, a.s. (IČ 06790763)
Uživatel tyto osobní údaje poskytuje dobrovolně a bere na vědomí, že součástí služeb Správce, které Správce Uživateli poskytuje, je vyhledání všech Uživateli vyhovujících (dle parametrů - cena, typ nemovitosti, lokalita atd.) nemovitostí. Správce za tímto účelem provozuje aplikace Hlídací pes a newsletter. Tyto služby je možné z každého zaslaného emailu odhlásit. Souhlas se zpracováním osobních údajů Uživatel poskytuje Správci na dobu neurčitou s tím, že svůj udělený souhlas může Uživatel kdykoliv na drese správce info@realitymix.cz odvolat. Správce garantuje Uživateli i další práva uvedené v ustanovení §11 a §21 zákoba č. 101/200 Sb. Ve znění pozdějších předpisů.
Více informací o zpracování údajů získáte zde (realitymix.cz/zasady-ochrany-osobnich-udaju)