Prodej zemědělské usedlosti s rodinným domem a budovou bývalého mlýna, 5 290 000 Kč, Buzice
Velmi rád Vám v zastoupení majitele nabízím k prodeji rozlehlou usedlost na okraji jihočeské obce Buzice, v klidné lokalitě obklopené přírodou. Soubor tvoří přízemní rodinný dům, budova bývalého mlýna, prostorný dvůr se zahradou, hospodářské budovy - stodola, chlévy, garáž, kůlna, sklep, a to vše na ucelených pozemcích o celkové výměře přes 6 200 m².
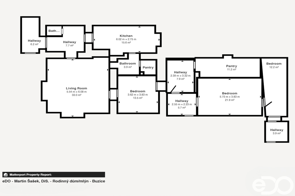
Přízemní rodinný dům o dispozici 5+1 s užitnou plochou cca 145 m² je z větší části v původním stavu a tedy určen k rekonstrukci. Konstrukce je smíšená (kámen a cihly) bez izolace, vnitřní vyzdívky jsou cihlové. Dispozici tvoří kuchyně, pět pokojů, předsíně, spíž, koupelna s vanou a samostatná toaleta. Vytápění je řešeno kamny na tuhá paliva. Dům je napojen na elektřinu (230 V / 400 V), veřejnou kanalizaci prostřednictvím přečerpávací jímky a obecní vodovod. K dispozici je také kopaná studna. Celý obytný prostor si můžete projít v klidu domova prostřednictvím virtuální prohlídky, která je součástí propagace.
Na obytný dům navazuje historická, třípatrová budova bývalého mlýna včetně původní technologie, rovněž určená k rekonstrukci. V případě obnovy objektu je možné znovu získat vodní právo a navázat tak na původní využití mlýna v blízkosti krásné řeky Lomnice.
Klidné prostředí na okraji malebné obce, soukromí a rozsáhlé pozemky dělají z této usedlosti jedinečnou příležitost pro ty, kteří hledají místo s výjimečnou atmosférou. Nemovitost představuje velký potenciál a je ideální například pro rodinné bydlení, farmu, penzion, rekreační areál či kombinaci bydlení a podnikání.
Život v Buzicích je o klidu, přírodě a propojení s historií místa. Okolí nabízí krásnou přírodu, cyklotrasy a turistické stezky, vhodné pro pěší i cyklisty. Významnou předností je bohatství rybníků a vodních ploch v okolí, které poskytují možnosti rybaření, koupání či procházky a relaxace u vody. Přímo v obci se pak nachází obecní úřad, autobusová zastávka, dětské hřiště, venkovní posilovna a místní hospoda.
Blízkost měst Blatná a Strakonice zajišťuje pohodlnou dostupnost veškerých služeb a kultury, přitom si uchováváte venkovský klid. To vše dělá z této nabídky unikátní kombinaci bydlení, podnikání a odpočinku.
S financováním Vám případně velmi rádi pomůžeme v naší společností eDO finance. Pro více informací a domluvení prohlídky volejte makléři.
V tomto článku shrneme nejdůležitější věci, které byste si měli promyslet, pokud se chystáte prodat svou nemovitost a chcete, abyste s kupujícím nemusel následně řešit vzniklé problémy.
Jako prodávající nesete rizika spojená nejen se samotným obchodem, ale i se stavem nemovitosti v době prodeje a pro minimalizaci rizik, je dobré se zamyslet nad uvedenými oblastmi.
Realitní makléř má své nezastupitelné místo v realitním obchodu. Realitním makléřem nemyslím nevzdělané jelito, které absolvovalo dvoudenní školení a ví, jak se nahraje inzerát na inzertní portál.
Realitním makléřem, který se Vám skutečně vyplatí, je zkušený profesionál, který je schopen Vám dobře poradit jak prodat za co nejvíc a s nejmenším rizikem a hlavně je Vás schopen obratně provést celým realitním obchodem.
Uživatel serveru RealityMIX.iprima.cz (dále jen „Server“) dostupného na internetové adrese (URL) https://realitymix.iprima.cz, který provozuje společnost DALTEN media s.r.o., se sídlem Na Harfě 916/9a, Praha 9, 190 00, IČO: 271 35 306 (dále jen „Správce“) jako provozovateli tohoto Serveru uděluje svůj výslovný souhlas v souladu s ustanovením § 5 zákona č. 101/2000 Sb. O ochraně osobních údajů a o změně některých zákonů, v platném znění (dále jen „zákon o ochraně osobních údajů“), se zpracováním uživatelem poskytnutých osobních údajů a dalších dat.
Uživatel poskytuje Správci osobní údaje v rozsahu: jméno, příjmení, e-mailová adresa, telefonický kontakt a další data, a to z důvodu projeveného zájmu o nemovitost, kde prostřednictvím služby Serveru Správce osloví Uživatel inzerenta uvedeného v detailu
nemovitosti - eDO reality, s.r.o. (IČ 07268602) se zájmem o jeho služby.
Uživatel tyto osobní údaje poskytuje dobrovolně a bere na vědomí, že součástí služeb Správce, které Správce Uživateli poskytuje, je vyhledání všech Uživateli vyhovujících (dle parametrů - cena, typ nemovitosti, lokalita atd.) nemovitostí. Správce za tímto účelem provozuje aplikace Hlídací pes a newsletter. Tyto služby je možné z každého zaslaného emailu odhlásit. Souhlas se zpracováním osobních údajů Uživatel poskytuje Správci na dobu neurčitou s tím, že svůj udělený souhlas může Uživatel kdykoliv na drese správce info@realitymix.cz odvolat. Správce garantuje Uživateli i další práva uvedené v ustanovení §11 a §21 zákoba č. 101/200 Sb. Ve znění pozdějších předpisů.
Více informací o zpracování údajů získáte zde (realitymix.cz/zasady-ochrany-osobnich-udaju)