Pronájem vily 9+1, Brno, Dolní Heršpice, CP 230m2, pozemek 370m2
Nabízíme vám k pronájmu zařízenou pěknou vilu pro bydlení, nebo jako kanceláře s dostatkem parkovacího místa na vlastním pozemku, což jistě ocení zákazníci, či rodinní příslušníci. Vila se nachází v jižní části Brna, Dolní Heršpice při ul. Havránkova.
Vila je po kompletní rekonstrukci s úžasnou dispozicí 9+kk a PP cca- 230 m2 rozloženou na 3.podlaží . Zahrada nabízí 250 m2. Nemovitost se nachází v klidné části s výbornou dostupností. Vhodné k dlouhodobému i krátkodobému pronájmu
I.NP. nabídne velkou prosvětlenou halu, jídelní část, propojenou s kuchyňským koutem, který lze oddělit od obývací části posuvnými dveřmi, dále technickou místnost s pl. kombin. kondenzačním kotlem, koupelnu s whirpool. vanou a pračkou a WC. Prostorné zádveří s chodbou umožňující samost. vstupy do jednotl. místností se schodišťovou šachtou spojující jednotl. patra. Dům má samost. vchod i vstup zmíněnou halou. Celý pozemek je oplocen a opatřen bránou na dálkové ovládání i samost. vstupem.Odkaz na videoprohlídku, pokud se vám nezobrazuje:
https://youtu.be/z_OQvXt3YHA?si=KwwP1C4ZslnTGKcP
II.NP. se chodbou se dostanete do 4. neprůchozích pokojů, dále do koupelny s whirpool. vanou a sprch. koutem přípojkou na pračku a samost. WC. 2. Pokoje jsou s terasou, nebo francouzským balkónem.
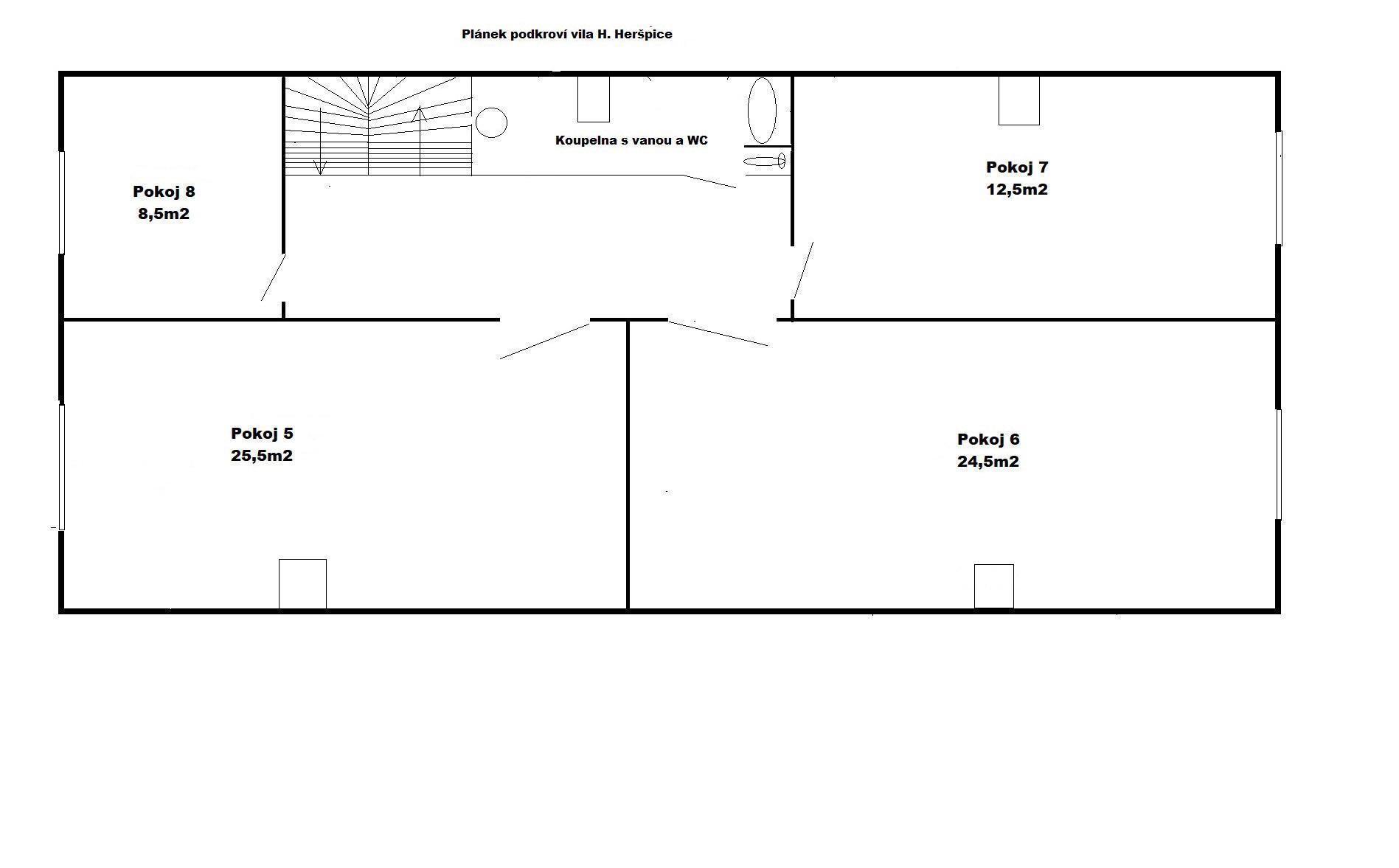
Podkroví- přístupné po centrálním schodišti se 4-mi pokoji se samost. vstupy -velkou koupelnou s vanou, WC a přípojením na pračku. Nad podkrovím se nachází velký úložný prostor přístupný z chodby půdním vstupem.
Pozemek kolem vily nabízí parkování pro čtyři auta, zaparkoval by tam bez problémů i kamionový návěs, za vilkou je kovový uzamykatelný sklad 5 m2, terasami i venkovní betonový gril.
Vila prošla rekonstrukcí nabídne především klid, myčku, novou pračku, novou velkou ledničku, vařidlovou desku, vestavnou troubu, bezpečnostní vnitřní systém se zabezpečovacím panelem, podlahové vytápění s regulací na chodbách a v kuchyni, radiátory v celém domě, internet, koupelna na každém patře i v podkroví.
Zast. MHD BUS nedaleko. Energie, dle počtu osob-budou převedeny na vás a tak si sami pohlídáte spotřebu + kauce. Vila je volná ihned. Nezapomeňte si objednat prohlídku u makléře
Uživatel serveru RealityMIX.iprima.cz (dále jen „Server“) dostupného na internetové adrese (URL) https://realitymix.iprima.cz, který provozuje společnost DALTEN media s.r.o., se sídlem Na Harfě 916/9a, Praha 9, 190 00, IČO: 271 35 306 (dále jen „Správce“) jako provozovateli tohoto Serveru uděluje svůj výslovný souhlas v souladu s ustanovením § 5 zákona č. 101/2000 Sb. O ochraně osobních údajů a o změně některých zákonů, v platném znění (dále jen „zákon o ochraně osobních údajů“), se zpracováním uživatelem poskytnutých osobních údajů a dalších dat.
Uživatel poskytuje Správci osobní údaje v rozsahu: jméno, příjmení, e-mailová adresa, telefonický kontakt a další data, a to z důvodu projeveného zájmu o nemovitost, kde prostřednictvím služby Serveru Správce osloví Uživatel inzerenta uvedeného v detailu
nemovitosti - Roman Kvasnica realitní makléř (IČ 70411301) se zájmem o jeho služby.
Uživatel tyto osobní údaje poskytuje dobrovolně a bere na vědomí, že součástí služeb Správce, které Správce Uživateli poskytuje, je vyhledání všech Uživateli vyhovujících (dle parametrů - cena, typ nemovitosti, lokalita atd.) nemovitostí. Správce za tímto účelem provozuje aplikace Hlídací pes a newsletter. Tyto služby je možné z každého zaslaného emailu odhlásit. Souhlas se zpracováním osobních údajů Uživatel poskytuje Správci na dobu neurčitou s tím, že svůj udělený souhlas může Uživatel kdykoliv na drese správce info@realitymix.cz odvolat. Správce garantuje Uživateli i další práva uvedené v ustanovení §11 a §21 zákoba č. 101/200 Sb. Ve znění pozdějších předpisů.
Více informací o zpracování údajů získáte zde (realitymix.cz/zasady-ochrany-osobnich-udaju)