Prodej bytu 3+1, 74 m² – Brno, Komárov, ulice Za školou
Prodej bytu 3+1, 74 m² – Brno, Komárov, ulice Za školou
Ve výhradním zastoupení nabízíme k prodeji prostorný byt o dispozici 3+1 v oblíbené a klidné lokalitě Brno–Komárov, na ulici Za školou.
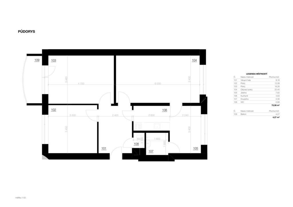
Byt o celkové podlahové ploše 74 m² (plus sklep a balkon) se nachází v posledním, 7. patře panelového domu, což zaručuje krásný výhled a dostatek soukromí bez hluku nad vámi.
Dispozice a stav bytu:
Byt je velmi prostorný a určený k rekonstrukci podle vašich představ. Celková plocha bytu je 74m (pokoj s balkonem 16m, pokoj 20m, pokoj 12m).
Součástí je původní umakartové jádro s koupelnou a samostatnou toaletou.
Z centrální chodby je přístup do všech místností – kuchyně, obývacího pokoje a dvou ložnic.
Obývací pokoj sousedí s kuchyní a má dva vstupy – z chodby i přímo z kuchyně, což umožňuje praktické propojení obytné části.
Z bytu je vstup na balkon orientovaný na severozápad, ideální pro odpočinek při západu slunce.
Dům a technické zázemí:
Panelový dům je v dobrém technickém stavu, má nový výtah, opravené společné prostory a vstup na čip.
Na patře jsou pouze tři byty, což zaručuje klidné a příjemné bydlení.
Dům je napojen na centrální městskou teplou vodu.
V celém domě se topí plynem a plyn je používám i na vaření - plynový sporák, přičemž plynový měřič se nachází přímo v bytě – v jádře na toaletě.
Stejně tak měřiče vody jsou umístěny v bytě, ve stupačkách na toaletě v umakartovém jádře.
Tento systém umožňuje snadné odečty a kontrolu spotřeby energií.
Možnost dokoupení garáže:
K bytu je možné přikoupit také garáž, která se nachází v docházkové vzdálenosti přibližně 1 minutu (cca 100 metrů) od domu.
Cena garáže činí 1 390 000 Kč.
Ideální příležitost pro ty, kteří hledají pohodlné parkování nebo bezpečné místo pro uskladnění věcí.
Lokalita – Brno Komárov:
Komárov je vyhledávaná lokalita s výbornou dostupností do centra Brna (MHD cca 3 minuty chůze) a zároveň s množstvím zeleně i občanské vybavenosti.
V blízkosti najdete obchody, školu, školku, restaurace, sportoviště i příjemné procházky kolem řeky Svratky.
Nedaleko se nachází také OC Olympia, Aquapark Modřice a cyklostezky, které vás zavedou až k přehradě.
Dopravní napojení je perfektní – tramvaj, autobus i rychlý nájezd na dálnici D1.
Byt je vhodný jak pro rekonstrukci na moderní bydlení, tak i jako investiční příležitost.
Díky své poloze, orientaci a technickému zázemí nabízí komfortní a klidné bydlení s výbornou dostupností všech služeb.
Cena 7.990.000,- Kč včetně provize RK
Lokalita: Brno – Komárov, ul. Za školou
Dispozice: 3+1, 74 m² + sklep + balkon
Možnost dokoupení garáže (100 m od domu) za 1 390 000 Kč
CENA K JEDNÁNÍ.
V případě, že Vás nabídka zaujala, neváhejte se kdykoliv ozvat.
V tomto článku shrneme nejdůležitější věci, které byste si měli promyslet, pokud se chystáte prodat svou nemovitost a chcete, abyste s kupujícím nemusel následně řešit vzniklé problémy.
Jako prodávající nesete rizika spojená nejen se samotným obchodem, ale i se stavem nemovitosti v době prodeje a pro minimalizaci rizik, je dobré se zamyslet nad uvedenými oblastmi.
Realitní makléř má své nezastupitelné místo v realitním obchodu. Realitním makléřem nemyslím nevzdělané jelito, které absolvovalo dvoudenní školení a ví, jak se nahraje inzerát na inzertní portál.
Realitním makléřem, který se Vám skutečně vyplatí, je zkušený profesionál, který je schopen Vám dobře poradit jak prodat za co nejvíc a s nejmenším rizikem a hlavně je Vás schopen obratně provést celým realitním obchodem.
Uživatel serveru RealityMIX.iprima.cz (dále jen „Server“) dostupného na internetové adrese (URL) https://realitymix.iprima.cz, který provozuje společnost DALTEN media s.r.o., se sídlem Na Harfě 916/9a, Praha 9, 190 00, IČO: 271 35 306 (dále jen „Správce“) jako provozovateli tohoto Serveru uděluje svůj výslovný souhlas v souladu s ustanovením § 5 zákona č. 101/2000 Sb. O ochraně osobních údajů a o změně některých zákonů, v platném znění (dále jen „zákon o ochraně osobních údajů“), se zpracováním uživatelem poskytnutých osobních údajů a dalších dat.
Uživatel poskytuje Správci osobní údaje v rozsahu: jméno, příjmení, e-mailová adresa, telefonický kontakt a další data, a to z důvodu projeveného zájmu o nemovitost, kde prostřednictvím služby Serveru Správce osloví Uživatel inzerenta uvedeného v detailu
nemovitosti - SMS reality s.r.o. (IČ 04095421) se zájmem o jeho služby.
Uživatel tyto osobní údaje poskytuje dobrovolně a bere na vědomí, že součástí služeb Správce, které Správce Uživateli poskytuje, je vyhledání všech Uživateli vyhovujících (dle parametrů - cena, typ nemovitosti, lokalita atd.) nemovitostí. Správce za tímto účelem provozuje aplikace Hlídací pes a newsletter. Tyto služby je možné z každého zaslaného emailu odhlásit. Souhlas se zpracováním osobních údajů Uživatel poskytuje Správci na dobu neurčitou s tím, že svůj udělený souhlas může Uživatel kdykoliv na drese správce info@realitymix.cz odvolat. Správce garantuje Uživateli i další práva uvedené v ustanovení §11 a §21 zákoba č. 101/200 Sb. Ve znění pozdějších předpisů.
Více informací o zpracování údajů získáte zde (realitymix.cz/zasady-ochrany-osobnich-udaju)