Pronájem rodinného domu 5+kk, 168 m², garáž, pozemek 460 m² — Stará Boleslav
K pronájmu nabízím rodinný dům o užitné ploše 168 m² na pozemku o velikosti 460 m² se zahradou, garáží a dalším parkovacím místem vedle garáže. Dům se nachází v klidné rezidenční ulici Dříská, Stará Boleslav (Brandýs nad Labem–Stará Boleslav). je nový a pečlivě udržovaný, s příjemnou zahradou a dostatkem prostoru.
Dům je ideální pro rodinu, která hledá klid, prostor a výborné zázemí.
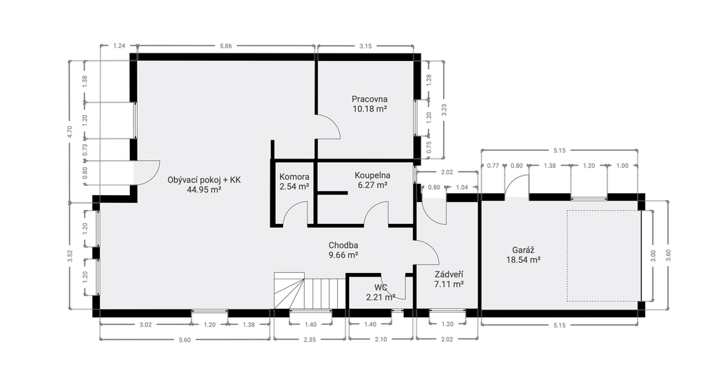
Dispozice
Přízemí:
• Obývací pokoj s plně vybaveným kuchyňským koutem a vstupem na terasu
• Koupelna se sprchovým koutem
• Pracovna / pokoj
• Samostatné WC
• Vstupní chodba
• Spíž
2. nadzemní podlaží:
• Tři samostatné ložnice
• Koupelna s vanou a WC
Náklady a podmínky
• Nájemné: 35 000 Kč / měsíc
• Zálohy na služby: 7 000 Kč / měsíc (vodné/stočné, elektřina – vytápění i provoz, odvoz odpadu)
• Vratná kauce: 45 000 Kč
• Provize RK: 40 000 Kč vč. DPH
Parkování
1 vůz v garáži, další 1 vůz na parkovacím místě vedle garáže za posuvnou bránou.
Dopravní dostupnost do Prahy:
Autobus (PID, linka 379): přímé spojení na Praha – Černý Most (metro B). Nejbližší zastávka je cca 700 m od domu. Jízdní doba cca 15 minut (podle dopravní situace).
Autem: rychlý nájezd na D10 (sjezd Brandýs/Stará Boleslav, cca 1,5 km). Cesta do Prahy trvá zhruba 35 minut mimo špičku, 45–60 minut ve špičce dle provozu.
Občanská vybavenost:
V pěší vzdálenosti: MŠ/ZŠ, menší potraviny, dětská hřiště, sportoviště, procházkové trasy podél Labe a lesopark Houšťka.
Do 5–10 minut: kompletní městská infrastruktura Brandýsa n. L.–Staré Boleslavi – Retail Park Traxial (≈1 km: BILLA, JYSK, Teta drogerie, BENU lékárna, Super Zoo, Zásilkovna, Alza box, PPL box), další supermarkety (Lidl, Kaufland), pošta, kavárny, restaurace, poliklinika a lékárny.
Chcete-li získat více informací nebo si domluvit prohlídku, odpovězte na tento inzerát nebo mě kontaktujte e-mailem.
Cena:
35 000 Kč / (za měsíc)
Poznámka:
+ zálohy na služby
Datum k nastěhování:
01.12.2025
Číslo zakázky:
REALITYMIX-17632
Podrobné informace
Poloha objektu:rohový
Druh objektu:cihlová
Stav objektu:velmi dobrý
Počet podlaží objektu:2
Typ domu:patrový
Zastavěná plocha:129 m²
Plocha parcely:460 m²
Zahrada:260 m²
Užitná plocha:168 m²
Umístění objektu:klidná část obce
Doprava:dálnice, silnice, autobus
Komunikace:dlážděná
Elektřina:Elektro - 400 V
Voda:Voda - dálkový vodovod
Odpad:Kanalizace
Energetická náročnost budovy:B - Velmi úsporná
Ukazatel energetické náročnosti budovy:125 kWh/m²
Energetický ukazatel podle vyhlášky:č. 78/2013 Sb.
Uživatel serveru RealityMIX.iprima.cz (dále jen „Server“) dostupného na internetové adrese (URL) https://realitymix.iprima.cz, který provozuje společnost DALTEN media s.r.o., se sídlem Na Harfě 916/9a, Praha 9, 190 00, IČO: 271 35 306 (dále jen „Správce“) jako provozovateli tohoto Serveru uděluje svůj výslovný souhlas v souladu s ustanovením § 5 zákona č. 101/2000 Sb. O ochraně osobních údajů a o změně některých zákonů, v platném znění (dále jen „zákon o ochraně osobních údajů“), se zpracováním uživatelem poskytnutých osobních údajů a dalších dat.
Uživatel poskytuje Správci osobní údaje v rozsahu: jméno, příjmení, e-mailová adresa, telefonický kontakt a další data, a to z důvodu projeveného zájmu o nemovitost, kde prostřednictvím služby Serveru Správce osloví Uživatel inzerenta uvedeného v detailu
nemovitosti - QARA s.r.o. (IČ 01740113) se zájmem o jeho služby. Tato společnost je součástí seskupení/sítě/franšízového modelu realitních kanceláří, jejich seznam můžete zobrazit kliknutím na tento odkaz.
QARA s.r.o. Ostrava (IČ 01740113) , QARA s.r.o. Brno (IČ 01740113) , QARA s.r.o. (IČ 01740113)
Uživatel tyto osobní údaje poskytuje dobrovolně a bere na vědomí, že součástí služeb Správce, které Správce Uživateli poskytuje, je vyhledání všech Uživateli vyhovujících (dle parametrů - cena, typ nemovitosti, lokalita atd.) nemovitostí. Správce za tímto účelem provozuje aplikace Hlídací pes a newsletter. Tyto služby je možné z každého zaslaného emailu odhlásit. Souhlas se zpracováním osobních údajů Uživatel poskytuje Správci na dobu neurčitou s tím, že svůj udělený souhlas může Uživatel kdykoliv na drese správce info@realitymix.cz odvolat. Správce garantuje Uživateli i další práva uvedené v ustanovení §11 a §21 zákoba č. 101/200 Sb. Ve znění pozdějších předpisů.
Více informací o zpracování údajů získáte zde (realitymix.cz/zasady-ochrany-osobnich-udaju)