Pronájem 1+kk 31m2 + sklep 2m2 nezař. novostavba 4patro výtah Brandýs nad Labem/ Stará Boleslav
Exkluzivně nabízíme nový světlý byt o velikosti 1+kk o velikosti 31 se sklepem 2m2, v novostavbě rezidenčního bytového komplexu Bydlení Brandýs z roku 2024 v ulici Augustina Lukeše v Brandýse nad Labem.
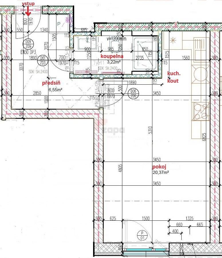
Byt se nachází ve 4. patře s výtahem, je vybaven novou kuch. linkou s vestavěnými spotřebiči (el. a mikrovlnná trouba, sklokeramická varná deska, myčka, lednice s mrazákem) a pračkou, jinak je byt nezařízený. V koupelně je sprchový kout a WC, na podlahách je plovoucí podlaha nebo dalžba, okna mají el. předokenní žaluzie, v bytě zaveden kabel pro internet. K bytu náleží zděný sklep v přízemí domu.
Byt je skvětlý se západní orientací, vytápění bytu je ústřední dálkové, parkování je možné před domem nebo v okolních ulicích.
Byt je volný od 1.2. 2025, ideální pro 1 osobu( max 2 osoby) bez zvířat. Měsíční nájemné činí 14.000,-Kč+ poplatky 1629,-Kč + elektřina cca 510,-Kč + internet. Při podpisu smlouvy je nutné uhradit 1. nájem , kauci 2 nájmy. a provizi RK 15.600,-Kč.
Dopravní dostupnost je výborná- příměstská doprava v rámci PID (7min chůze)- 35min na metro Černý most, 40m na metro Letňany nebo rychlostní komunikace R10 směrem Praha a Mladá Boleslav ( autem do 15min. stanice metra B Černý Most a 20 min metro C Letňany ). Občanská vybavenost do 7 min. chůzí (supermarket Lidl, Kaufland a Tesco, restaurace, kavárny, lékař). Lokalita nabízí i možnost relaxace v blízkých lesích a sportovní vyžití- cyklostezky podél Labe, koupání a vodní sporty (jezera Lhota a Proboštská jezera), workoutová hřiště, kulturní akce apod.
V případě zájmu o prohlídku nás neváhejte kontaktovat.
Uživatel serveru RealityMIX.iprima.cz (dále jen „Server“) dostupného na internetové adrese (URL) https://realitymix.iprima.cz, který provozuje společnost DALTEN media s.r.o., se sídlem Na Harfě 916/9a, Praha 9, 190 00, IČO: 271 35 306 (dále jen „Správce“) jako provozovateli tohoto Serveru uděluje svůj výslovný souhlas v souladu s ustanovením § 5 zákona č. 101/2000 Sb. O ochraně osobních údajů a o změně některých zákonů, v platném znění (dále jen „zákon o ochraně osobních údajů“), se zpracováním uživatelem poskytnutých osobních údajů a dalších dat.
Uživatel poskytuje Správci osobní údaje v rozsahu: jméno, příjmení, e-mailová adresa, telefonický kontakt a další data, a to z důvodu projeveného zájmu o nemovitost, kde prostřednictvím služby Serveru Správce osloví Uživatel inzerenta uvedeného v detailu
nemovitosti - ZAPA reality, s.r.o. (IČ 26757656) se zájmem o jeho služby.
Uživatel tyto osobní údaje poskytuje dobrovolně a bere na vědomí, že součástí služeb Správce, které Správce Uživateli poskytuje, je vyhledání všech Uživateli vyhovujících (dle parametrů - cena, typ nemovitosti, lokalita atd.) nemovitostí. Správce za tímto účelem provozuje aplikace Hlídací pes a newsletter. Tyto služby je možné z každého zaslaného emailu odhlásit. Souhlas se zpracováním osobních údajů Uživatel poskytuje Správci na dobu neurčitou s tím, že svůj udělený souhlas může Uživatel kdykoliv na drese správce info@realitymix.cz odvolat. Správce garantuje Uživateli i další práva uvedené v ustanovení §11 a §21 zákoba č. 101/200 Sb. Ve znění pozdějších předpisů.
Více informací o zpracování údajů získáte zde (realitymix.cz/zasady-ochrany-osobnich-udaju)