Prodej rodinného domu s velkým potenciálem k rekonstrukci – Borkovany, okr. Břeclav
Nabízíme k prodeji rodinný dům určený ke kompletní rekonstrukci, nacházející se v centru obce Borkovany (okres Břeclav), v atraktivní lokalitě jihomoravského venkova s dobrou dostupností do Brna, Hustopečí i Břeclavi.
Základní informace o nemovitosti:
• Celková plocha pozemku: 852 m²
• Zastavěná plocha a nádvoří: 353 m²
• Podlahová plocha domu: 171 m²
• Užitná plocha obytné části: 104 m²
• Zahrada (do mírného svahu): 332 m²
Dispozice domu:
Rodinný dům má převážně přízemní dispozici s rozsáhlým technickým zázemím a přístavky. Je vhodný pro rekonstrukci dle vlastních představ – ideální jak pro trvalé bydlení, bydlení spojené s podnikáním, tak pro rekreační účely.
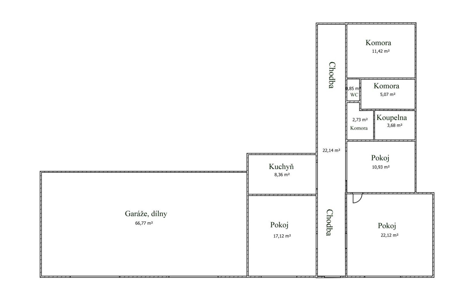
Vnitřní prostory:
• Chodba: 22,14 m²
• Pokoj 1: 17,20 m²
• Pokoj 2: 22,12 m²
• Kuchyně: 8,36 m²
• Jídelna: 10,93 m²
• Komora: 2,73 m²
• Koupelna: 3,68 m²
• WC: 0,85 m²
• Druhá komora/sklad: 5,07 m²
• Letní komora: 11,42 m²
Vedlejší stavby a hospodářské části:
• Garáže a dílny: 66,77 m²
• Chlévy, sýpka a další technické prostory – vhodné pro přestavbu na ateliér, sklad, dílnu nebo hobby prostor.
Exteriér a zahrada:
Zahrada o ploše 332 m² navazuje na prostorný dvůr, je ve svahu nabízí možnost terasového uspořádání nebo menšího sadu, vinice či okrasné zahrady. Pozemek je oplocený a poskytuje dostatek soukromí.
Lokalita – Borkovany:
Obec Borkovany leží v mírně zvlněné krajině Jižní Moravy, cca 15 minut autem od Hustopečí a nájezdu na dálnici D2 (Brno – Břeclav). Je zde základní občanská vybavenost – obchod, školka, škola, restaurace, autobusová zastávka, knihovna a kulturní dům. V obci a okolí panuje klidná atmosféra s přírodními scenériemi a vinicemi, ideálními pro pěší výlety a cykloturistiku.
Shrnutí:
• Rodinný dům s technickým zázemím a hospodářskou částí
• Velká zahrada, soukromí, potenciál pro přestavbu
• Výborná lokalita pro klidné bydlení nebo chalupaření
• Možnost rozdělení prostor i pro podnikání (dílna, sklad)
Pro více informací nebo domluvu prohlídky mě neváhejte kontaktovat.
V tomto článku shrneme nejdůležitější věci, které byste si měli promyslet, pokud se chystáte prodat svou nemovitost a chcete, abyste s kupujícím nemusel následně řešit vzniklé problémy.
Jako prodávající nesete rizika spojená nejen se samotným obchodem, ale i se stavem nemovitosti v době prodeje a pro minimalizaci rizik, je dobré se zamyslet nad uvedenými oblastmi.
Realitní makléř má své nezastupitelné místo v realitním obchodu. Realitním makléřem nemyslím nevzdělané jelito, které absolvovalo dvoudenní školení a ví, jak se nahraje inzerát na inzertní portál.
Realitním makléřem, který se Vám skutečně vyplatí, je zkušený profesionál, který je schopen Vám dobře poradit jak prodat za co nejvíc a s nejmenším rizikem a hlavně je Vás schopen obratně provést celým realitním obchodem.
Uživatel serveru RealityMIX.iprima.cz (dále jen „Server“) dostupného na internetové adrese (URL) https://realitymix.iprima.cz, který provozuje společnost DALTEN media s.r.o., se sídlem Na Harfě 916/9a, Praha 9, 190 00, IČO: 271 35 306 (dále jen „Správce“) jako provozovateli tohoto Serveru uděluje svůj výslovný souhlas v souladu s ustanovením § 5 zákona č. 101/2000 Sb. O ochraně osobních údajů a o změně některých zákonů, v platném znění (dále jen „zákon o ochraně osobních údajů“), se zpracováním uživatelem poskytnutých osobních údajů a dalších dat.
Uživatel poskytuje Správci osobní údaje v rozsahu: jméno, příjmení, e-mailová adresa, telefonický kontakt a další data, a to z důvodu projeveného zájmu o nemovitost, kde prostřednictvím služby Serveru Správce osloví Uživatel inzerenta uvedeného v detailu
nemovitosti - VIOLET REAL s.r.o. (IČ 29301882) se zájmem o jeho služby.
Uživatel tyto osobní údaje poskytuje dobrovolně a bere na vědomí, že součástí služeb Správce, které Správce Uživateli poskytuje, je vyhledání všech Uživateli vyhovujících (dle parametrů - cena, typ nemovitosti, lokalita atd.) nemovitostí. Správce za tímto účelem provozuje aplikace Hlídací pes a newsletter. Tyto služby je možné z každého zaslaného emailu odhlásit. Souhlas se zpracováním osobních údajů Uživatel poskytuje Správci na dobu neurčitou s tím, že svůj udělený souhlas může Uživatel kdykoliv na drese správce info@realitymix.cz odvolat. Správce garantuje Uživateli i další práva uvedené v ustanovení §11 a §21 zákoba č. 101/200 Sb. Ve znění pozdějších předpisů.
Více informací o zpracování údajů získáte zde (realitymix.cz/zasady-ochrany-osobnich-udaju)