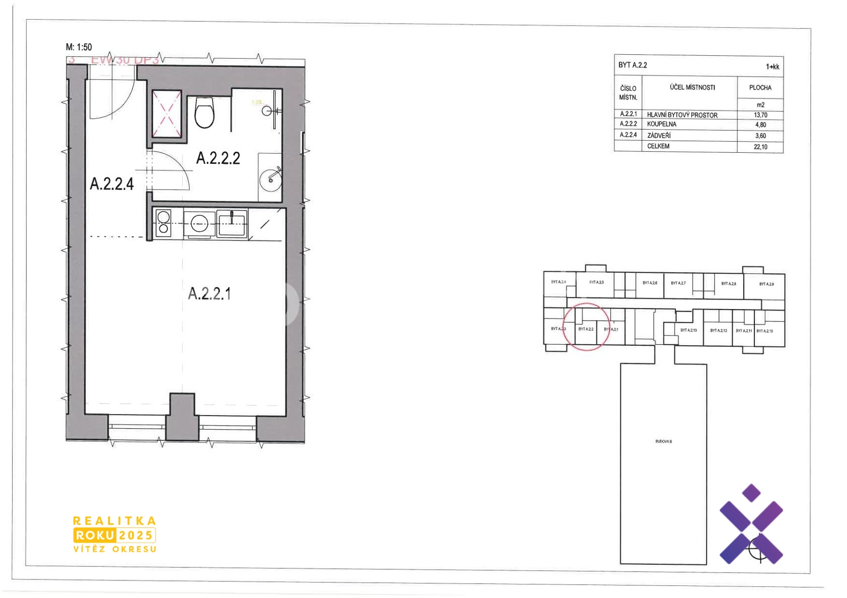
Nabízím k pronájmu krásný byt o dispozici 1+kk s podlahovou plochou 26 m², který se nachází v atraktivní lokalitě v centru Zlína na ulici Lorencova v komplexu Park Tower. Byt je situován v klidném prostředí s výbornou občanskou vybaveností a díky umístění v přízemí nabízí snadný přístup bez bariér. Součástí je také sklepní kóje, která poskytuje úložný prostor pro Vaše věci.
Po vstupu do bytu se ocitnete v předsíni, odkud se dostanete do hlavní obytné místnosti propojené s moderní kuchyní. Ta je plně vybavena elektrickou troubou, indukční varnou deskou a digestoří. Koupelna se sprchovým koutem je spojena s toaletou a nechybí zde ani pračka.
Díky poloze v samotném centru města máte na dosah veškerou občanskou vybavenost – školy, školky, MHD, restaurace, obchody, lékaře i široké možnosti kulturního a sportovního vyžití.
Měsíční nájemné činí 8 900 Kč a zálohy na energie jsou ve výši 3 300 Kč. Kauce je stanovena ve výši jednoho nájmu. Byt je k nastěhování ihned.
Pokud vás nabídka zaujala, rád se s vámi setkám na osobní prohlídce.
Ing. Martin Souček, Váš realitní makléř Explicit Reality.
Cena:
8 900 Kč / (za měsíc)
Poznámka:
+ 3.300,- energie, bez poplatků, + provize RK, včetně právního servisu
Datum k nastěhování:
22.01.2026
Dispozice/podlahová plocha:
1+kk/22 m²
Číslo zakázky:
REALITYMIX-02406-1
Podrobné informace
Bezbariérový byt:ano
Dispozice bytu:1+kk
Číslo podlaží v domě:2
Počet podlaží objektu:10
Celková podlahová plocha:22 m²
Druh objektu:cihlová
Stav objektu:novostavba
Stáří objektu:2019
Vlastnictví:osobní
Výška stropu:3 m
Sklep:3 m²
Vybaveno:ano
Doprava:silnice, MHD, autobus
Elektřina:Elektro - 230 V
Voda:Voda - dálkový vodovod
Telekomunikace:Internet
Odpad:Kanalizace
Ostatní rozvody:Satelit, Kabelová televize, Kabelové rozvody
Energetická náročnost budovy:B - Velmi úsporná
Ukazatel energetické náročnosti budovy:103 kWh/m²
Energetický ukazatel podle vyhlášky:č. 78/2013 Sb.
Uživatel serveru RealityMIX.iprima.cz (dále jen „Server“) dostupného na internetové adrese (URL) https://realitymix.iprima.cz, který provozuje společnost DALTEN media s.r.o., se sídlem Na Harfě 916/9a, Praha 9, 190 00, IČO: 271 35 306 (dále jen „Správce“) jako provozovateli tohoto Serveru uděluje svůj výslovný souhlas v souladu s ustanovením § 5 zákona č. 101/2000 Sb. O ochraně osobních údajů a o změně některých zákonů, v platném znění (dále jen „zákon o ochraně osobních údajů“), se zpracováním uživatelem poskytnutých osobních údajů a dalších dat.
Uživatel poskytuje Správci osobní údaje v rozsahu: jméno, příjmení, e-mailová adresa, telefonický kontakt a další data, a to z důvodu projeveného zájmu o nemovitost, kde prostřednictvím služby Serveru Správce osloví Uživatel inzerenta uvedeného v detailu
nemovitosti - EXPLICIT REALITY, s.r.o. (IČ 06816860) se zájmem o jeho služby. Tato společnost je součástí seskupení/sítě/franšízového modelu realitních kanceláří, jejich seznam můžete zobrazit kliknutím na tento odkaz.
Explicit reality, Brno (IČ 76193403) , EXPLICIT REALITY, s.r.o. (IČ 06816860)
Uživatel tyto osobní údaje poskytuje dobrovolně a bere na vědomí, že součástí služeb Správce, které Správce Uživateli poskytuje, je vyhledání všech Uživateli vyhovujících (dle parametrů - cena, typ nemovitosti, lokalita atd.) nemovitostí. Správce za tímto účelem provozuje aplikace Hlídací pes a newsletter. Tyto služby je možné z každého zaslaného emailu odhlásit. Souhlas se zpracováním osobních údajů Uživatel poskytuje Správci na dobu neurčitou s tím, že svůj udělený souhlas může Uživatel kdykoliv na drese správce info@realitymix.cz odvolat. Správce garantuje Uživateli i další práva uvedené v ustanovení §11 a §21 zákoba č. 101/200 Sb. Ve znění pozdějších předpisů.
Více informací o zpracování údajů získáte zde (realitymix.cz/zasady-ochrany-osobnich-udaju)